У кого такая планировка ? Помогите с идеями.Не проходите мимо !!!
Вопросы и ответы
Пожалуйста
, помогите, подскажите, у кого такая планировка ? Или похожая ? Делали ли вы перепланировку ? Где именно ? Интересует ВСЁ !!!
, помогите, подскажите, у кого такая планировка ? Или похожая ? Делали ли вы перепланировку ? Где именно ? Интересует ВСЁ !!!Спальня наша будет 12.3. Детская (в будущем) 12.9, гостиная 18.2. Сначала думала кухню совместить с маленькой комнатой (всегда так мечтала), но тогда спальня наша будет с балконом, в который постоянно будет ходить муж курить, друзья и т.д. И напрягают соседи сверху, которые любят слушать ГРОМКО телевизор ночью. Если делать спальней 18.2, очень слышно соседей. Сразу скажу,что высота потолков 2.50, и супер шумоизоляцию,как я понимаю, сделать не получится.
Ещё не знаю,совмещать ли санузел с ванной ?
Далее, как обустроить коридор (ширина 1.30) , дверь в гостиную будем убирать и наверное продлевать коридор с помощью не глубокого шкафа. Ещё в коридоре имеется встроенный шкаф (0.5), который скорее всего будет под консервацию.
Несущие стены где окна кухни,спальни и гостиной. И ещё несущая где вход в квартиру.
ОЧЕНЬ ЖДУ ВАШИХ ИДЕЙ, фото приветствуется))).
Или может сделать комнаты вообще не проходные ? Как на фото 

Любаша
Вообще я с родителями еще жила, был совмещен. На съемной квартире тоже. Это кто как привык. Но мы скорее всего совмещать не будем.
30.01.2015
Ответить
Оля
У нас 2 детей я и муж — утром итак очередь, а если б было совмещено то вообще капец! Вы на Заречном?
30.01.2015
Ответить
Оля
Планировка зареченская. А так Вы выбрали хорошую квартирку — будьте счастливы в новом доме!
31.01.2015
Ответить
Любаша
Спасибо большое !)) У моей подруги на заречном такая же планировка, только кухня большая и квадратная, и спальня возле кухни меньше. А мы живем на Космонавтах)).
31.01.2015
Ответить
Наталья
у моих знакомых похожая квартира вот что они придумали
помещение туалета с ванной сделали одним, переход на кухню позволил перенести туда туалет, вход на кухню через зал ( типа студии), в конце коридора гардероб
помещение туалета с ванной сделали одним, переход на кухню позволил перенести туда туалет, вход на кухню через зал ( типа студии), в конце коридора гардероб
29.01.2015
Ответить
Любаша
Спасибо )), и я думала о такой переделке. Сразу уходят почти все минусы стандартной планировки. Но напрягает тот факт,что балкон будет в спальне, и соседи сверху со своим ТВ громким. Но мы будем еще думать. Мужу покажу вашу идею.
29.01.2015
Ответить
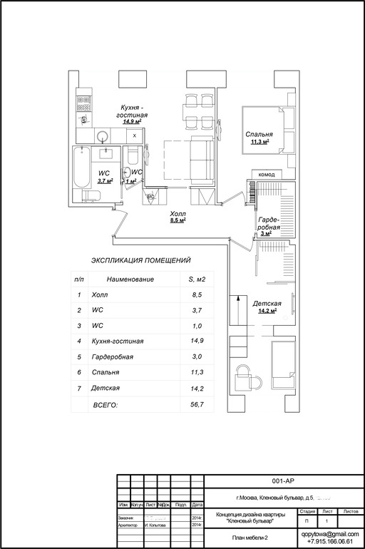
Ирина (архитектор-дизайнер интерьеров)
Делала осенью очень похожую квартиру, посмотрите может пригодится, какие то идея понравятся и Вы их сможете применить у себя:
29.01.2015
Ответить
Елена
У нас похожая планировка, однозначно проем в коридоре сносить дальше или изолировать большую комнату и в конце небольшую гардеробную сделать.
29.01.2015
Ответить