девочки помогите.как лучьше расставить мебель!
Вопросы и ответы
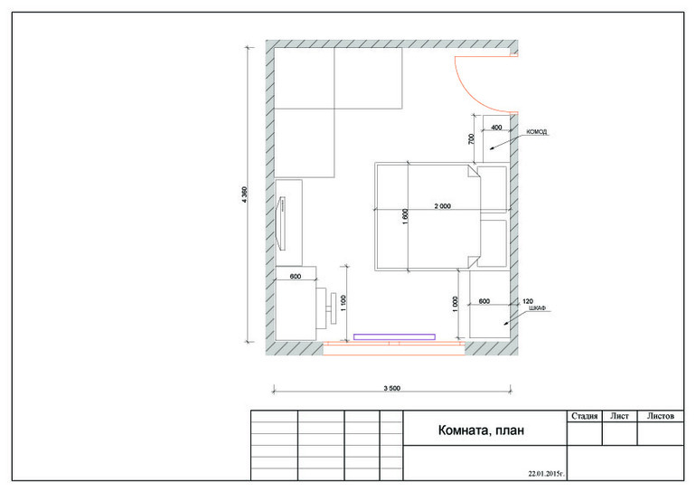
Наша комната 15.3 метра
Хотим преобрести 2- х ярусную кровать и шкаф купе.
Сейчас имеем 2- х спальню кровать 180*200
Кроватка
Комод
Стол письменный
Шкаф угловой.
Будем избавляться от шкафа ,поменяем на другой и прокатки_купим 2- ярусную.
Вот примерная кровать и шкаф.который хотим



Очень надо.помогите в маленькой комнате разместиться.
Рассмотрю любые варианты.
selena1002
Оля, добрый день!Первое — маленькая комната — это 11,7?Второе — не хотите повеселей цвета для детской, как-то мрачновато?
15.02.2015
Ответить
Θля-ӃлЎбНหЧķ@?
Не комната средняя 15.3 м.А цвета будем позже выбирать как только определимся.и тем более она не только детская.и мы с мужем там спим.вот задача оставить в комнате кровать нашу,комод и письменный стол.и при этом надо разместить ещё 2- х ярусную кровать и шкаф.Вот только как это все сделать.ума не приложу((((( Помогите:-)
15.02.2015
Ответить
selena1002
Даааа, задачка... даже не знаю... напишите хотя бы размеры комода, письменного стола и габариты кровати.
15.02.2015
Ответить
selena1002
Хорошо. По кровати хочу еще раз уточнить: Вы даете мне габаритные размеры или размер матраса?
15.02.2015
Ответить
selena1002
Ладно, тогда, как получилось.
Больше похоже не на "расставить", а "втиснуть"))
Больше похоже не на "расставить", а "втиснуть"))
15.02.2015
Ответить
selena1002
Не за что!А угловую конструкцию двухъярусной кровати можно посмотретьв Московском доме мебели, на их сайте.
15.02.2015
Ответить