Перепланировка. Нужна помощь колективного разума...
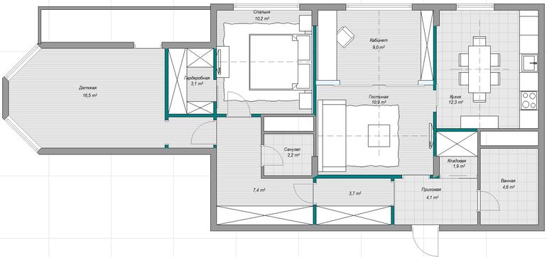
Перепланировки стен. Согласование перепланировки квартир и нежилых помещений.Получили более подробный план строящейся квартиры, оказалось, что на предыдущем не были обозначены вентиляционные шахты, а я про них не вспомнила и полгода занималась фигней, потому что ни один мой вариант не пройдет(( Теперь нужно всё срочно, а у меня нет интересных мыслей совсем. Посмотрите, у кого глаз наметан.
Нужна большая детская, небольшая наша с мужем спальня, место для общего досуга и кабинет мужу не менее 10 квадратов. В мечтах была отдельная гардеробная, но, видимо, ей суждено остаться большим шкафом в прихожей. И еще, не хотелось в комнате с балконом делать детскую, но скорей всего так и придется, других мыслей пока нет.
Буду благодарна вашим советам и любым мыслям.
ПС. Плита- газ.


Екатерина
Я поздно прочитала, что плита газовая(Но, раз уж сделала, то вдруг кому-нибудь пригодится)
19.03.2015
Ответить
Елена Тарасова (дизайн, 3D)
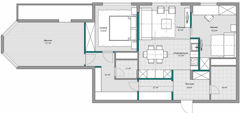
Это одна из идей, думаю девушки подкинуть варианты:)Кабинет и спальню можно поменять местами.Смотря что для вас главное — обычно вся семья проводит вместе время в кухне-гостиной.
19.03.2015
Ответить
Мама Я
Это один из моих предыдущих вариантов (основная мысль). Детскую планировала максимально расширить в сторону кухни-гостиной и второго с/у, но из-за короба это невозможно, а так маловата детская получается. Кабинет со спальней именно так и думала, но проход сделать через утепленный балкон или так как у вас, если не разрешат. Да, и кухня-гостиная, может кто из девушек подкинет идею, так совместить не получится, плита газовая, нужна будет дверь или перегородка по нормам, это здесь у кого-то вычитала.
19.03.2015
Ответить