Помогите пожалуйста с гардеробной
Интерьерное решение гостинойДевочки, помогите пожалуйста советом, очень хочется гадеробную, но где её сделать, не хватает фантазии. Муж предлагает её заменить шкафами, говорит место сэкономим . Я думаю может в углу напротив двери, но не займет ли она много места?
selena1002
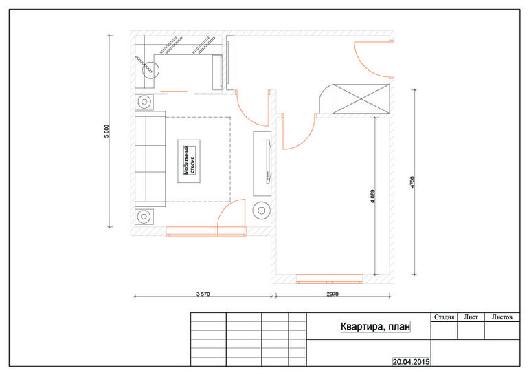
Мария, добрый вечер!Можно попробовать вот так, и еще балкон присоединить))
20.04.2015
Ответить
Мария
Вот такой вариант мы не рассматривали, здорово, мне нравится:) И прихожая длиней будет, а то мне так не нравится короткая.Спасибо большое за идею!
21.04.2015
Ответить
selena1002
Мария, добрый день!Пожалуйста! Просто нужно обращаться к дизайнеру — он начертит)) А в разговорах чертежи трудно рассматривать)) Я использую такие приемы в проектах. Размер гардеробной и коридора можно скорректировать, если нужно. Детскую не расставляла, т.к. не знаю ничего про возраст и т.п. В случае чего пишите мне на почту astella11@yandex.ru.
21.04.2015
Ответить
Наталья
У нас детская почти ваших габаритов спальни..5,8×3.
Расположение мебели как в идее у дизайнера выше..
Много фото в моем дневнике..можете примерно посмотреть результат.
Гардеробную сделали 2×2.
22.04.2015
Ответить
Наталья
Спасибо.
Гардеробная удобно. Я сама шкафы не люблю...свою мечту так сказать воплотила у дочи. Но она тоже довольна.
Жаль у себя в спальне не могу сделать...места мало...12 квадратов.
Удачи вам.
23.04.2015
Ответить
