Девчонки, помогайте, мозг закипает
Интерьерное решение детской комнатыИмеется детская в хрущевке. Трамвай, что б его........ Как, вот как в этой комнате сделать рабочее место, 2 спальных места. 1 для ребенка, второе для меня, и в дальнейшем планируется еще ребенок. И в этой комнате находиться должен шкаф, в котором находятся все вещи нашей семьи. Сейчас вот так: 
Пока мысли только о выкатной кровати и то, не знаю куда ее приткнуть.Помогите советами, пожалуйста. Может у кого есть похожие комнаты.
Super-Mummy
Уберите диванчик и поставьте на его место выкатную кровать: днем диван, вечером кровать:) и вам есть где спать и будущему второму ребенку:))) кушетку не рекомендую, т к там одно двуспальное место получится, а выкатная — два полноценных и можно укатить хоть в другую комнату:)))))))
01.05.2015
Ответить
Елена
ставим кровать у окна ближе к стене с дверью, вторая станец вторец.шкпф на все ширину стены . все. остальное куда хошь.
30.04.2015
Ответить
Ксюша
Так за дверью всего 1 метр.кровать туда не встанет.только напротив двери можно.но свет падать будет
01.05.2015
Ответить
Елена
почему в 1 метр не станет кровать?! вы ширину кроватей знаете..они бывают разными , всреднем 90 см спальное место, есть 80, есть 70. Есть продукция на заказ.
01.05.2015
Ответить
Ксюша
Может не правильно поняла вас? Вы имели в виду одну кровать вдоль окна,а вторую перпендикулярно первой?получается напротив двери.так?
01.05.2015
Ответить
Елена
да. именно так и имела. и можно софу ставить, чтоб от жара батарей вас защетила. и посмотрите — все пространство своболно!
например от двери по правую сторону рабочая зона.
например от двери по правую сторону рабочая зона.
01.05.2015
Ответить
selena1002
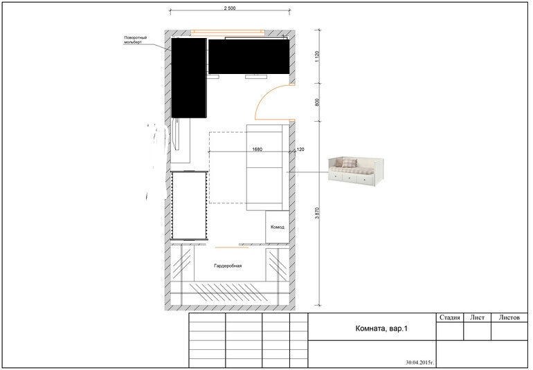
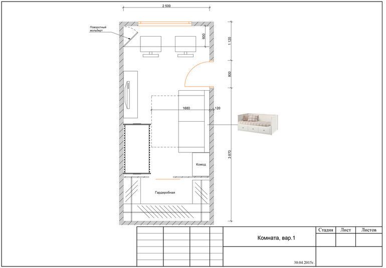
Ксюша, добрый день!Можно вот так попробовать, использовать не выдвижную снизу кровать, а кушетку Хэмнэс из Икеи.
И еще в другом варианте угловой вариант построения кроватей, если Вы не против кроватей-чердаков))
И еще в другом варианте угловой вариант построения кроватей, если Вы не против кроватей-чердаков))
30.04.2015
Ответить
Ксюша
Кровати чердаки не рассматриваю.слишком активный ребенок.травм будет не избежать.есть у нас 1 раздвижная кровать икеа.вот думаю может вторую купить и поставить буквой Г.теперь вопрос.куда поставить))))))
30.04.2015
Ответить
Анна
Привет! Предварительно: стол лучше у окна, освещение лучше и эффект трамвая сглазится. Шкаф может угловой рассмотреть? Угол между шкафом и диваном нефункциональный получается, а угловая секция пошла бы. Ваше спальное место временное? или постоянное?
30.04.2015
Ответить
Ксюша
спальное место временное. Угловой шкаф там думала,но боюсь места не хватит. Там 80 см. тогда спальное место сдвинется. прям возле двери получается. С рабочим местом согласна
30.04.2015
Ответить
Анна
а если телек на противоположную сторону перенести и сделать зеркальное отображение? А кровать туда, где сейчас телек запланирован? Или комната с ремонтом и телевизор не двигается?
30.04.2015
Ответить
Анна
Плохо, конечно, тем более кровати-чердаки если не вариант, да еще с перспективой второго ребенка. Места в комнате не останется совсем при таком метраже. Мне вариант, предложенный Selena1002 понравился, но дверь да, а нельзя ее перевесить, чтобы она на сторону кровати открывалась, тогда и мешать не будет одно другому. А по стене внешней нельзя пустить раздвижную?
30.04.2015
Ответить