За советом. Планировка однокомнатной квартиры для семьи из трех человек.

Светлана, добрый день!Можно попробовать так, но тогда в прихожей не будет шкафа. У меня были клиенты, которым делала кухню на балконе, но у Вас не тот вариант. b919786d1d759a848a3b05f4d69a2421.jpg
14.05.2015
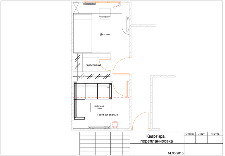
ДД, Селена. Очень интересная идея. В этом случае перегородка делается глухая и на всю высоту? И дневного света уже не будет?
14.05.2015
Спасибо! Светлан, Вы смотрите сами, можно и так и так. Можно сделать полностью глухие зоны и с дверями. Можно так, как на чертеже. Если нужен свет, то можно гардеробную со стороны окна делать не потолка, например, а в стене с гостиной сверху фрамугу, можно все стены до потолка и в каждой по фрамуге сверху. Здесь очень много вариантов может быть и большой простор для фантазии. Например, на кухне можно сделать вот такой стол. 9d41a6dbac179fc58c7b54cedc27ca91.jpg f331f34090ab5ed201e510527c7689e8.jpg А на балконе еще и кабинет.))
14.05.2015
Спасибо. Возьму на заметку. big_smiles_150.gif
14.05.2015
Светлана, добрый день!Пожалуйста! Могу помочь в дальнейшей разработке и реализации))
15.05.2015
Добрый день! Напишите в личку расценки.
15.05.2015
Хорошо, может лучше на почту astella11@yandex.ru?
15.05.2015
я скинула Вашу почту свой адрес
15.05.2015
Спасибо, сейчас посмотрю!
15.05.2015
Кнопка пожарной сигнализации в квартире Мойка у окна.поделитесь!