Павшинская Пойма сделать из двушки, трешку! Помогите..
Девочки, помогите!
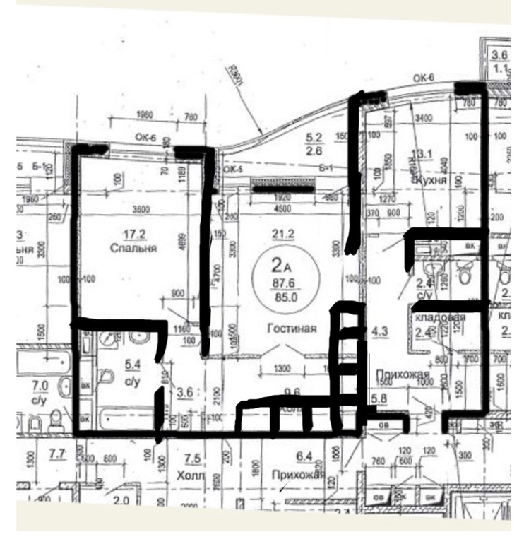
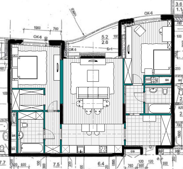
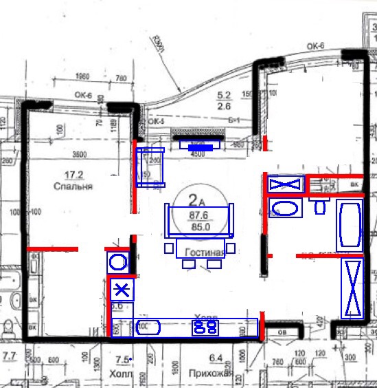
Имеем планировку от СУ 155 в Павшинской Пойме. Хотим сделать из двушки , трешку! Там где кухня , сделать детскую. А кухню совместить с гостиной! Холл убрать и там сделать кухню вместе с гостиной! Уже голову сломали как лучше!
Если кто так делал, будьте добры! Киньте фотки в личку! Жду ваших советов!!!
Екатерина
С такой площадью очень много вариантов может быть! Главное определиться с желаниями)
С такой площадью очень много вариантов может быть! Главное определиться с желаниями)
25.05.2015
Ответить
Aleksandra www.aleks-design.ru
Очень хорошее направление мысли. Я бы ещё в первом варианте спальню с детской поменяла местами. На месте бывшей кухни выгоднее устраивать спальню. И добавлять обязательно шумоизоляцию под потолок.
25.05.2015
Ответить
Елена Тарасова (дизайн, 3D)
Это так первая идея пришедшая в голову, но надо крепенько думать:)
Это так первая идея пришедшая в голову, но надо крепенько думать:)
24.05.2015
Ответить
Елена Тарасова (дизайн, 3D)
Вы хотите три комнаты? Кухня-гостиная полюбому проходная будет, а если еще одну комнату то клетушечки получатся. Но тут еще все думать нужно хорошо, что и где размещать с учетом согласований перепоанировки.
24.05.2015
Ответить
Алена888
Да, получается гостиная кухня проходными будут. А клетушечку там еще нет, не хотим делать. Просто пытаемся как то разместить чтоб все гармонично было!
24.05.2015
Ответить
Алена
Я бы вообще не делала кухню рядом с детской и детскую на месте кухни, тк только представьте, как вы намучаетесь укладывать спать ребенка, когда снизу и сверху будут активно мыть посуду, сидеть пить чай или что по-крепче до часу ночи и пр. И еще, детская должна быть большая, это я могу сказать с уверенностью, и как можно дальше от комнаты где как правило собирается весь народ. Может ее сделать в левой дальней комнате?
Но это так, мое субъективное мнение, мало ли;)
24.05.2015
Ответить
Алена888
Спасибо! Про посиделки я тоже думала, это если сверху только. Были у соседей под нами, так вот они так и сделали все! Будем думать! Может правда оставить все как есть!
27.05.2015
Ответить
Марина
Отличная идея!С учётом того,что перенос мокрых зон запрещён! А вот это самое то!!!
25.05.2015
Ответить
˙·•●♥๑NA˙·•●♥๑
Ого какая большая двушечка. Два санузла, я бы от одного отказалась, кот.рядом с кухней и получится хорошая такая кухня-гостиная...
24.05.2015
Ответить
Алена888
Идея хорошая, но там расположен вентиляционный короб который нельзя убрать. Данный вариант не подходит.
24.05.2015
Ответить
Lisa
У вас не маленькая кухня, можно гостиную и там же и организовать. Просто очень уж проблематично кухню переносить в другое помещение и юридически и физически..А вместо спальни сделать детскую.
24.05.2015
Ответить
Алена888
Тоже так думали, но все таки маленькая получится кухня гостиная. Юридически сказано что нельзя делать за счет саниузлов нельзя расширять, а вот холл можно использовать для кухни. А вот тянуть коммуникации, это да, конечно затратно и накладно!
24.05.2015
Ответить



\Как-то так.