Требуется помощь, детская для луноликого и солнцеподобного дрессировщика папы и мамы.

Нарисуйте, плз, схему с размерами окна и двери, чтобы понятней было. Попробую что-то придумать. И,насколько я поняла, вы в этой комнате еще хотите спальное место для гостей? И еще, сколько лет ребенку?
13.06.2015
почитав отрицательные  отзывы о двуярусных, с ужасом подумала о надувных матрасах, это я про доп спальное место, поэтому и обращаюсь к Вам, в тупике. Ребенку 3 года.схема:  5e14e15f7ce3443356c645bc0cb5140d.jpg
13.06.2015
а можно ширину окна и двери, все таки )) или они вплотную к стене? 
13.06.2015
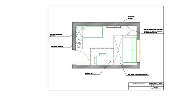
о извините не поняла. Дверь в плотную кстати, плинтуса широкие. Окно с отступом, но там труба батареи. Дверь занимает: 92, проем окна 135
13.06.2015
Спасибо ) а еще высоту потолков подскажите? и давайте еще раз уточним, вы в детской хотите отдельное спальное место для гостей? я правильно поняла?
13.06.2015
да, хотим, если получится. Высота потолков 2,4
13.06.2015
Ну как-то так получилось ) fd093bd2b8fd3fbf616634724fcf28fe.jpg
13.06.2015
Спасибо, но у нас папа больше 196, поэтому диван встанет так что больше ничего не войдет. 
17.06.2015
Все, войдет )) если диван переставить ), Его даже можно еще больше сделать, я поставила 2000мм, но места хватает )Держите ) 2b5af7ce549710f5deeeaf8f3664da79.jpg
17.06.2015
По цвету, я бы оставила белый цвет стен, а вот уже мебель и детали делала б цветными, т.к. на ребенка очень влияет цвет стен и оранжево-зеленый будет его угнетать и он не будет играть в своей комнате
13.06.2015
Простите, а в чем ужас двухъярусных? У меня такая кровать у ребёнка. С 5 лет в ней спит, ему уже 12 будет - очень шилопопый. Ни разу не падал, хоть и крутится в ней. Младший 3 года любит в ней гостить. Так что не все ужасно.
13.06.2015
маленькую может малыщу отдать, а в большой уже организовать спальню и гостинную.
13.06.2015
была и такая идея, но вкладывать в переделку большой на данный момент нет свободных денег.
13.06.2015
Ищем сборщика мебели в Зеленограде. Помогите приделать к стеклянной столешнице ножки)