Перепланировки с моих объектов.
Перепланировки стен. Согласование перепланировки квартир и нежилых помещений.Девочки, в данном посте буду выкладывать перепланировки с текущих объектов.
Надеюсь вам пригодится!
Очень часто вы советуетесь как и что сделать, но к сожалению не всегда получаете профессиональные ответы!
И так )) Пост Вам в помощь - и в закладки!

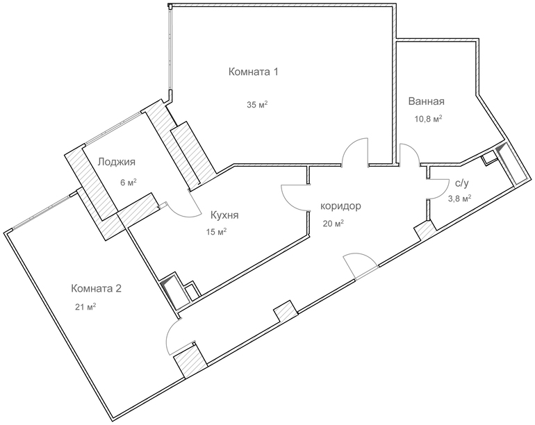
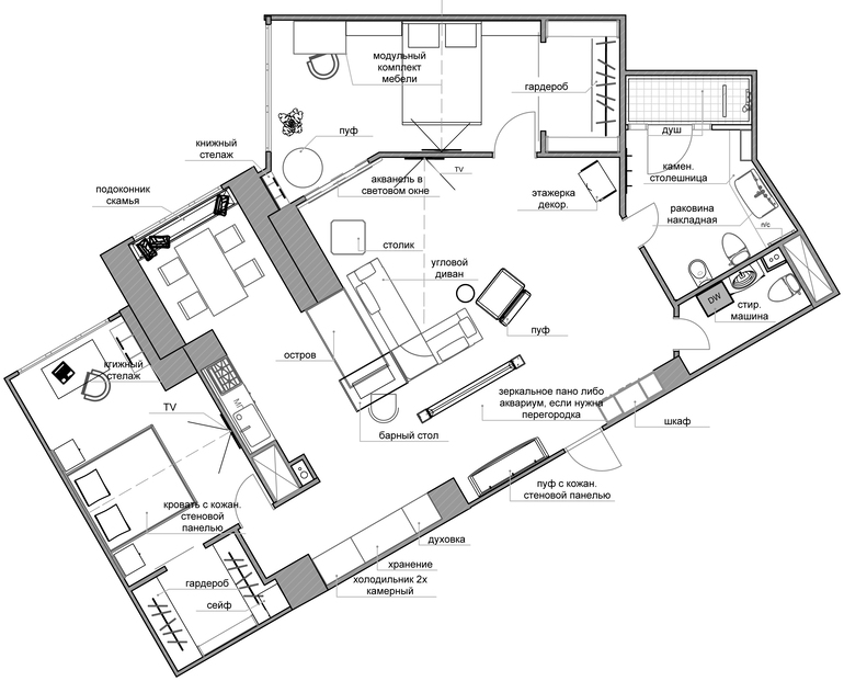
Квартира 1.
Площадь 107 кв.м, дом монолит.
Было:

Перепланировка:
Пожелания заказчика:
Квартира для молодого человека 30 лет. Студийный тип, две спальни. Для постоянного проживания имеется дом за городом. Квартира будет служить для ночевок на неделе.

Итог нашей работы:

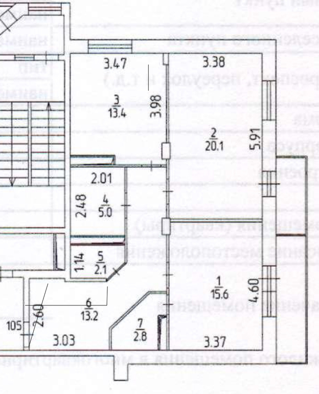
Квартира 2.
Площадь 70 кв.м, монолит.
Было:

Перепланировка:
Пожелания заказчика:
Состав семьи: мама, дочка 3 года, сын с девушкой 18 лет. Каждому нужна комната отдыха. Часто бывают гости. Избавиться от коридора.

Далее обсуждались еще варианты:



Итог нашей работы:

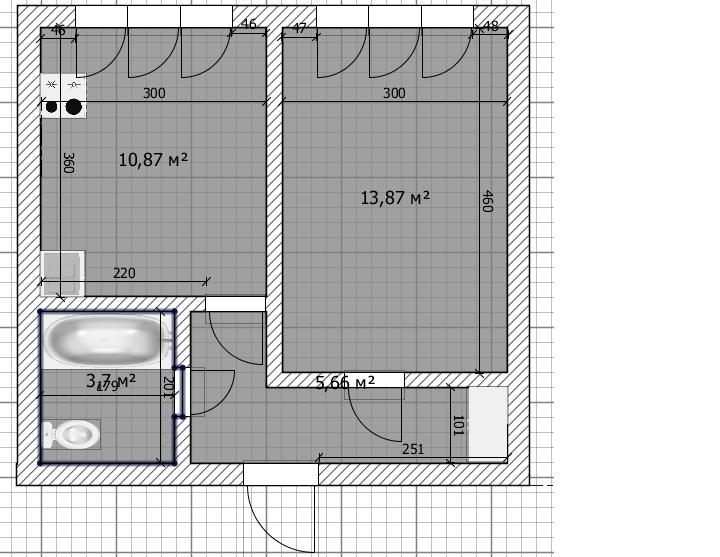
Консультация для ББшечки.
Было:

Пожелания:
Отдельная комната для 2 детей. Спальное место для родителей. Акцента на кухне не было, т.к дома только завтракают.
Предложенный вариант:

_____________________________________________________________________________
P.S
Перепланировки делаю только законные и согласуемые!!!
Грамотная перепланировка это годы и годы работы, ну и конечно опыт!
Наверное не для кого не секрет правильная и логичная перепланировка это 90% хорошего дизайна и гармоничного жилья.
Я ни когда не обещаю 10 вариантов. Как правило их получается 2-3, а за частую и 1 НО! логичный и осуществимый.