Кухня-гостиная. Реально ли?
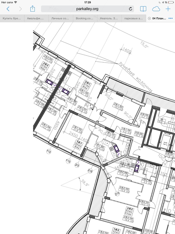
Интерьерное решение кухниВозможно ли из кухни 18,1 м сделать кухню-гостиную. Квартира 2-х комнатная, хотим сделать детскую и спальню, а их кухни - такую зону, где семья будет тусить, и гостей встречать там.. Не маловата ли площадь для этого? Поместится ли диван, обеденная группа (стол и 6 стульев), и собственно, кухонный гарнитур... Как лучше расставить мебель? На картинке - та, которая распашонка 68м. 
Кабаева
ДД! Я тоже смотрела на эту квартиру в мкрн.Красногорский. И решение было однозначное: что для кухни-гостинной 18кв.м. хватит с лихвой.
17.06.2015
Ответить
Рыжая.
А представите себе гостинную своих родителей или бабушек-дедушек, как раз и была в районе 18 кв.м., и в ней помещалось более чем 6 человек при приёме гостей. Теперь уберите из нее кресла и журнальный столик, уберите громозкую всеми любимую в те времена стенку-мебель, теперь поставьте кухонный гарнитур? Ну как место всем хватает?
17.06.2015
Ответить
˙·•●♥๑NA˙·•●♥๑
Вот эта да👍 там даже на картинке (если я в ту сторону посмотрела конечно😁) слева кухня, справа место для гостиной!!! Круто!!! Некоторые и в меньшей площади умещают сразу все, например в коммуналках, а тут и для танцев место останется😄
17.06.2015
Ответить
Нина
Да, верно, там слева кухня. Сначала тоже так решили, что места много, а потом начала сомневаться. Спасибо, за комментарии. Теперь мои сомнения развеяны. Будем потихоньку работать над дизайном.
17.06.2015
Ответить
Ульяна
У меня кухня 14 м, она только как кухня, но и зона для гостей тоже поместиласьбы. А на 18 вообще отлично будет.
16.06.2015
Ответить
Нина
Спасибо, я оч надеюсь на это. Просто сбивают с толку готовые проекты в интернете, где кухня-гостиная по 30-40 м. Хочется посмотреть реальные планировки небольших кухонь, но пока пока нигде не нахожу.
16.06.2015
Ответить
Маринусик
Я думаю у вас все получится!!!! У нас тоже кухня-гостиная 18 м и все отлично разместилось. Главное мебель заказывать у профессионалов — мы заказывали по индивидуальному дизайну на питерской фабрики Кухни-Завтра.
17.06.2015
Ответить
Нина
Да, насчет мебели Вы правы. Посмотрю тоже эту фабрику. Может они представлены в Москве. Спасибо!
17.06.2015
Ответить