Прошу помощи. А вы думаете дизайнерам легко?
Вопросы и ответыДорогие, участницы и участники сообщества, прошу помочь.
Я сама дизайнер интерьера. С мужем купили однокомнатную квартиру для себя. Теперь он- для меня главный заказчик. Я как обычно хочу создать интерьер, в котором было бы комфортно всем. Не только мне. Или не только мужу. Всем.
И вот теперь я не получаю удовольствие от планирования и создания интерьера. Своего родного интерьера, который я вообще хочу создать не на мучениях, а на удовольствии от выбора, от всего что связано с моей уже любимой квартиры.
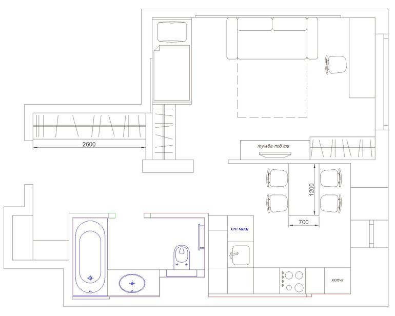
Изначально планировка была такая. На кухне выход на балкон- он не прорисован.
Немного отвлекусь. Муж со свекровью (да простят они меня за такие слова) барахольщики. Я не знаю откуда это. У нас сейчас стоит шкаф во всю стену и туда ничего не вмещается. У сына вся одежда (кроме верхней и зимней) вмещается в две полки от тумбы, у меня тоже много одежды не бывает, просто физически быть не может, тк иначе ничего не вместится в квартире, у меня, например, никогда нет больше двух джинс. Одежда мужа 90-х годов, а также вся ношеная одежда, те 90 процентов- барахла- это выбросить нельзя ни в коем случае- "А вдруг пригодится", "а в чем мы будем на даче ходить? (на даче одежда тоже во всех углах), "А в чем ремонт делать?" Я не настаиваю, и не насилую людей, хотя, видит Бог, меня это раздражает и получается, что насилуют меня. Я не говорю про машинки под попой когда пытаешься сесть и подушками и на каждой полке- в доме мальчики, это их хобби, их жизнь, это нормально.
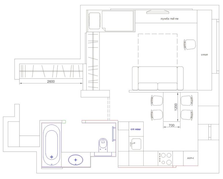
Я спроектировала следующий планы, чтобы было больше места под хранение, под шкафы

Моего мужа не устроило, что мы перекрываем отдельный вход в гостиную (много денег на переделку-считает муж) и даем запахам из кухни просочиться в гостиную. Я спорить не стала. И сделала вот такой вариант
На электрику не смотрите- это черновой вариант. Получается мало места для хранения. Причем над шкафом в гостиной муж хочет сделать кондиционер- больше его вешать некуда, тк трассу нельзя проложить в другое место- есть помехи.Т е шкаф будет даже не до потолка, невысокий такой. Муж уверяет меня, что вещей в квартире будет мало- убейте меня- а я не верю. И/ потом- я знаю как это когда есть раскладной диван- вдоль него постоянно к одеже проходить будет сложно, постепенно она передислоцируется в коридор(? куда ж еще) Мой опыт работы подсказывает мне- зачастую люди сами усложняют себе итак непростую жизнь-впихнуть невпихуемое, непременно сделать так, а не иначе и тд и тп. Как итог вместо комфорта я получаю Бог знает что и даже не могу переубедить, что так будет неудобно. Забыла сказать. Муж бъется за пространство возле монолитного короба на кухне. Воот этот закуток внизу в 0,25 м кв. Этот закуток съел у меня уже года два жизни наверно. Его нужно сохранить (убила б проектировщиков)- иначе за что мы платили деньги? При этом холодильник переезжает напротив кухни- и будет постоянно на проходе- он там не вмещается по глубине, поэтому частично будет торчать. И кухонька будет маленькая. Мне в принципе много то и не нужно. Но проблема в том как верхние ящики будут располагаться? Если будут в закутке, то как будут открываться? Я съездила в икею и сделала два варианта. Нижние ящики оставляем как есть, верхние- от колонны с свч и духовкой три верхних ящика, дальше- полки до стенки ниши. второй вариант, если мы нижние ящики оставляем в нише, а верх зашиваем заподлицо с коробом и будет красота. Причем пространство можно использовать под водонагреватель, тем более что в короб в ванной водонагреватель нормальных размеров не вмещается.Снимать водонагреватель можно. Либо люк делать со стороны кухни, либо как-то со стороны ванной. Либо не делать вообще. Включать снизу, те не зашивать по низу верхних ящиков эту нишу. А если сломается, разбирать возведенный под водонагреватель короб. Как-то так. Я другого выхода не вижу. Мой муж опять уперся- нет и все тут. Нужно сохранить всю нишу. И делать неудобное открывание верхних ящиков.
Что думаете по всему, что я описала Вы? Может поможете какими-то идеями. Или быть может откроете мне глаза на то что я не права. Буду рада любому совету и помощи. Всем заранее спасибо.
первый вариант мне нравится больше всех