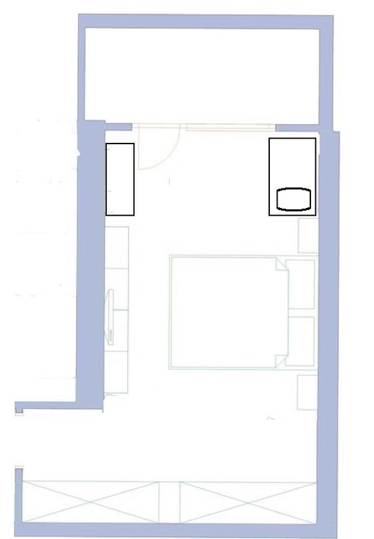
Спальня в двухкомнатной квартире.
Интерьерное решение спальниХочется поделиться и узнать ваше мнение. НЕ переборщила ли я с оформлением?!

Комнаты неправильной формы, вытянутая. Длинная стена - размером 560 см.

Чтобы разбить длинну стены, использовала зазеркаленные стеллажи. Так как ожидается прибавление в семье, то ко временной мебели относится детская кроватка. Уход за малышом будет осуществляться на ней же.

Так как мои проекты , зачастую, использовать в новой квартире имеющуюся мебель, то к ней относится шкафы и тумба под ТВ.

Что скажите?! Может где переборщила?! Или плохо подобрала?!

Анна
Ответила да, но сиреневая стена все-таки выбивается немножко из контекста. Мне кажется этот цвет лишний здесь. Даже использование красного (как на картине) в качестве акцента будет интереснее
14.08.2015
Ответить
Анна
Акценты "дерутся" зеркало, бордовый столик, кресло... Они все классно смотрятся сами по себе, но в целом что-то не-то ощущается...
На противоположной стене снова драка: картина, полочка с картинками, бутылки. Поставьте на полку книги или свечи простые белые по центру полки, бутылку перекрасьте в красный и поставьте с другой стороны от телевизора, чтобы уравновесить композицию.
14.08.2015
Ответить
Poison777
Не хватает детского комода или вообще уголка, плюс хочется эту зону и стилистически выделить. И как по мне, размещение не самое удачное со стороны удобства.
11.07.2015
Ответить
Елена
спасибо, комод маме не нужен, отказалась, пробую расстановку — крвоатка у окна.
11.07.2015
Ответить
Светлана
По стене с изголовьем слишком много всего. Стеллажи (сборник пыли) и зеркала убрать не мешало бы. Я еще кровать сместила бы к центру ближе и поискала другое место для кроватки.
10.07.2015
Ответить
Светлана
Можно стену у изголовья просто обоями оформить.
А если нравятся зеркала, можно что-то подобное сделать, только без стеллажей и кресло к окну, так интереснее смотрится.
А если нравятся зеркала, можно что-то подобное сделать, только без стеллажей и кресло к окну, так интереснее смотрится.
11.07.2015
Ответить
Елена
а вам эта расстановка не нравится?! вот, сколько людей, столько мнений)себе бы я так не ставила кровать тоже)
11.07.2015
Ответить
Аня
В целом понравилось)Но у изголовья кровати слишком много всего. И градиент, и картина, и зеркала, и полки, и тумбы, и торшеры... Ну прям перебор для глаза.
10.07.2015
Ответить
Юлия
я бы наверно сместила кровать ближе к шкафу и убрала такое изголовье с полочками. Соответственно кроватку детскую передвинула к взрослой кровати со стороны окна. По опыту, кроватка первые месяцы все равно рядом с мамой стоит. А в остальном мне понравилось. Может еще чутка зелени добавить, в смысле цветы.
10.07.2015
Ответить
Elena
И еще, я бы предложила, возможно, рассмотреть такое расположение мебели.
Детская кроватка у окна. В дальнейшем там можно организовать кабинет или просто кресло с торшером. По стене с ТВ разместить комод для детских вещей или туалетный столик.
Детская кроватка у окна. В дальнейшем там можно организовать кабинет или просто кресло с торшером. По стене с ТВ разместить комод для детских вещей или туалетный столик.
10.07.2015
Ответить
Елена
вообще да, мне нравится. Сейчас только полкчается кресло можно поставить вместо комода ( он не нужен).
10.07.2015
Ответить
Elena
Там может быть туалетный столик... Но честно, странно, что для ребенка не нужен комод. Мне кажется там удобнее хранить детские вещи.
11.07.2015
Ответить
Елена
а кресло?! в такой большой спальне маме будет удобно с малышом на кресле. А комод да, я ставила , сказали убрать. Может в кроватке ящик выдвижной.
11.07.2015
Ответить
Elena
Лен, мне бросилось в глаза сочитание изголовья кровати с полками и зеркальные стелажи. Как можно будет разместить вещи на полочках в изголовье и на полочках сталажа, если они так близко друг другу? Как руку нужно просунуть и достать что-то? Для чего стеллажи? Почему не просто зеркало? Какую функциональную нагрузку они несут, если есть полочки у изголовья кровати?
10.07.2015
Ответить
Mandarina
Еще вы будете биться об угол кровати все время. Я конечно понимаю что это временно, но все таки.
10.07.2015
Ответить
Оставшиеся комментарии доступны после регистрации
Зарегистрируйтесь и получите полный доступ ко всем функциям сайта.