Девочки.подскажите.пожалуйста
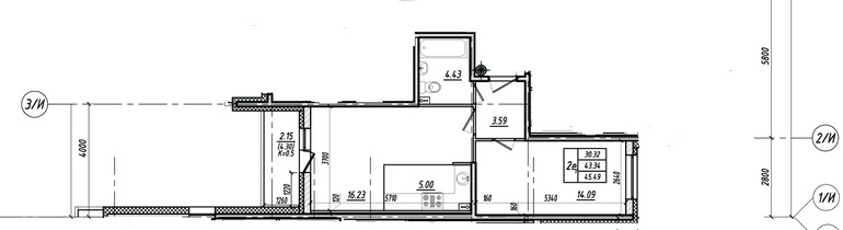
Вопросы и ответыРаньше размешала пост и просила помощи в выборе квартиры.Всем откликнувшимся-спасибо огромное! В итоге нашли новый вариант.сейчас уже оформляем.квартира в новостройке.сдача конец года.. Сейчас очень прошу помощи в расстановке мебели.комната 14м2-будет детская для дочки.как в большой комнате уместить кухню.угловой диван и куда прятать шкафы..о гардеробной уже и не мечтаю..

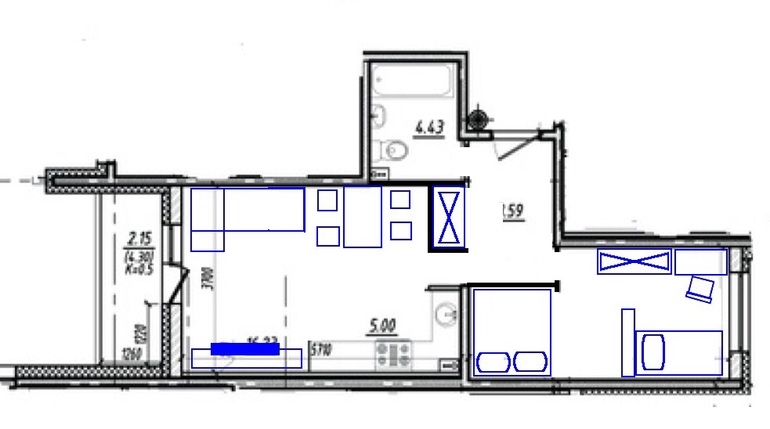
вот что-то пробовала сделать сама, детскую не смотрим-просто мебель натыкала, чтоб понимать, что умещеется в эту площадь..

Наташа (портьерных дел мастер)
Профессионально дизайном интерьера не занимаюсь, но точно знаю, что без плана квартиры с размерами Вам никто не поможет. Кухню (мокрая зона) нельзя размещать над жилым помещением, т.е. перенос только за счет с/узла или коридора, необходимо также учитывать уклон канализации. Эл. плиту (духовку) двигать можно, была в квартире, где секция хранения со встроенным духовым шкафом располагалась фактически в коридоре (часть прихожей присоединили к кухне). С газом все строго, там только в пределах "шаг влево-шаг вправо". Точные нормативы надо искать в нете, или ждать ответа от профи.
14.07.2015
Ответить
Olga
спасибо большое за отзыв, план не смогла с телефона добавить-сейчас все исправила на компьютереу нас электро плита
14.07.2015
Ответить
Алена
Я бы хотела добавить, что по нормам нельзя кухню перемещать на место санузла также. Можно у вас попросить первоначальный план квартиры, что бы понимать где что расположено у соседей? У вас какой этаж? Под вами и над вами жилые квартиры?
14.07.2015
Ответить
Olga
спасибо за отзыв, эта планировка первоначальная, дом еще не сдан, 10 этаж из 18.Особо перепланировку делать не хочется, но не представляю, где можно разместить шкаф или гардероб
14.07.2015
Ответить