Нужен совет про гардероб..
Интерьерное решение спальниИмеется комната, которая станет спальней, не хочу ставить шкафы, поэтому появилась мысль сделать гардеробную, вопрос как лучше??? Вариант №1: гнутые двери-купе Вариант №2: поставить стены и сделать отдельной комнаткой. Фото под кат. Некоторые фото, для примера, взяты с ББ ))))
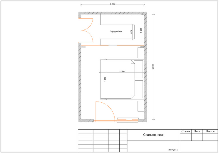
Это карявая схема)))

Фото комнаты, где планируется спальня. Это вход в комнату, дверной проем будет уменьшаться, куда будет открываться дверь вопрос??? Ибо, если будет гардероб, то явно не во внутрь, а если двери гнутые то во внутрь ))))

Собственно сама комната.


А это возможные варианты..


brilla
Делайте гардеробную, думаю так намного удобнее будет, первый вариант очень хорош, а полочки туда вы на http://sferacomfort.ru/gallery/garderobnye_komnaty/ заказать можете.
26.08.2015
Ответить
selena1002
Думаю, можно так сделать: раз хочется простора, раздвижные стеклянные двери на всю ширину комнаты ( 3шт. ,примерно, по 1м), они отгородят гардеробную от спальни и создадут иллюзию глубины. Размеры комнаты прикинула сама по фото. И входные могут открываться внутрь, все зависит от длины гардеробной.
19.07.2015
Ответить
Ива
спасибо ) а по картинке и не скажешь, выглядит такой простой (в хорошем смысле слова)
21.07.2015
Ответить
selena1002
Не за что! В этом нет ничего обидного, все правильно, чертеж должен быть "читабельным" и не только дизайнерами)) это же для работы делается. В Автокаде можно более сложный сделать, со всякими завитушками.
21.07.2015
Ответить
selena1002
Добрый день, Наташа!Это хорошо, что она подлиннее немного)) Дело в том, что если Вы возьмете шкаф с полукруглыми дверцами, то в площади не выиграете особо. Просто в углу будет стоять этот монумент. И девочки правы, это совсем несовременно, увы. А гардеробные сейчас очень актуальны и прозрачные в том числе.
20.07.2015
Ответить
Юлия
Конечно первый вариант! Визуально такие массивные двери-купе смотрятся очень старомодно (но тут на вкуси цвет, это не аргумент, а так мое мнение. А вот аргументы: шкаф-купе займет практически столько де места, только пространство внутри будет менее эффективно задействовано, тк полки-штанги вы сможете разместить только по двум стенам. А в гардеробной сможете заднйствовать 3 стены (даже четвертую на которой дверь тоже можно задействовать под хранение). Чтобы визуально расширить пространство используйте светлые тона стен. Дверь в гардеробную можно сделать откатную, чтобы она въезжала в стену. А можно и обычную узкую дверь поставить. У нас подобная ситуация в новой квартире, будем ставить обычную дверь, не вижу проблемы.
18.07.2015
Ответить
Вероника
Когда жили в квартире мы сделали стены так как вы нарисовали первый вариант, только не из стекла а прям из кирпича стена была, нам оч нравилось
18.07.2015
Ответить
Elena
я не читала комментарии. но мне кажется лучше обычный а не гнутым. как вы там внутри полки будете вещать — все под заказ? неудобно же. а в квадратном (обычном) и коробки и фзики и все остальное легчко можно будет подобрать и помнеять при необходимости
18.07.2015
Ответить
Оставшиеся комментарии доступны после регистрации
Зарегистрируйтесь и получите полный доступ ко всем функциям сайта.