Квартира для семьи в перспективе из 4х человек.
Авторские проекты дизайнеров.(Посты не по теме будут удаляться!)Вот доделала проект, который мне очень нравится. Правда есть много разногласий с заказчиками по некоторым аспектам, выложу вариант, который близок мне.
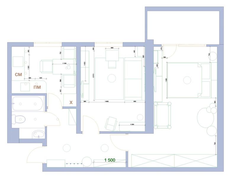
Прихожая. Просторнее, благодаря еще тому, что шкаф - маленькой глубины, да к тому же уже есть.


Спальня. Заказчики хотели спальню - гостинную, с диваном угловым, но вовремя решили отказаться, думаю ,когда малыш подрастет, удачно добавится второе кресло и будет милая зона для тет-а-тет посиделок.
Вариант спальни выбрали не этот, а мне , прям ну очень нравится этот.


Детская. Простая просторная. Пока такая. Желание - обязательно полосочки в изголовье.


Кухня. Была перепланировка, немного сдвинули стену, чтоб осталось место для холодильника. Кстати - стиральная машина тоже живет здесь.

А будет скорее фартук таким, из-за изменений в раскладке пола.

Ванна. Самое трудное для меня помещение, так как предлагаемой плитки настолько великое множество, что трудно определится.)

Ну вот, как то так.
Работы ведутся быстрыми темпами, надеюсь, что скоро меня порадуют живыми фото с квартиры.
С удовольствием выслушаю любые комментарии.
по коридору и кухне вопросы в оформлении. В коридоре они хотят на пол панно из плитки выложить, я против) Хотя изначально я предлагала красивую плитку с интересным рисунком, не оценили.По кухне, решили пол делать активным т е плитка с узором, для этого уже обои спокойные нужны.. вообщем так вот.