Гостинная-спальня 12 кв/ м
Интерьерное решение гостинойЗдраствуйте девченки помогите ну с очень маленькой гостиной как организовать пространство цветовое решение какую мебель под тв с напольными колонками( 20х35х93)
обои шторы всю голову изломали 


вот у нас какие двери и пол диван будем менять хотим взять тик так на металлокаркасе колонки молодой человек убрать не хочет и то что дверь открывается во внутрь мебель подобрать трудно
selena1002
Галя, добрый день!Ваш план увидела позже, сначала сделала свой. А размеры?
04.08.2015
Ответить
Галя
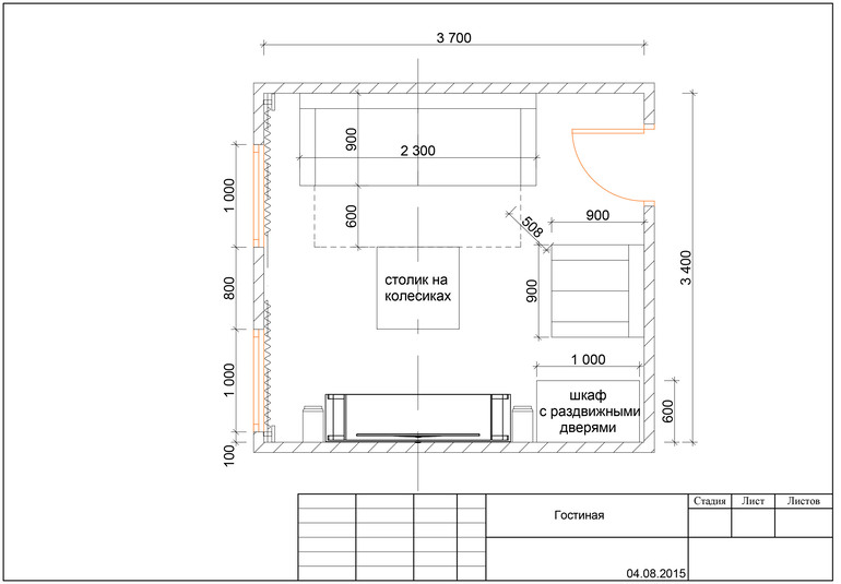
Добрый selena.Спасибо что откликнулись на мой зоы помощи про какие размеры вы спрашиваете. Забыла сказать что гостинная еще является и нашей спальней
04.08.2015
Ответить
Галя
Диван размером 2.30х90 разложеный 2.30х1.50 кресло 90 обычное хочу шкаф это порядка 60 см( этот шкаф чисто для переодевания в домашнее чтоб это не лежало горой на кресле) и навесные шкафы над тв(модульная гостинная но маленькая) по вашему варианту можно только тумбу для тв поставить чтобы не аерекрывать окно а по нашему из за двери открывающейся во внутрь целый метр пропадает((( Я шторы и тюль хочу на одну гордину на оба окна а муж хочет римские шторы говорит это практичнее и не уменьшает и без того маленькое пространство
04.08.2015
Ответить
Галя 
Горка типа таких от руки это то что муж предлагает сделать под заказ по нашему варианту со стороны двери вся установка мебели должна уложится в размер 2 .70 горка получается в 2.20 если по эскизу то выходит в 2.40 что вписывается в размеры

Горка типа таких от руки это то что муж предлагает сделать под заказ по нашему варианту со стороны двери вся установка мебели должна уложится в размер 2 .70 горка получается в 2.20 если по эскизу то выходит в 2.40 что вписывается в размеры
04.08.2015
Ответить
selena1002
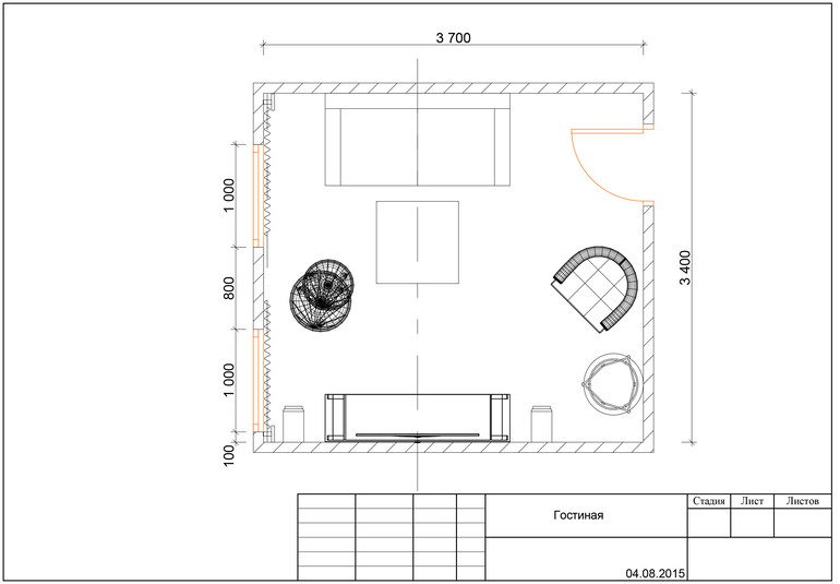
Вот теперь понятна вся картина, а то колонки)) Насчет штор я думала тоже разделить, но окна несимметрично. Поэтому обозначила общий карниз для начала. Там нужно делать развертку стены со шторами и смотреть, что лучше. Это могут сделать в салоне штор.
04.08.2015
Ответить
Галя
Спасибо за ответы . С этими колонками уперся делай что хочешь но чтоб были)) да телевизор 42 диагональ размер тумбы значит 1.20
04.08.2015
Ответить
selena1002
Если колонки ставить с двух сторон такой композиции не очень красиво будет...
04.08.2015
Ответить
Галя
Спасибо,это да..места совсем нет а если диван розложить то и пройти негде ((
04.08.2015
Ответить
selena1002
Кресло можно попробовать поставить на другую сторону — к окну, а эту стену занять г-образным шкафом.
05.08.2015
Ответить
Галя
Спасибо Selena. Тоже думала про этот вариант но кресло всеровно как то мешается похоже придется отказаться от шкафа оставить диван кресло и мебель под тв чтоб не перегрузить пространство За стеной есть коридор там стоит встроеный шкаф купе 2.60х2.60 придется его немного переоборудовать под нужные потребности
05.08.2015
Ответить
selena1002
Можно попробовать вот так, но композицию с тв и шкафом нужно продумать.
04.08.2015
Ответить
под заказ