Помогите расположить мебель в комнате для двух девочек-двойняшек!
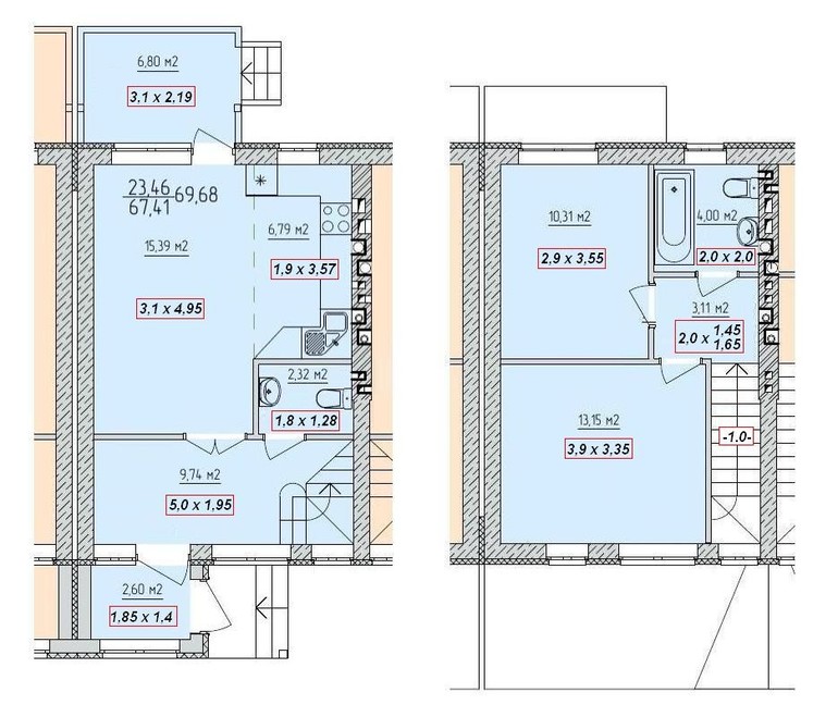
Интерьерное решение детской комнатыВсем привет! Скро въедем в квартиру нашу. Имеется комната 3.9 м/ 3.35 м. Площадь ориентировочно 13 м2. С двумя окнами. Планирую мебеь стува, 2 кроватки. как лучше слделать? план прилагается. Комната на втором этаже.

Семицветик
Девочки еще маленькие, я бы не стала делать огромные шкафи на пол комнаты. А то получается как лилипуты в стране великана. Все же детская и мебель должны быть по возрасту, это же их маленький мир.Игровую зону у окна, чб светло было и приятно играть, а кровати подальше от окон. Потом столы лучше к окну поставите.
08.08.2015
Ответить
Светлана
Если кровати подальше от окна, то вот так. Но тогда у каждого не будет своего уголка. 
Либо на пустой стене стеллаж для игрушек, а у окна игровую зону. Но тогда в дальнейшем в любом случае куда-то стол ставить. Я лично сразу в детской стол поставлю, пока дочка будет играться, я буду рядом за компьютером работать )

Либо на пустой стене стеллаж для игрушек, а у окна игровую зону. Но тогда в дальнейшем в любом случае куда-то стол ставить. Я лично сразу в детской стол поставлю, пока дочка будет играться, я буду рядом за компьютером работать )
09.08.2015
Ответить
Наталья
У меня подруга тоже мучилась с расстановкой, потом нашла в интернете магазин детской мебели Mymilly. Они производят и продают детскую мебель. Им можно отправить план детской и они сами делают несколько вариантов с расстановкой и нужной мебелью. Все бесплатно. Она показывала мне их работы, ну очень красиво! Все стоит как живое, 3d визуализация что то ли называется. Отправьте им, не пожалеете :)
07.08.2015
Ответить
Оленька
Это таухнхаус)да площадь то не очень большая, но пока хватит. делема с комнатой для дочек.эти 2 окна на дают покоя
07.08.2015
Ответить
Светлана
А я наоборот люблю больше маленькие комнаты, убираться легче )) А кроме двух кроватей что еще будет в детской?
07.08.2015
Ответить
Оленька
Во первых, не знаю, где и как лучше разместить кровати. ну шкаф или два маленьких, комоды. В дальнейшем — письменные столы вдоль окон думаю поставить.
07.08.2015
Ответить
Оленька
Спасибо за идею!вы где это рисовали?кровати вот и так и сяк представляла, хочется, что бы у каждой был уголочек, да не развернешься)
07.08.2015
Ответить
Светлана
Второй вариант получше )
Рисовала в SketchUp 2015, но он на английском.
Рисовала в SketchUp 2015, но он на английском.
07.08.2015
Ответить