Расстановка мебели в угловой комнате.
Интерьерное решение гостинойДобрый день девочки!!!! Прошу прощения буковв много.Сама всю голову сломала уже((((
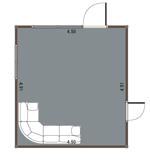
Прощу коллективной помощи в расстановке мебели в комнате.Комната угловая, два окна. Проблема в том, что много мебели и она громоздкая, убрать или выкинуть не могу. т.к. квартира съемная и мебель хозяйская.Мебель: Шифоньер полировка длина 1,5 шир 70 см; комод 1,30 на 50, стол журнальный 1 метр.Также в комнате угловой диван большой (2,65 на 1,75) и комод наш собственный 1 м на 40 см.
Для наглядности выкладываю макет из планоплана уже с диваном.
P.S. Квартира угловая хрущевка, мы в этой комнате постояяно обитаем.Спим на диване
Всем заранее огромное спасибо!!!!! 
Елена
диван — спинкой к левой стене вверх т е к окнам. Напротив дивана — на противоп. стене — широкий комод.По стене, где диван — внизу шифонер.. По нижней стене ближе ко въоду видимо ваш комод. А столик по факту уже.
11.08.2015
Ответить
Юлия Петрова/Богданова
Елена, у нас проблема в том, что 2 батареи как раз под окнами и если ставить диван то в отопит сезон батареи закрыты, а сейчас проблема в том, что окна не открыть полностью, т.к. спинка дивана высокая и окна полностью не открываются((( Вообщем та еще дилема
12.08.2015
Ответить
Елена
одна створка вроде ж должна настеж открыться!)да и всегда помним, что при небольших квадратах чем-то жертвуем.
12.08.2015
Ответить
Ирина
практически как у нас зал.Тоже всю голову сломала, куда впихнуть шкаф.Послушаю, может кто идею подкинет
11.08.2015
Ответить
Юлия Петрова/Богданова
Да Ирина планировка ужасная, учитывая что у нас диван стоял около окон(окна были старые, вчера поставили ПВХ) и теперь неудобно жуть как.Да еще и зимой отопление от этих двух батарей
11.08.2015
Ответить