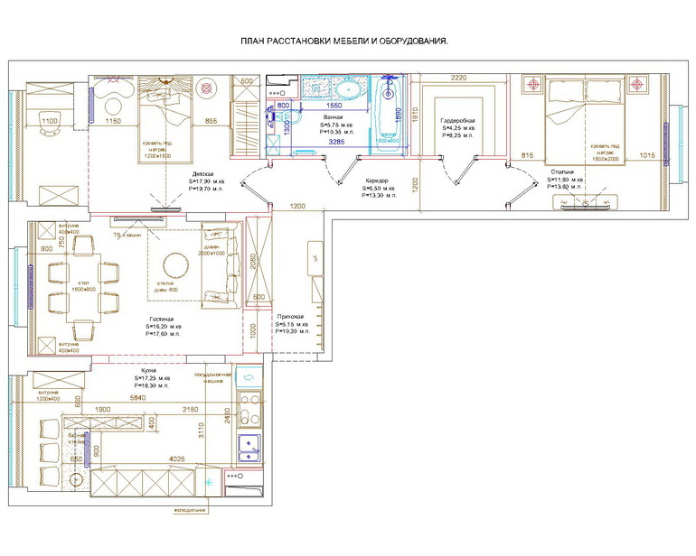
планировка
Перепланировки стен. Согласование перепланировки квартир и нежилых помещений.Девочки!помогите!есть такая квартирка и вот такая планировка!посмотрите подскажите все ли так?есть ли ещё какие варианты?всю голову сломали!пора двигаться дальше а мы не можем решить все ли хорошо у нас с кухней?может можно что ещё придумать?
Елена
.
вас смущает мойка и плита рядом? с другой стороны от плиты есть рабоча зона. И вообще можно скромнее выбрать варочную аоширине, также раковинц
.ц
06.09.2015
Ответить
Tatiana
Такая большая кухня и так неудачно у вас спланирована, простите. Например, ополоснув тарелку под краном, ее надо полугрязную донести в ПММ через плиту. куда сложить овощи, помыв их в раковине.. справа от холодильника нет же рабочей поверхности? куда продукты вытащить можно?
05.09.2015
Ответить
Ольга
Площадь кухни большая, а спланирована неудобно. У вас варочная и мойка совсем рядом!? Между ними должна быть рабочая поверхность. Картинка мелкая и не совсем понятная. Над или возле ПММ нужна сушка для посуды. Холодильник визуально разбивает гарнитур на две половины. Вы просто представьте, что и за чем вы делаете на кухне и можно будет обойтись без визуализации. На такой кухне при готовке вы будете наматывать километры.
05.09.2015
Ответить
Светлана
какие варианты?кухня уже куплена поэтому проект делаем с учётом уже имеющейся кухни!рабочей поверхности да !не хватает!плита и мойка 1800м поэтому расчитываю пользоваться свободным местом около раковины как рабочей поверхностью!на кухне в правом нижнем углу короб с трубами который трогать нельзя!это надо тоже как то обыграть!
05.09.2015
Ответить
Светлана
моя проблема что не могу я это визуализировать!не могу представить как это будет выглядеть((((((
05.09.2015
Ответить