Планировки дома. Корректируем!
Постройка дома, этапы.Пришли наши первые планировки, теперь будем их корректировать.
Ниже планировки, экспликации, наши мысли. Если есть еще идеи и советы в рамках уже выбранного решения - буду очень благодарна! Прошу под кат.
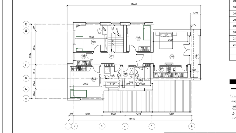
1 этаж

Экспликация:

2 этаж

Экспликация:

Техническая мансарда (вентиляция, кондиционирование, кладовка)

Экспликация:

Ну и наши изменения:

+ вход в котельную будет и из тамбура, и из кухни.
Если есть еще предложения, очень жду! Спасибо!
Дизайнер 3D
Здравствуйте. Если вам нужны чертежи или 3D визуализация,
Могу предложить свои услуги. Подробнее можете ознакомится в моем дневнике.
Цены доступные.
Звоните или пишите 89161649464@mail.ru
01.04.2016
Ответить
Саша
очень нравится ваш второй этаж, особенно отдельная постирочная и спальная зона родителей, получилось очень удобно, на мой взгляд.
Выход в сад из гостиной я бы сделала, ну хотя бы для того, чтоб покурить выйти из гостиной. Или показать гостям свои цветочки\помидоры)))
Выход в сад из гостиной я бы сделала, ну хотя бы для того, чтоб покурить выйти из гостиной. Или показать гостям свои цветочки\помидоры)))
23.11.2015
Ответить
akvitty
Спасибо большое! Муж тоже говорит, что нужно делать. Там сейчас участок соседний, который, возможно, получится позже выкупить. А значит, будет, КУДА выходить)))
23.11.2015
Ответить
Катеринкина
Меня смущает изначальная планировка в которой столовая-кухня и гостинная в разных частях дома...мне кажется неудобно будет.
А в остальном...мы долго делали свой идеальный проект..вот знаете в итоге...по фик))) верите, на самом деле все эти детали по мне ни о чем.
23.11.2015
Ответить
akvitty
Это было мое требование: чтобы не разводить жральню в гостиной))) но это вопрос личных заморочек, конечно!
Спасибо)) Думаю, мелочи со временем сотрутся из мыслей, но сейчас так хочется все сделать максимально удобно)) Пока есть время!
23.11.2015
Ответить
Катеринкина
У нас у друзей кухня и столовая объеденены. А гостинная за стенкой...так они гостинную толком не доделали. И суются туда, когда для застолья места в кухне мало))) так и сидят в кухне)))
одно помещение - дело вкуса...а я к тому, чтобы хотя бы рядом)))
Мелочи да..стираются))) но процесс конечно приятный)))
23.11.2015
Ответить
akvitty
Я имею сейчас возможность поюзать разные варианты, но мне больше нравится отдельно, чем вместе)) Есть возможность уединиться иногда))
Процесс очень увлекательный))
23.11.2015
Ответить
Катеринкина
Я сама как в игрушки играю)))) прям кайф..сначала общий вид...теперь плитки-мебель смотрю..
23.11.2015
Ответить
❀ Юлиса✿
Прихожая 101 будет отапливаемая? Т.е сам вход в дом и будет вход в 101? Если так, то либо должно быть две двери, либо тамбур пристроенный с улицы, иначе на двери будет конденсат зимой, обратите на это внимание.
23.11.2015
Ответить
akvitty
Спасибо! Прихожая будет отапливаться теплым полом, скорее подтапливаться. Странно, сейчас в доме у свекров прихожая отапливается, но конденсата нет. Нужно проработать вопрос!
23.11.2015
Ответить
❀ Юлиса✿
Да, проработай,так - как пунктик себе поставь просто. У нас тоже отапливается теплыми полом только.и блин конденсирует дверь стальная. Вынуждены поставить вторую пластиковую теперь.
23.11.2015
Ответить
Miami
На мой взгляд, площадь гардеробных для дома маловата, но это зависит, конечно, от того, сколько у вас вещей. У меня сейчас гардеробная 9м, и я мечтаю дочке сделать отдельную, потому что места мне мало... И прихожая 5 метров, это тоже совсем для дома немного, может быть есть возможность, котельную поменьше сделать?
23.11.2015
Ответить
akvitty
Я бы и рада сделать гардеробные побольше, вообще очень их люблю нежно. Но не знаю, как. Если есть идеи, с удовольствием приму в работу! Одна надежда на то, что раз дом не на ПМЖ в ближайшее время, то вещей будет умеренно...
Котельная и так маленькая, борюсь там за каждый см. Там должен встать газовый котел, бойлер на 200 литров, гидроаккумулятор на 200 литров, система фильтрации. И еще ведро, швабра и пылесос для 1 этажа. Прихожей небольшой, думаю, будет достаточно, чтобы раздеться. Разве что хочу дверь входную сдвинуть левее - в край, чтобы справа было больше места под мебель.
Спасибо большое за ответ!
23.11.2015
Ответить