Дизайн-проект "Бурные 60-е"
Авторские проекты дизайнеров.(Посты не по теме будут удаляться!)Всем привет! Это опять я.

Сегодня покажу необычный и в чем-то переломный для меня проект. Переломный, потому что последние пару лет ко мне обращались люди за провансом, современной классикой или на худой конец, за сканди. И вдруг пришла прекрасная девушка за стилем шестидесятых... Я конечно с радостью взялась за дело. Люблю выходить из зоны комфорта, и браться за новое. Только так можно расти и развиваться.
И вот мне, любителю все отмыть и высветлить добела, пришлось создавать динамичное, красочное и даже несколько провакационное пространство. Ведь стиль 60-х - это прежде всего протест, восстание против традиций, стиль хиппи.
Конечно, мы использовали не все тенденции этого стиля. Например, мы взяли яркие цвета, черно-белые контрасты, аутентичные геометрическое рисунки, но оставили без внимания этнические отпечатки, индийские ткани из хлопка, сари и гобелены.
Заказчица, вообще, очень четко представляла себе, что хочет. Почти все эскизы утверждались с первого раза. Только с детской пришлось помудрить. Она, кстати, единственная - не в стиле 60-х. Решили выполнить ее в более классическом, спокойном стиле.
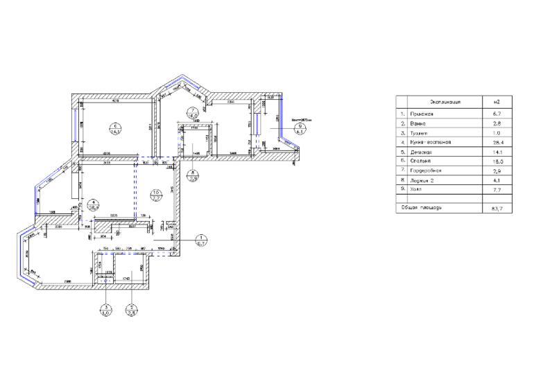
Итак, 3-х комнатная квартира 84м2. Проживать будут трое (мама, папа, маленький сыночек). Лоджию в гостиной решено присоединить и сделать на подоконники рабочий стол для ноута. Лоджии в спальне утепляем, но не присоединяем, там будет место для собаки. В спальне монтируем гардеробную комнату. В эркере ставим туалетный столик.
Обмерочный план

План перепланировки

План расстановки мебели

1. Прихожая-холл

2. Кухня

3.Гостиная

4. Спальня

5. Детская

6. Туалет/ванна

Спасибо за внимание! Буду рада комментариям и вопросам.
Все еще действует Новогодняя скидочная акция.
Старая цена на полный дизайн-проект:
- до 60м2 - 1900руб./м2
- от 60 до 110м2 - 1700руб./м2
от 110м2 - 1500руб./м2
Цена по акции на полный дизайн-проект:
- до 60м2 - 1700руб./м2
- от 60 до 110м2 - 1500руб./м2
от 110м2 - 1300руб./м2
Акция продлится до 15 февраля 2016 года (т.е. записаться на встречу/обмеры надо не позднее этой даты). Не распространяется на дизайн отдельных помещений.
Моя почта: Naamah1987@yandex.ru
Мой телефон: 8-905-767-13-32