Кухня 6м кв
Интерьерное решение маленькой кухни
Девочки привет! Собираюсь делать ремонт в крохотной кухоньке. Перечитала все темы из соответствующего раздела. И, исходя из изученной информации, с мужем нарисовали вот такой план.
В угол планируем встроить вот такую панель:
Единственное возникает вопрос: есть ли какие-нибудь шкафы, чтобы закрыть угловую вытяжку или какие-то вытяжки специально для угловых шкафов.
Ангелина-Кухни /Шкафы на заказ
Алена, а почему не хотите первый вариант, только мойку в углу вместо варки?
03.03.2016
Ответить
Алёнушка
Девочки! Еще возник такой вопрос. Чем лучше покрыть стены на кухне: обои или декоративная штукатурка?
14.02.2016
Ответить
Алёнушка
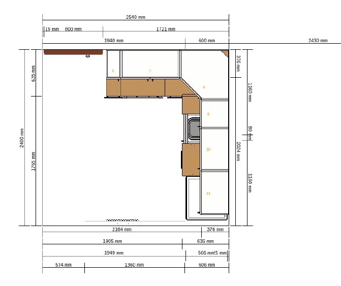
Девочки, доброе утро! Вчера целый день опять занималась планированием кухни с подругой. В итоге, пришли к общему мнению, что тот вариант (варочная панель в углу) не очень подходит ввиду сжирания пространства вытяжкой. Думаю делать вот так (как у Лены):
У кого такая же планировка - просьба добавить свои фотографии и отзывы. Спасибо!
У кого такая же планировка - просьба добавить свои фотографии и отзывы. Спасибо!
25.01.2016
Ответить
Ольга
Мне кажется вы перемудрили. Этот вариант самый не удобный. Варочная возле двери-это жир на полу в проходной зоне, можно задеть горячую сковороду или кастрюлю. Я бы от двери ПММ, мойка, а по другой стороне варочная, под ней духовка, шкафчик и холодильник. На кухне я за моющиеся обои. У кого видела краску-вечно грязные, побитые и не уютные стены. Но это только мое мнение. Я хочу кирпичик и моющиеся обои. Краску, разве что, на стене где окно и батарея.
14.02.2016
Ответить
Лилия
У вас мойка будет прям у холодильника? А посудомойка рядом с плитой? У нас тоже такая кухня и мы все в раздумьях. Я хочу ППМ, но боюсь не хватит места ((
15.02.2016
Ответить
Лилия
А вы в икее будете заказывать? По цене сколько выйдет такая кухня, не знаете? У вас не плохо получилось, единственное смущает мойка у холодильника, удобно ли будет?!
15.02.2016
Ответить
Алёнушка
Нет, заказывать буду не в икее, потому что:
1. У меня своя ПММ (сименс). Говорят их шкафы, точнее фасады к "сторонним" ПММ не подходят. Приходится что-то мудрить, придумывать. Мне это не очень хочется: отдать немалые деньги и что-то еще потом придумывать для нормальной функциональности кухни.
2. Говорят, в икее качество ЛДСП хромает.
В икеевском калькуляторе такая кухня вышла в районе 70тыр (без техники)
Заказывать буду у знакомых. Если что-могу дать контакт потом.
Что касается мойки у холодильника: т.к. будет ПММ, то использование мойки сведется к минимуму. Почему она там - да потому что, при моем расположении мебели (один из важных моментов - большой шкаф внизу) ее больше некуда впихнуть. Поменять плиту и мойку местами? Можно, но тогда холодильник будет вечно в жиру, даже если между ними будет бутылочница в 20см Проходили уже)))
15.02.2016
Ответить
Лилия
Да, мы сейчас с такой же кухней живём. На холодильник муж какую-то штуку повесил, иначе испортили бы давно его. А у знакомых за сколько кухню планируете брать? Как качество?
15.02.2016
Ответить
Алёнушка
Там цена больше зависит от фасадов. Эмаль (верх/низ) в ноябре было где-то в районе 85. Планирую низ-шпон, верх-эмаль. Это немного дороже выйдет + шкафы верхние еще 96см сделать, чтобы до потолка они были.
Качество хорошее. Вся фурнитура - блум. И дсп эггер или невский ламинат.
15.02.2016
Ответить
Ольга
Тоже вариант, только возле холодильника боковушку сделайте, чтобы вода не затекала.
15.02.2016
Ответить
Алёнушка
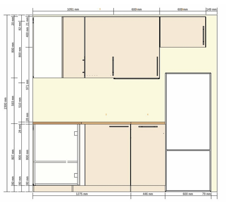
Девочки, вот как у меня получилось нарисовать в икеевской программе мой вариант.
Поясню, какие преимущества я вижу в такой расстановке:
1. Это место в угловом шкафу, "бутылочница" (она не играет большой роли)
2. Большая рабочая поверхность: 80см и 45см.
3. Мойка, к примеру, вот такая: http://www.arsenal-bt.ru/kitchen_sinks/granite_sinks/washers_for_the_installation_of_bollards_in_the_width_of_40_cm/classic_cls400500-49_croma?r1=yandext&r2=&ymclid=53225829496425921588001
Сейчас у меня размер "дырки" 40*33, хотя, размер всей мойки - 50*60.
19.01.2016
Ответить
SIMONA-кухни
не понимаю, если стандартную варочную разместить над духовкой, пространства в нижних шкафах не убавится, а полезный объем внутри углового немного увеличится
+ верхний угловой вместительный шкаф освободится от вытяжки
19.01.2016
Ответить
Алёнушка
Буквально перед Вами написала комментарий)))
Смотрите. Сейчас у меня такая планировка (в 1 ряд, слева
-направо): мойка 50см, шкаф с двумя дверьми и ящиками 90см (2*45), шкаф 20см, плита 50см, 30 см - продолжение столешницы. При этом, площадь для хранения в шкафах у меня сейчас 1,1*0,6= 0,66 м кв (это в 1 ряд). В предложенном мною варианте я пытаюсь сохранить данную площадь и удобство пользоваться ею.
19.01.2016
Ответить
SIMONA-кухни
этот текст выше моего понимания :), я смотрю на нарисованную Вами схему
19.01.2016
Ответить
SIMONA-кухни
Есть конечно, почему не вот так реализовать нижний ряд исходя из нарисованной Вами выше схемы?
Есть конечно, почему не вот так реализовать нижний ряд исходя из нарисованной Вами выше схемы? 
19.01.2016
Ответить
Алёнушка
Рассматривали такой вариант, НО: стена, где Вы нарисовали варочную панель граничит с санузлом, а это коробка гипсовая и, боюсь, шкаф с вытяжкой и остальным внутреннем наполнением может не выдержать. Плюс, по-моему, сужается рабочая поверхность.
19.01.2016
Ответить
SIMONA-кухни
У остальных выдерживает и у Вас выдержит, а если боитесь, то снизу подоприте листовым материалом ....и к потолку на цепи и анкера если уж совсем боязно
Не забывайте, что верхний угловой шкаф крепится одной сторон к бетону, а к нему прикручен 4-мя стяжками шкаф с вытяжкой (помимо крепления в гипсовую стену), с другой стороны к угловому шкафу прикручен еще один точно так же.
Не забывайте, что верхний угловой шкаф крепится одной сторон к бетону, а к нему прикручен 4-мя стяжками шкаф с вытяжкой (помимо крепления в гипсовую стену), с другой стороны к угловому шкафу прикручен еще один точно так же.
19.01.2016
Ответить
SIMONA-кухни
дело не в панели, а в том, как удобней организовать пространство в Вашем случае
в других случаях угловая варочная, наоборот, подойдет лучше
должно быть место между мойкой и варочной, вот в чем дело, это один из принципов, так удобней готовить
19.01.2016
Ответить
odri86_(меня зовут Тийна)
Всю свою сознательную жизнь с мойкой в правом углу и только тут на бб вычитала, что, оказывается должна локтем все время биться ))) даже потом специально проверяла- почему-то не бьюсь )) но вот то, что холодильник будет вечно в брызгах - это факт и с этой точки зрения, расположение действительно неудачное
20.01.2016
Ответить
Ольга
А может ну ее, такую огромную угловую варочную панель!!!??? Мне кажется она неудобная и занимает много места. Или вы хотите, чтобы большой шкаф для кастрюль получился? У вас рабочей поверхности очень мало, . Духовой шкаф с СВЧ это модель 2в1? Кухня 6 кв м?
А может стандартно: холодильник, шкаф на 20 см, духовой шкаф на 45, шкаф на 50 см. По короткой стороне мойка, ПММ, шкаф на 40 см
19.01.2016
Ответить
Алёнушка
Ольга, спасибо за совет. Но тут вопрос стоит еще в максимальном пространстве в нижних шкафах. Как я думаю, то такой вариант (угловой шкаф) наиболее предпочтителен и удобен. Да, духовка вместе с СВЧ, а они только 60см. Кухня 6м. Сейчас рабочая поверхность у меня 110см, при новой планировке получится: 80 (по одной стороне) и 45 - по другой (где ПММ).
19.01.2016
Ответить
Ольга
Еще раз пересмотрела ваши наброски. В принципе не плохой вариант для маленькой кухни, нестандартный, но все же имеет право на существование. Но, вопросы все равно есть. У вас получается один угловой шкаф. А где хранить ложки - вилки, мелочевку? Может рассмотреть вариант-переставить холодильник на противоположную стену или вам нужна вместительная обеденная зона? Или на противоположную стену поставить духовой шкаф, например, и добавить верхние шкафчики.Или поставить лавку в которой выдвигается большой ящик для хранения.
19.01.2016
Ответить
Алёнушка
Оленька, спасибо за поддержку! Выдвижной ящик для мелочевки будет над духовкой, так как она по высоте 45см, но, увы, в икеевской программе это нельзя нарисовать. Холодильник сейчас стоит в углу у противоположной стены. Надо расширить обеденную зону.
19.01.2016
Ответить
Редиска
Угловые вытяжки https://market.yandex.ru/catalog/54935/list?hid=90581&how=dpop&gfilter=2142356669:-645906976&gfilter=2142356671:-156504369,-104164077
19.01.2016
Ответить
Алёнушка
Да, видела. Вот и стоит вопрос: возможно ли их интегрировать в угловой шкаф?
19.01.2016
Ответить
Редиска
Я бы посоветовала поменять местами мойку и посудомойку. Что планируете хранить в узком выдвижном пенале? Есть угловые вытяжки. Дырку под варку можно сделать любую, в любой подходящий шкафчик
19.01.2016
Ответить
Алёнушка
Тоже рассматривала такой вариант. НО: т.к. холодильник стоит перед газовой трубой, то он будет выпирать немного, примерно сантиметров на 10, в следствии чего, возможно, не удобно будет пользоваться самой мойкой. Хотя, если есть практика в таком расположении, то я с удовольствием выслушаю Ваши мнения.
19.01.2016
Ответить
Редиска
Опыт есть, но фото нет)) Гораздо неудобнее когда плита и мойка совсем рядом
19.01.2016
Ответить
Алёнушка
Рекомендуете все-таки поменять их местами? Если будет возможность выложить фото такого размещения - попробуйте, пжл. Спасибо.
19.01.2016
Ответить
Редиска
Фото не смогу выложить, это была съемная квартира 6 лет назад.. Я бы еще пригляделась к 2-3 комфортным варочным поверхностям. Все таки она у Вам много места занимает...
19.01.2016
Ответить
Мама Челик
А не далеко вы собираете тянуть газовый шланг? Варочные панели угловые намного дороже обычных. Тоже рассматривала на свою кухню варочную в угол. Отказались от этого. Вытяжки найти можно любые, весь вопрос в бюджете.
19.01.2016
Ответить
Алёнушка
У маня сейчас газовый шланг 1,5 м. Ну будет от 2,5. Ничего страшного. Да, дороже. Но, ради места, все же, придется раскошелиться. А Вы почему отказались?
19.01.2016
Ответить
Анатолий Николаевич
Если Вы в этой квартире живете давно и у Вас все нормально,то ремонт делайте как-бы в том дизайне,который у вас не сегодняшний день.Могут появиться вопросы отчего такая рекомендация:это для того,чтобы в вашей кухне не сменялась та нормальная энергетика,которая есть,так как сменив цветовые решения или месторасположение кухонных устройств Вы смените энергетику периметра самой кухни,а с ней и то,что поступает в ваш организм.Ну а это приведет к другим событиям в дальнейшем.Более подробно об этих вещах у меня здесь в дневнике.
19.01.2016
Ответить
Алёнушка
Уважаемый, Анатолий! Я спрашиваю мнение по данной планировке не исходя из какого-то фэн-шуя, а исходя из практичности.
19.01.2016
Ответить
Анатолий Николаевич
Вот Вам и посоветовали,чтобы и дальше было что на этой кухне готовить.
Если не догоняете и воспринимаете в формате "какого-то феншуя",то зайдите на любой форум по феншуй и почитайте комменты тех,кто пренебрег хотя бы элементарным по феншуй и теперь нет денег даже на тех "спецов",которых там навалом,как стервятников.А мне Вы не клиент,я вам по доброте душевной рекомендовал ничего кардинально не менять,а что Вы будете "жрать завтра",так это мне фиолетово.
19.01.2016
Ответить
Алёнушка
Анатолий, давайте будем говорить по-существу. Пожалуйста, не засоряйте тему комментариями такого типа, как Вы уже изложили.
19.01.2016
Ответить



но доступ в угловой шкаф будет неудобным. (где стиралка - там ПММ)
как-то так...