Ваши вопросы - мои ответы
Вопросы и ответыДевушки в предверии праздника Влюбленных
отвечу на интересующие вас вопросы по планировке ваших квартир. Отвечу первым 14 вопрошающим:)
Например у вас планировка от застройщика, или вы хотите сделать из трешки - 4 комнаты. Пишите здесь исходные планировки и пожелания.
Всем хорошего настроения и праздника!
Дарья
Добрый праздничный вечер =)
Елена, не могли бы вы подсказать:
1) как лучше разместить диван в зале, на цифре 1 или 2? Обычно диван все время разложен. Мы - молодожены, и в будущем появится ребенок -- поэтому хотелось бы заранее разграничить комнату.
В варианте 1 мне нравится, что комната остается свободной, и что она легко поделится на зону малыша и нашу с мужем. Плюс диван можно будет оставлять в разложенном состоянии, или даже купить кровать
Вариант 2 мне нравится тем, что на место "1" можно поставить огромный шкаф. Но я боюсь, что диван будет занимать много места, и вариант с кроватью явно сюда не подойдет.
2) у нас объединенный санузел, куда нужно впихнуть туалет+ванну+раковину+стиральную машинку. Мы уже купили угловую ванну (как на рисунке), ее ширина - 1м. От края ванны до стены остается около 85-90 сантиметров (еще не сняли плитку, не знаем точно). Куда - на "3" или на "4" поставить раковину, а куда стиральную машинку? стояк находится за унитазом
14.02.2016
Ответить
Дарья
Спасибо, Елена! так красиво и функционально....
Жаль только из-за ипотеки мы не можем сделать перепланировку.... =(((
Не подскажете, если бы перепланировка была невозможной, то как бы вы в имеющийся несовершенный план вписали диван, раковину и стиральную машинку? (ПС - дверь тоже переносить нельзя, от двери в зале до стены около 1,4м)
15.02.2016
Ответить
Елена Тарасова (дизайн, 3D)
Почему не сможете? Все идеи законны, уведомляете мжи как хотите повернуть стены и передаете их разрешение с новыми обмена и бти в банк.
15.02.2016
Ответить
Дарья
у меня в ипотечном договоре прописано, что то ли я должна заранее спросить у банка разрешение, то ли вообще не имею права делать с квартирой ничего "изменяющее ее технические характеристики"... что-то такое неприятное было =( А если сейчас это выяснять и ждать ответа от банка - еще месяц пройдет! =(( а мы ремонт уже хотим начинать...
В общем боюсь я любой перепланировки =) Да и стены ломать/возводить - еще доп расходы... =(
15.02.2016
Ответить
Елена Тарасова (дизайн, 3D)
Все в ваших руках:) Чем вам помешает сделать банк сделать гкл стену?
Я свое виденье предложила, решение за вами.
16.02.2016
Ответить
Настёна
Добрый день,Елена!С праздником вас! Помогите нам с идеей, мы живем с мужем и двумя дочками близняшками в большой комнате дом П44т. Надо готовиться к школе и как то размещаться. У дочек выдвижная кровать рядом с эркером, наша кровать в углу.Нужно пристроить два рабочих места и обязательно шкаф, комод, телевизор.Извините за ошибки, очень не удобно писать с телефона
14.02.2016
Ответить
Настёна
Нарисовала нашу комнату, у нас окно и эркер. У детей выдвижная кровать рядом с эркером. Наша кровать в углу.
14.02.2016
Ответить
Елена Тарасова (дизайн, 3D)
Нашла обмеры типовые этой серии, там +- см.
Предлагаю такой вариант:
Перегородки можно сделать из ГКЛ с шумкой.
14.02.2016
Ответить
Настёна
Кровать у дочек выдвижная, стоит у эркера, а наша в углу. Нужно два рабочих места и обязательно шкаф, комод, телевизор...
14.02.2016
Ответить
Елена Тарасова (дизайн, 3D)
А размер стены справа от двери и стороны эркеров. Напишите как можно подробнее обмеры. Мебель уже есть? если да то и ее размеры.
14.02.2016
Ответить
Stamina
Здравствуйте! И мне помогите пожалуйста! Нужно место ребенку, спальное место мне с мужем и место для спорта 3х1,9м.
Огромное спасибо!
13.02.2016
Ответить
Елена Тарасова (дизайн, 3D)
Елена, при моей расстановке выделила место для спорта, но размеров точных нет и это просто концепт план.
14.02.2016
Ответить
Алена
Здравствуйте Елена! Если вас не затруднит посмотрите пожалуйста и нашу планировку,что можно придумать? Хотим из двушки получить трешку,возможно ли это? Стены все несущие. Спасибо большое за внимание!
13.02.2016
Ответить
Елена Тарасова (дизайн, 3D)
К сожалению на мой взгляд не получится, если бы можно было двигать стены - то возможно - с переносом кухни в коридор.
14.02.2016
Ответить
Ligra
Елена, добрый вечер,может посоветуете как сделать перепланировку, чтобы получилась кухня-гостиная, спальня и детская для двух детей, понимаю, что кухня маловата, но вдруг что-то можно придумать. Спасибо!
13.02.2016
Ответить
Елена Тарасова (дизайн, 3D)
Можно сделать интересную планировку, но мне нужны обмеры по стенам, чтобы не пролететь с размерами проходов.
13.02.2016
Ответить
Ligra
буду очень благодарна, забыла указать несущая колонна в центре размером 1000х200
14.02.2016
Ответить
Елена Тарасова (дизайн, 3D)
Мое виденье с реализацией ваших пожеланий. В зоне ТВ и гостиной правильно организовываем освещение и будет уютно. Справа от двери делаем перегородку для зонирования зоны отдыха, но лучше не глухую.
14.02.2016
Ответить
Ligra
Спасибо большое, мне очень нравится визуально расположение мебели в кухне и зоне гостиной, а то я реальных размеров не представляла, подумаю ещё по поводу расположения спальни, может поменять местами и спальню поменьше, а детскую с двумя окнами. Успехов вам в работе, побольше хороших проектов!
14.02.2016
Ответить
Елена Тарасова (дизайн, 3D)
Я детскую и сделала с 2 окнами:) В противном случае кровать займет все место в комнате.
15.02.2016
Ответить
Ligra
Я имела ввиду в той комнате которая большая на плане))), все-таки хочется чтобы у детей было побольше места., чтобы играть. Вот если вход сделать примерно где сейчас вход в детскую, а в спальню тогда налево (спальня будет тогда совсем маленькой да). Ваш план мне очень нравится, спасибо за советы, это я так размышляю на тему:)
15.02.2016
Ответить
Елена Тарасова (дизайн, 3D)
А поняла:) Но ведь сценарий у всех практически один - гостиная где дети играют а взрослые общаются:) и 2 спальни. Как идея для размышления:)
15.02.2016
Ответить
IDEALISTKA
Можно и нам помочь?купили квартиру в новостройке,смущает что вход в спальню прямо напротив входной двери и как сделать кухню-гостиную на 16 метрах?реально? Никак картинка в целое не складывается....нужна детская для мальчика школьника,спальня,с перспективой второго ребенка,и кухня-гостиная,но на кухне хотим плитку на пол,наверное неуютно будет когда гостиная соединена с кухней?
13.02.2016
Ответить
Елена Тарасова (дизайн, 3D)
Ольга реально перенести дверь сделав комнаты одинакового размера. На 16 кв. м. можно организовать и гостиную зону и зону кухни это более чем достаточно - если вы не "Джейми Оливер" :)
13.02.2016
Ответить
Ирина Глебова
ДД. Имеем вот такую планировку от застройщика. Очень хочется сделать трешку. Заранее спасибо и с наступающим праздником!
ДД. Имеем вот такую планировку от застройщика. Очень хочется сделать трешку. Заранее спасибо и с наступающим праздником!
13.02.2016
Ответить
Елена Тарасова (дизайн, 3D)
Ирина, да возможно сделать на месте кухни комнату а в холле разместить зону кухни. Размеров точных нет так что стены не смогу подвигать:( Еще зависит от ваших потребностей - это три изолированные комнаты (под спальни? или одна комната + большая гостиная).
13.02.2016
Ответить
Елена Тарасова (дизайн, 3D)
Да нет почему мечты? Оптимизировать холл и за счет его площади и чуть "откусив" от 21м комнаты в которой разместить спальню. Ирина нужны размеры стен чтобы реализовать чертеж.
13.02.2016
Ответить
Анастасия
Дв, имеется вот такая квартира, смущает маленький сан.узел (визуально не могу в нем что-то расставить), подскажите имеет ли смысл его увеличение? И в общем по квартире, может на Ваш взгляд, есть смысл перепланировки...
Дв, имеется вот такая квартира, смущает маленький сан.узел (визуально не могу в нем что-то расставить), подскажите имеет ли смысл его увеличение? И в общем по квартире, может на Ваш взгляд, есть смысл перепланировки...
13.02.2016
Ответить
Елена Тарасова (дизайн, 3D)
Анастасия я всегда и всем советую делать 2 спальни, у меня есть проект в дневнике из однушки в двушку очень похож на вашу квартиру. В вашем случае планировка удачнее т.к. входная дверь хорошо расположена. На кухне вы размещаете свою спальню (если дом не с газом). Гостиную делим пополам и отделяем детскую комнату. В зоне коридора размещаем небольшую кухню напротив нее обеденную зону и диван. Если были бы точные обмеры набросала бы планчик.
13.02.2016
Ответить
Анастасия
Елена, точные обмены есть Комната 5.02×3.8 Кухня 3.38×3.28 Сан узел 1.92×2.05
13.02.2016
Ответить
Елена Тарасова (дизайн, 3D)
Анастасия мне хотя бы то что например девушка первая давала "Простокот" посмотрите и можно от руки нарисовать на бумажке эти размеры стен. Сколько простенки в коридоре у вас?
13.02.2016
Ответить
Astrahentium
Добрый день , задумали перепланировку . писала здесь. В принципе понравился вариант Жанны , Чтобы Вы посоветовали ? тут
13.02.2016
Ответить
Елена Тарасова (дизайн, 3D)
Алена, Жанна вам предложила хороший вариант, при ваших потребностях он оптимален.
13.02.2016
Ответить
Astrahentium
Спасибо ))) а то некоторые в личку раскритиковали )) а мне понравилось )))прос мало ли какие нюансы.
13.02.2016
Ответить
Елена Тарасова (дизайн, 3D)
Ну там одно неудобство 2 двери на таком маленьком пространстве, но это мелочи по сравнению с наличием гардеробной:) Всегда приходится выбирать и чем то жертвовать.
13.02.2016
Ответить
Astrahentium
Вы правы )))муж никак не смирится с гардеробной .. А я ему говорю что не нужны и эти большие корридоры )))
13.02.2016
Ответить
Astrahentium
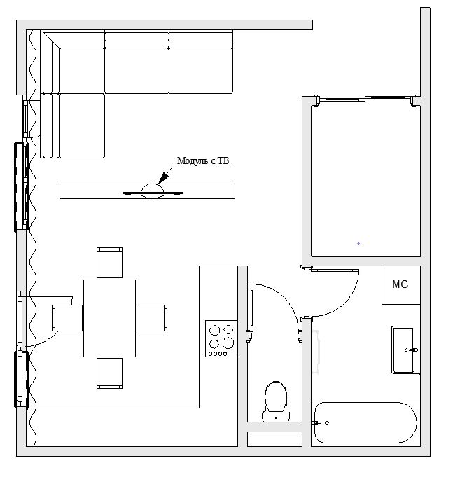
Эт точно ))Елена, а вот в гостинной есть варианты расстановки ? Изначально в угол планировали диван.
13.02.2016
Ответить
Елена Тарасова (дизайн, 3D)
Алена, если блокировать одну дверь с лоджии то возможен такой вариант. Модуль можно сделать с поворотной консолью и смотреть ТВ и за столом и на диване.
14.02.2016
Ответить
Оставшиеся комментарии доступны после регистрации
Зарегистрируйтесь и получите полный доступ ко всем функциям сайта.

Как-то так😅