Девушки, опять за помощью к вам...
Интерьерное решение детской комнатыВыкладывала недавно дизайн гостиной совмещенной с детской. В итоге многие раскритиковали, да и сами передумали, решили все таки отдать всю комнату детям.У нас двое разнополых детей сыну 6 лет и дочке 3.5 года.
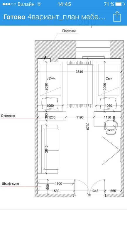
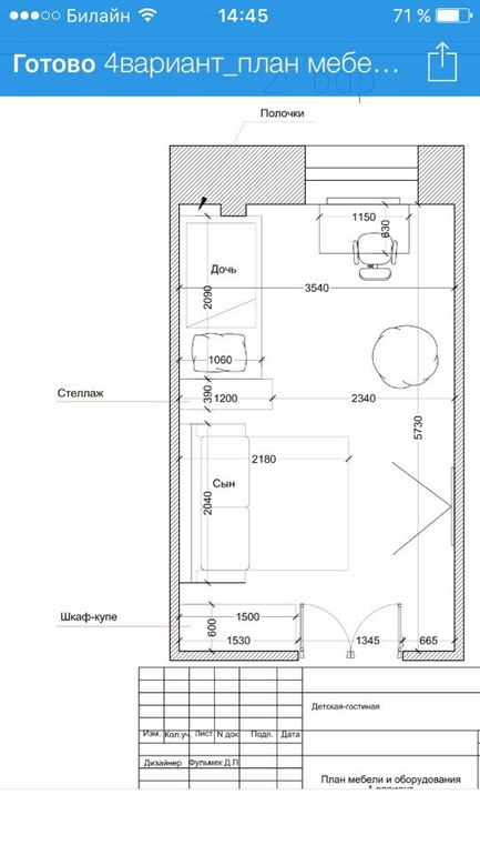
Комната 21 кв., прямоугольная, длина комнаты 5.73 м, ширина 3.54 м.
Не мешало бы отделить детей друг от друга. Хочется что бы она была правильной, но я не могу найти идеальный вариант...


Lalaloopsy
Диван для просмотра тв и экстренных случаев такой длинный не нужен. Можно взять аккордеон и 160 и даже 145! Это значительно облегчит комнату! Мы сделали по третьему варианту. Но за счёт маленького дивана ещё и шкаф у Стены И кровати пока возьмём 1600 бюджетные. А к позже уже будем 1800 смотреть и более.
22.02.2016
Ответить
Lola
Последний вариант мне более нравится. Во-первых ,диван для детского растущего организма ничто в сравнение с кроваткой и хорошим матрасом на ней. Как говорится, береги здоровье смолоду.Так что я за 2 кровати. Плюс рабочее место должно быть у обоих детишек . У старшего школа начнется, а младший тоже и рисовать захочет, и полепить, и мало ли там чего еще,а так смогут одновременно заниматься.Плюс рабочее место у окна -это экономия электроэнергии за счет естественного освещения от окна.Кроват лучше предусмотреть с ящичками (ящичком)-дополнительное место хранения (хранить у детишек всегда ооооой сколько нужно:)
А третье спальное место в виде диванчика сослужит вам добрую службу ,если вдруг малыш заболеет (дай Бог им здоровья крепкого ,но все детки болеют), и вы сможете на ночь остаться у них , чтоб ребенок был под вашим неусыпным наблюдением . Да даже полежать там на ночь им книжки почитать . А днем на нем ребенку можно сидя одеваться или раздеваться,или играть ,или мультики смотреть или познавательные передачи.Ну или на крайний случай приехавшего родственника на ночь определить.
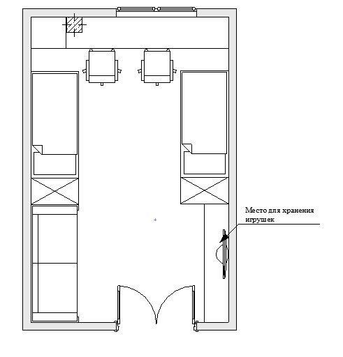
Надеюсь в изголовье кроватей не тумбы , а закрытые шкафчики для одежды , тк тумбы для хранения одежды слишком малы , а шкафы вместительнее и заодно будут зонировать детскую на зону для сна и занятий , и зону для просмотра тв.
18.02.2016
Ответить
Елена
ссылаясь на возраст, я бы себе выбрала первый вариант расстановки. А когда бы дети значительно подросли , то старалась бы кровати вагоном ставить, чтобы не видеть друг друга.
18.02.2016
Ответить
Евгения
А вам точно нужен диван? У нас комната тоже 20 метров и двое мальчишек. Муж тоже хотел дополнительное спальное место для гостей. Решили взять кушетки хэмнес или бримэнс у икеи, которые в двухспальные кровати превращаются
18.02.2016
Ответить
Анна (преподаю английский и китайский)
Мы пока не решили для себя тоже вопрос: отдельно диван и две кровати, или диван и кровать. Или два дивана) а может, диван, раскладное кресло(для бабушки на всякий случай) и кушетка...? три спальных места по 2 метра в одной комнате, конечно, не очень. Но решать будем года через 4-5, когда из кроватей 160см средняя вырастет. Пока каждая борется за Свою кроватку, то есть, общий диван для посиделок нужен. Может, два выкатных диванчика (если готовы каждый день стелить) и один большой длинный?..
18.02.2016
Ответить