Помогите!!!!!!!!!!! Дизайн комнаты девочки подростка
Авторские проекты дизайнеров.(Посты не по теме будут удаляться!)Всем привет.Сломала всю голову,построили дом и никак не можем определиться с комнатой дочки.Комната большая с балконной дверью.Хочет и кровать и диван,я хочу много систем хранения,вообщем может кто подскажет.Готова оплатить услуги,если не очень дорого будет.Дизайнеры-нужна ваша помощь!!!!!!!!!!.Спасибо всем.

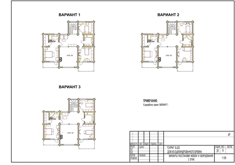
Елена Ткаченко (Дизайнер-Декоратор)
Здравствуйте. Могу помочь в расстановке мебели. Вот пример вариантов расстановки мебели. На плане спальня с гардеробной и 2 детские комнаты справа вверху и внизу.
29.03.2016
Ответить
Дизайнер 3D
Здравствуйте.
Составлю Дизайн проект Вашего помещения.
Цена отправлена в личку.
29.03.2016
Ответить
selena1002
Елена, добрый день!
Комната дочки внизу чертежа, верно? В ней еще дверь не "прорубили"?))
Можете прислать чертеж с более подробными размерами? Моя почта astella11@yandex.ru.
29.03.2016
Ответить
selena1002
Елена, добрый день!
Вы получили мой чертеж? Наверное, Вам моя помощь уже не нужна))
30.03.2016
Ответить
AnnaMaria
Мы с мужем тоже делали ромонт в комнате дочки. Мы заказали фотообои на сайте. Нас проконсультировал дизайнер, помог подобрать подходящее интересное изображение для комнаты наших размеров. Очень красиво получилось.
29.03.2016
Ответить
Анатолий Николаевич
Елена,не стоит клеить фотообои,их тема будет так или иначе влиять на события в жизни вашей дочери.В спальне лучше всего кровать и чтобы мебели по минимуму,постабильнее энергетика будет по кровати и если девочка увлечется чем-то наподобие феншуй,то есть куда размещать Карту сокровищ.Можете почитать кое-что в моем дневнике.
29.03.2016
Ответить