Дизайн проект: "Сдержанные чувства"
Авторские проекты дизайнеров.(Посты не по теме будут удаляться!)Всем привет. Это вновь я, как обычно - не с пустыми руками, а с новым проектом.
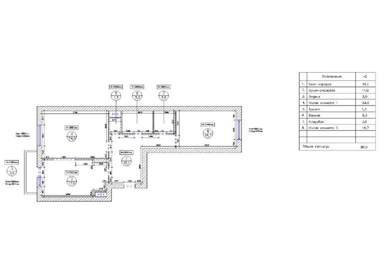
2-х комнатная квартира, 86м2 в городе Реутов. Новостройка.
Квартира для молодой семейной пары, которые в последствии планируют обзавестись ребенком, но пока поживут для себя несколько лет. 
Вообще, общение с этой парой оставило во мне двоякие чувства. С одной стороны, они совсем молодые, им бы тусоваться, зажигать, а они хотят совсем спокойный коридор и практически "бабушкину" (ну ладно, мамину) кухню;). При этом, гостиная у нас получается более современная, динамичная. Похоже на помещение для активных карьеристов. А вот спальня открывает нам глаза. Яркая, неординарная, почти подростковая комната по сути....Отсюда и название проекта...
В квартире запланировано объединить кухню (17м2) с гостиной (24м2). Между ними будет стоять дверь-пенал, которая чаще всего будет находится в открытом положении. Кухня, в свою очередь, поделена на рабочую и столовую зону.
Члены семьи много времени работают за компьютером, поэтому в гостиной у нас один большой рабочий стол на двоих, а в спальне рабочий стол, совмещенный с туалетным столиком.
Также, имеется просторная гардеробная. А на балконе будут хранится велосипеды.
Обмерочный план:

План расстановки мебели:

Коридор (15,1м2)

Кухня-столовая (17м2)


Гостиная (24м2)
Спальня (16,7м2)

Ванна (5,3м2)

Туалет (1,3м2)

Гардеробная (3,6м2)

Буду рада комментариям, а также письмам в личку, на почту и звонкам.
Цена на полный дизайн-проект:
- до 60м2 - 1900руб./м2
- от 60 до 110м2 - 1700руб./м2
от 110м2 - 1500руб./м2
Моя почта: Naamah1987@yandex.ru
Мой телефон: 8-905-767-13-32
