Получили ключики. Помогите с планировкой
Вопросы и ответыДевчата, выручайте, накопилось много-много вопросов. Мы совсем только недавно получили ключики от нашей новой квартирки, померяли ее и… О ужас, какой маленький туалет, как много углов и выступов. У меня куча вопросов и куча желаний подогнать эту квартиру идеально под нас. Нас это мы с мужем и дочка 3,5 года. Что мы имеем: 2-х комнатная квартира 63 метра (57,23 без балконов) с отделкой «под ремонт». Есть цементно-песочная стяжка, выведены эл. провода без разводки , несущих перегородок в квартире нет, внутренние стены из гипсовых блоков, стены с соседями отштукатурены и отшпатлеваны. Бюджет очень ограничен. Сроки уже поджимают. Готовы переехать в «голые стены» лишь бы жить можно было. Вот пару фоток того, что есть на данный момент.


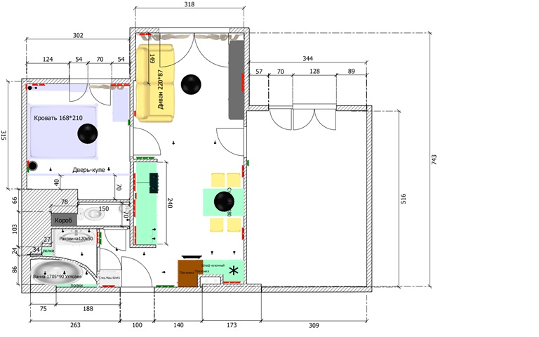
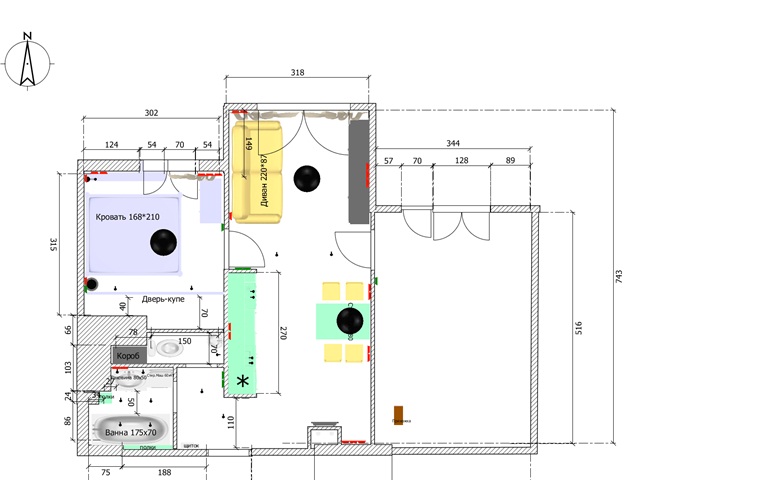
Одну из 2 комнат-дальнюю пока не планируем делать вообще, там позже сделаем детскую, кухню хочу перенести в зал на свой страх и риск. Покрутила в программе, получается мойка будет в коридоре, но все остальное в зале.

При этом раскладе не устраивает проход в зал, получается узковат, а туда ведь столько мебели заносить придется. Если постараться все убрать с коридора, то холодильник все-таки смещает раковину дальше в зал. Тоже не очень. Да и прихожки полноценной нет,а хочется.
или 
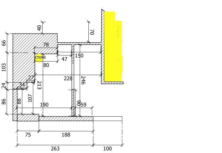
По плану санузел идет совместный, но нам очень принципиально его разделить. Вообще не понимаю как можно жить при совместном санузле. В туалет хочу маленькую раковину. В ванной куча углов от вытяжки. Что с ними делать ума не приложу, как дотянуться до смесителя, Как поставить раковину. Умываемся чуть ли не все вместе, по утрам в ванной ажиотаж. Хотелось бы еще и стиралку сюда же устроить. Вопрос. Как все это уместить и самим уместиться? А еще вопрос, как добраться до счетчиков? Помогите! Я уже всю голову сломала.

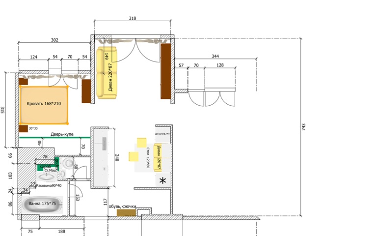
Начинали с того, что вметно дивана у окна была отгороженна наша спальня а кухня оставалась на кухне. Как то так


Потом все-таки решили, что большую часть времени мы все-таки будем проводить в зале, кто-то на диване, кто-то рядом на полу с игрушками ну или на кухне. И намеренно оставлять эти зоны без света не хочется. На кухне я бы хотела видеть более комфортную зону приема пищи, нежели приготовления. Не особо я люблю это занятие, а вот посидеть на удобном стульчике или диванчике это да. Не хочу видеть микроволновку и чайник на столешнице, такие они маленькие, а активное пространство съедают. Жалко. А вот куда бы их пристроить, тоже не знаю