150 кв. м. пожеланий заказчика
Авторские проекты дизайнеров.(Посты не по теме будут удаляться!)Всем привет.
https://bazar.babyblog.ru/item/341937
Предлагаю на обозрение и обсуждение проект достаточно большой квартиры. Выполнялся пару лет назад. К сожалению, есть только проект - без реализации, т.к. не сошлись с заказчиком в цене выполнения реализации.
На примере этого проекта хочу показать, что неудачная планировка может быть проблемой не только маленьких, но и больших квартир. Не скажу, что очень довольна окончательным видом, но жить там клиентам - они были довольны.
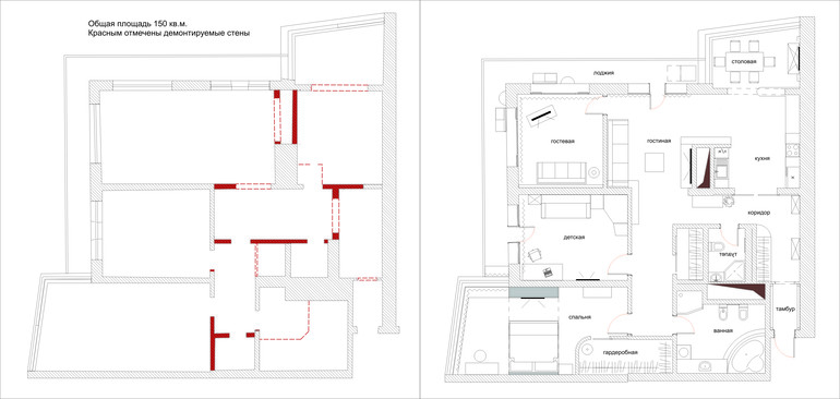
Дано: вторичка, общей площадью 150 кв.м. Заказчики - супружеская пара с маленькой дочкой. Пожелания: самое главное - большая гардеробная и ванная комната для хозяйки, стилевое направление - классика. Оказались любителями всего золотого и блестящего. Цветовая гамма - бежево-коричневая. Но, несмотря на такое обычное цветовое сочетание квартира интересна различными деталями.
Итак
1. Планировка. Полностью изменена зона кухни-столовой-гостиной, коридор и переосмыслена спальня.

2. Прихожая и коридор.
Исходя из планировки - коридор получился достаточно длинным. Чтобы он не выглядел однообразным - в каждой части есть свои акценты:
- на входе это световые панели в стенах, которые дальше продолжаются на потолке, тем самым соединяя тамбур с остальной частью
- в прихожей - полки со вставками деревянных 3д панелей.
- далее 3д панели комбинируются с зеркалом
- в конце коридора 3д панелями выделена картина (эта существующая картина, которая очень нравилась клиентам и без нее - никак)
Из интересных элементов отмечу паркет с золотой вставкой (да, такой существует) и золотые двери-купе. Да, золота в этой квартире будет много!

3. Засчет присоединения балкона. где разместилась обеденная зона - кухня стала просторной и удобной. На стенах - декоративная штукатурка + настенная плитка, которая дополняет напольную плитку. Из подоконной части получилась барная стойка

4. Гостиная. В целом, достаточно минималистичная. Минимум мебели, просто посидеть посмотреть ТВ. Центральным элементом стала люстра, точнее конструкция потолка для люстры: световой короб по периметру сочетается с коридором, а штукатурка во внутренней части взята из кухонной зоны. Тем самым, гостиная служит элементом, объединяющим эти две зоны.

5. Гостевой санузел. Ну что тут скажешь: золото + хрусталь = красиво и богато))

6. Ванная комната. Здесь воплотились все пожелания заказчицы: золото, блестит, много разноуровневого света.

7. Спальня. В спальне тоже достаточно много активных элементов. Это и обои с фактурным рисунком и гипсокартонные конструкции, и сложный потолок. Но, несмотря на такое обилие акцентов, в целом спальня выглядит уютно и располагает к отдыху.

8. И самое любимое помещение в этой квартире - лоджия. Изначальные варианты были совсем другие, как вы догадались - под стать остальной квартире. Но, вернувшись из отпуска - заказчикам захотелось сделать зону отдыха, с напоминанием о теплых странах. Так родилась эта лоджия. Ширина ее всего 1,2м. Напольная плитка с имитацией гальки - напоминает морской берег, а штукатурка на потолке - голубое летнее небо. На такой лоджии приятно проводить время и в пасмурные московские дни

