Дизайн-проект 130 кв. м
Авторские проекты дизайнеров.(Посты не по теме будут удаляться!)Добрый день, друзья!
Хочу поделиться своей работой.


Современный стиль с элементами минимализма и хай-тек был для меня интересным опытом, который я проработала в дипломной работе. Светлые цвета (белый, бежевый), глянцевые поверхности, зеркала, минимум декора, натуральные материалы, интересная и сложная система освещения, монтаж конструкций, подключение к системе "Умный дом" (понимание этой системы принципе), установка биокамина... Задачи, которые я себе ставила это хорошая визуализация, знакомство со стилем (т.к. это молодежно, свежо, удобно), ну и конечно, полный пакет чертежей для проекта.
Собственно с чего я начинаю - это техническое задание, в котором прописываются основные требования к проекту, к стилю, цвету и т.д.

Затем коллаж или визуализация 3d.







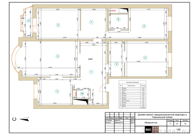
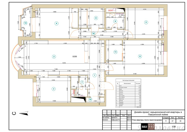
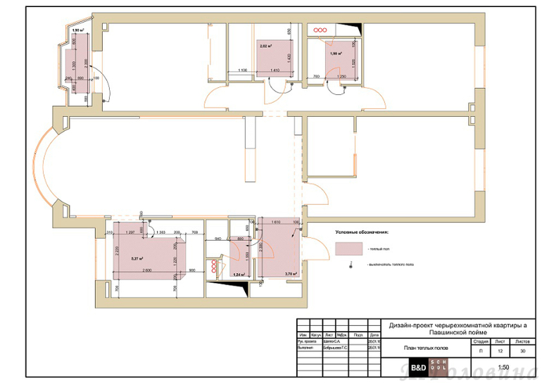
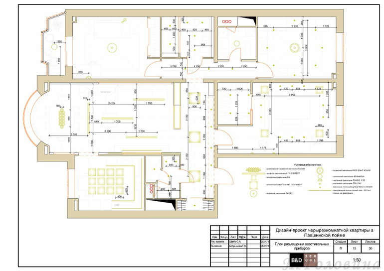
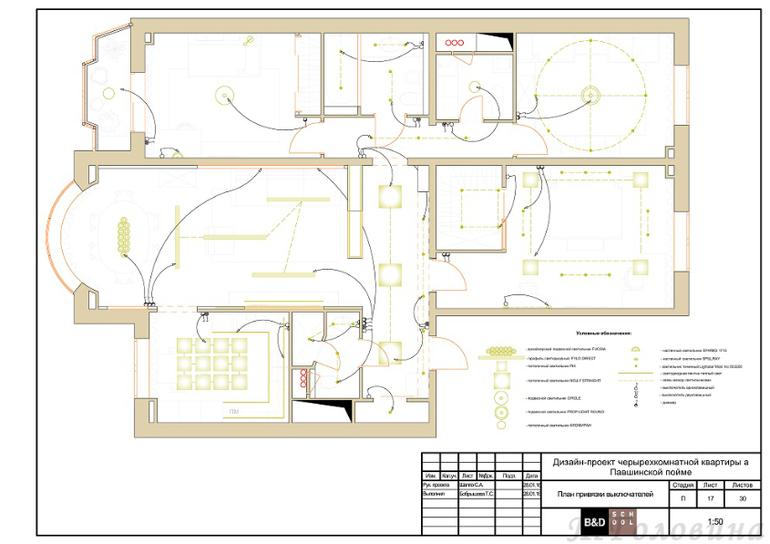
Ну и сами чертежи :-)










На проект у меня ушло 2 месяца. По-мимо знаний, которые получила в институте, дополнительно для проекта прошла тренинг по системе "Умный дом" в компании Legrand. Работа дизайнера это большой, трудоемкий, но очень интересный творческий процесс, постоянно требующий новых знаний :-)... Мне нравится моя работа!
Очень рада новым знакомствам, друзьям и заказам :-). По возможности буду выкладывать интересные работы.
Всем спасибо и хорошего настроения! :-)
https://bazar.babyblog.ru/item/353551
https://bazar.babyblog.ru/item/353583