Планировка очень нужна помощь
Перепланировки стен. Согласование перепланировки квартир и нежилых помещений. Девочки читаю вас так давно, вы такие умницы и такие сообразительные. Очень нужна помощь, мы с мужем уже просто сломали головы
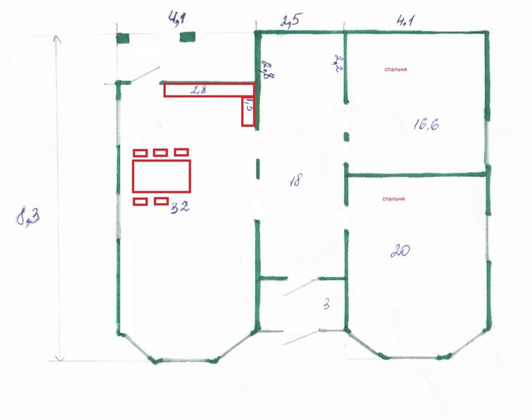
. Есть дом, на первом этаже хотим кухню-гостиную, 2 спальни, в коридоре обязательно должны быть 2 лестницы (в подвал и на 2 этаж). Лестниц пока нет, но для них место в конце коридора, передвинуть не можем, перекрытия - плиты. Для нас глобальный вопрос где организовать душ/туалет, т.е. нужно закуток отгородить...) Не понимаю можно ли в таком пространстве где лестница, с учетом, что их 2, что-то сделать?? Или гостиную надо обрезать?? В общем уже запутались
. Посмотрите пожалуйста наши мысли. 

Виктория (дизайнер)
Вы бы план показали, где лестницы указаны - понятнее было бы. Может, где то рядом с лестницей есть возможность разместить
21.04.2016
Ответить
Виктория (дизайнер)
А как сама лестница пойдет? Мне представляется только такой вариант, но как тогда в спальню попасть?
21.04.2016
Ответить
Вишня в шоколаде
я думала вниз будет меньше места занимать, но в программах пока не могу разобраться по проектированию лестниц
22.04.2016
Ответить
Виктория (дизайнер)
Если дадите высоту этажей, смогу помочь - лестницу построить
22.04.2016
Ответить
Вишня в шоколаде
Если Ваше предложение еще в силе, дождалась мужа, чтобы померить) 3,20 потолок, проем в верхней плите 2,5*3, в нижней 2,5*3,7
02.05.2016
Ответить
Любимка
А отверстия для лестниц где? Если бы я отгораживала ванную, то оставила бы там окно. Или использовала под ванную закуток2,5 на2 в конце коридора.
21.04.2016
Ответить
Дизайнер 3D
Здравствуйте.
Помогу с чертежами и 3 D визуализацией вашего помещения.
Заходите в дневник выбирайте, что вам нужно и пишите в Л.С.
21.04.2016
Ответить
Вишня в шоколаде
Да, хотелось бы из дома. Там будет прачечная, кладовка и прочие нужности
21.04.2016
Ответить
Как вам такое решение?