Проект кухни, гостиной и коридора в 2х комнатной квартире
Авторские проекты дизайнеров.(Посты не по теме будут удаляться!)Всем доброго времени суток! Сегодня поделюсь с вами не утвержденным вариантом проекта. Он понравился заказчикам)) но не был выбран для жизни с ним)
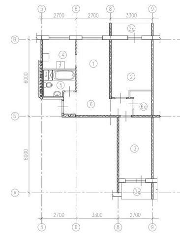
План перепланировки:

План перепланировки был отправлен заказчиком. Мы его немного откорректировали) Разработала сначала кухню, которая с первого раза была утверждена. Площадь кухни 6 кв.м. Это была моя первая кухня такой площади))
Далее, опираясь на письма и пожелания заказчика, получился интересный и эклектичный проект гостиной и коридора.








https://bazar.babyblog.ru/item/371319
Всем спасибо за внимание!
Анастасия
Замечательный проект у вас получился! И снова мой любимый бирюзовый цвет) Жанна, скажите, пожалуйста, а как-то используется пространство под духовым шкафом? Там просто полки или карусель? И раскладка плитки меня покорила - и на стене, и на полу!
16.07.2016
Ответить
ZhannaT
Спасибо)) Да, Анастасия, под духовкой будет карусель. Кухня всего 6 квадратов, но использовали каждый сантиметр)
16.07.2016
Ответить
Poison777
Прям просится более мягкий обьемный диван, эдакое ложе. А так - восторг-восторг, особено выбор плитки и шкаф
19.05.2016
Ответить
ZhannaT
Спасибо)) Диван уже есть. Он будет привезен из старой квартиры) А так я с вами согласна!
19.05.2016
Ответить
Iva
Вот меня всегда смущал кран на месте подоконника. Окно вечно будет забрызгано, если его после каждого мытья посуды не протирать насухо. Нет???
А так кухонька мне очень понравилась. Да ещё и на 6метрах разместить столько шкафов и полочек -мастер!
19.05.2016
Ответить
ZhannaT
На самом деле от края мойки до стены с окном 20см + сам подоконник примерно 15см. Может брызги и будут, но не в критичном количестве)) Спасибо !!!
19.05.2016
Ответить
businka
На самом деле нет такого, что протирать каждый день. Немного брызги попадают. Но совсем не критично.
19.05.2016
Ответить