Девчонки!Одна надежда на вас! Помогите с расстановкой сантехники...
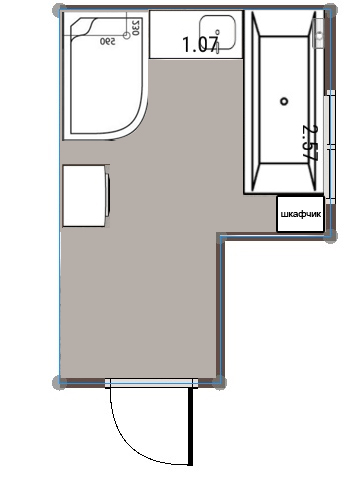
Интерьерное решение ванной комнатыИмеется ванная такой планировки.Ничего умнее я не придумала,но не знаю удобно ли будет.Может еще у кого-нить так или .Покидайте идеями 

Анна
Девочки, спасибо всем , кто откликнулся .
А то я с двумя малышами и ..."любимой работой" ничего
не успеваю ... да и мыслю стереотипно. У меня боязнь,
что если поставлю ванну в нишу с окном, то ванная будет как длинный коридор...но буду пробовать
А то я с двумя малышами и ..."любимой работой" ничего
не успеваю ... да и мыслю стереотипно. У меня боязнь,
что если поставлю ванну в нишу с окном, то ванная будет как длинный коридор...но буду пробовать
26.05.2016
Ответить
selena1002
Анна, добрый день!
Согласна, ванну лучше всего в нишу - это просто мечта! Такого можно напридумывать. А унитаз, если есть средства, можно брать угловой, и не очень похожий на унитаз))
Он бывает в разных ипостасях - с бачком, приставной, подвесной.
Он бывает в разных ипостасях - с бачком, приставной, подвесной.
26.05.2016
Ответить
Инна Дизайнер Частного дома
Сколько у вас от двери до угла? мне кажется, что это пространство не стоит выбрасывать. На самом деле площадь то хорошая, можно разные интересные варианты придумать.
Как-то делала расстановку для похожей ванны, сразу от двери ставили две раковины на общей столешнице, возможно это как раз ваш вариант.
А в глубине можно сделать красиво большую ванну или джакузи, можно и мини сауну, душевую.... В общем тут есть где разгуляться фантазии.
Для вдохновения кину
А в глубине можно сделать красиво большую ванну или джакузи, можно и мини сауну, душевую.... В общем тут есть где разгуляться фантазии.
Для вдохновения кину
26.05.2016
Ответить
Анна
см 30 есть,наверное.Тоже пришла идея , что можно 2 раковины...из них одну-детскую.Спасибо за прекрасные фото...очень помогли, я как-то по-другому начинаю смотреть на нишу
26.05.2016
Ответить
Инна Дизайнер Частного дома
Можно повесить пеналы или столешницу с криволинейным краем, углы срезать и на ней раковину. Ванну можно и отдельностоящую рассмотреть. Про "длинный коридор" - делайте так, чтобы при входе визуально выхватывать красивый вид, т.е можно как раз раковину с большим зеркалом сделать напротив входа, а стиралку не рассматривать как отдельный элемент, а ставить ее под столешницу, например. Так же можно попробовать использовать перегородки не на всю высоту, а см на 90-120, например, чтобы скрыть унитаз....
а еще Вы поизучайте ассортимент ванн, сейчас есть очень много вариантов, когда она не угловая, но большая, даже для двух.
а еще Вы поизучайте ассортимент ванн, сейчас есть очень много вариантов, когда она не угловая, но большая, даже для двух.
27.05.2016
Ответить
Svetlana
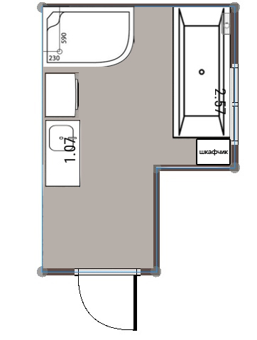
А может лучше так?
А если есть денежек и побольше, то я бы еще помимо ванной душевую кабину поставила, очень удобно, когда и то и то есть.
А если есть денежек и побольше, то я бы еще помимо ванной душевую кабину поставила, очень удобно, когда и то и то есть.
26.05.2016
Ответить
Виктория (дизайнер)
я бы в такую ванну еще и унитаз небольшой поставила.
для вдохновения вам - из одного из проектов.
26.05.2016
Ответить
Svetlana
согласна, унитаз не помешал бы, хотя несколько портит вид, но практично.
26.05.2016
Ответить
Виктория (дизайнер)
можно же его спрятать. Вот такие 2 варианта в голову пришли. Во втором нет душ.кабины, зато встает большой шкаф для хранения разных бытовых принадлежностей: химия, швабры, порошки и т.п. Можно и небольшую гладильную доску туда встроить.
26.05.2016
Ответить
Анна
Спасибо!!!Второй вариант у меня постоянно крутится в голове, дело в ом, что угловая ванна-мечта мужа, и он говорит, что умывальник должен стоять в нише, мол удобно , когда свет слева...но меня все время смущает , при таком раскладе расстояние между ванной и раковиной
26.05.2016
Ответить
Виктория (дизайнер)
А вы мелом на полу очертания нарисуйте и поймете, удобно вам будет или нет. Вместо раковины можно стул поставить, например
26.05.2016
Ответить
Тата
плохо
поставьте ванну в нишу, у вас уникальная возможность купить длинную и широкую
стиралку слева от двери, скорее всего должна поместиться
напротив двери мойдодыр
25.05.2016
Ответить