Посмотрите кухню, пожалуйста. Есть вопрос.
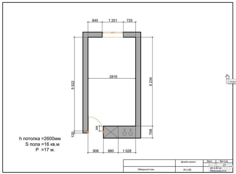
Интерьерное решение кухниЕсть такая кухня. Хотим разделить её на две зоны и сделать кухню-гостиную.
Вот проект, как придумали.
Вопрос вот в чем. не очень мало оставили для прохода 750 мм? Или терпимо?
Если учесть, что справа сверху не будет высоких шкафов.
Фото под катом.






Сануля
Добрый день. так и спланировали. Сейчас ремонт. перегородки уже поставили.
31.10.2016
Ответить
Кряшечка (Дизайнер по кухням)
Мое виденье вашей кухни-гостиной.
Я бы так не разграничивала пространство, комната длинная узкая, если разделить на две части, получится две каморки. Ниже уже предлагали п-образную кухню с барной частью, только я предлагаю вам делать не полубарную высоту, а высоту стола (Н. 74 см.). Под столом продолжение нижних модулей, более узких по глубине, как доп. место для хранения, они переходят в гостиную часть и служат как основа для ТВ зоны. Хол-к, колонна под духовку и свч на противоположной стене, эти колонны обрамлены открытыми колоннами с полками с торца. Если у Вас не стационарный компьютер, то можно под ноут использовать небольшой столик, который будет служить и журнальным столиком и компьютерным при необходимости.
06.06.2016
Ответить
В ж и к
Прям моя кухня! И размеры почти совпадают, и короб. А где у вас слив? В личку сейчас покажу, что я себе придумала. Считаю проход маленький.
01.06.2016
Ответить
Сануля
Да, наверно буду убирать эту тумбу вообще.
И шкафы навесные пока не буду делать. Сориентируюсь уже когда установят кухню.
В личку тоже написала.
01.06.2016
Ответить
Ромашка-Машка
А вы не думали развернуть ящики дверцами ко входу, тогда проход чуть шире будет. Мы когда мебель в мистер дорс заказывали не рекомендовали такой проход узкий. А ещё лучше убрать оттуда шкафчик, микроволновку совместить с духовкой (купить духовку с функцией разогрева))))
31.05.2016
Ответить
Сануля
Ну да, наверно, так и придется сделать.
развернуть думали. Это икеевская программа, она не дает развернуть.
Духовку такую смотрели в икее. Она малюсенькая.
Надо другие фирмы посмотреть.
Спасибо!!!
31.05.2016
Ответить
Юлия
На мой взгляд какая то неудобная кухня получилась, шкафы стоят бесформенно, при входе плита с духовкой - мне так вообще не очень нравится, у кухни вид никакой.у вас такая большая площадь можно все выигрышей разместить....
31.05.2016
Ответить
Сануля
А почему бесформлено? Угловые навесные шкафы не сделаешь - у нас там в углу вода-канализация, счетчики. Приходится извращаться. А что вы можете предложить? Была бы благодарна за советы. Я поэтому и спрашиваю, потому что самой как-то не очень. Задача - максимальная зона гостиной, минимальная - кухня.
31.05.2016
Ответить
Юлия
Кухня красивая когда единым целым смотрится, я бы ее вытянула, сделала бы барную стойку с одной стороны и напротиа диван с овальным столом, либо буквой П в сторону окна....
31.05.2016
Ответить
Сануля
Согласна. Но мне нужно еще и функционально.
Вот зачем мне барная стойка, например?
Про букву П около окна я уже писала. Это сложно и дорого.
Я вот холодильник в одну линию не ставлю, думаю, может получится, т.к. съедается очень нужная для нас площадь гостиной.
все от бедности. я бы вообще купила большую квартиру, куда все умещается. :)
31.05.2016
Ответить
ZhannaT
Замер должен быть по прямой) И как вам ниже написали, да он примерно 50-60см. Это мало. Подумайте о П-образной кухне. Развернуть компьютерный стол к тумбе под ТВ. Нужно ли делить комнату на 2 маленьких помещения..не будет ли вам темно?)
31.05.2016
Ответить
Сануля
Стерла этот навесной шкаф, от которого все считают. Я не пойму, где там 50 см между тумбами. Объясните.
делить нужно, это необходимость.
тумбы под тв не будет. Там хочу каминчик поставить глубиной 20-30 см.
Мы сейчас живем с таким расположением мебели, он нам очень подходит. Очень удобно.Плюс нам необходимо полноценное спальное место, при этом изолированное. Не на каждый день. так что в планах еще или перегородка, или шторы, или японские. Еще не придумала.
31.05.2016
Ответить
ZhannaT
Поняла вас) А подскажите стол обеденный у вас справа от дивана стоит? Не пойму где у вас стулья...Вообще процесс принятия пищи как вы распланировали?)
31.05.2016
Ответить
Сануля
Стол у окна, слева.
Мы сейчас так живем, очень удобно.
Над гостиной зоной даже не думали, просто перенесли её на эту кухню. Может, зря, конечно.
Единственно, очень хочу каминчик, и телевизор над ним. (то, что на плане как тумба. :)
31.05.2016
Ответить
ZhannaT
Не знаю всех ваших требований) Вот вариант расстановки П-образной кухни. 2 полубарных стула. Диван длиной 1,8м
31.05.2016
Ответить
Сануля
Ой, Жанна, круто. Спасибо большое, что уделили время. :)
А не будет холодильник посередине как бельмо?
И стол нам все-таки нужен отдельный, т.к. у меня двое детей, да и гостей планируется на кухне принимать.
Справа, там где короб, в углу, у нас идут стояки с водой и канализацией. так что шкафы там до конца не повесишь.
Мужу покажу, подумаем.
Вот наша кухня. Мы уж вертели по-всякому. Мужу нужно побольше рабочей зоны. :) Он у меня готовит. :) В помещении расчертили мелом, вроде не кажется, что очень тесно.
31.05.2016
Ответить
ZhannaT
Да, вариант к вам не подходит)) А холодильник закрыт стеной и если еще добавить шторы, будет хорошо оформлено) Я подумаю еще над вашей кухней.
31.05.2016
Ответить
ZhannaT
Стол обеденный 60*120см. ПММ 45см шириной. Можно мойку сделать 40см шириной, тогда ПММ войдет 60см)
Стол обеденный 60*120см. ПММ 45см шириной. Можно мойку сделать 40см шириной, тогда ПММ войдет 60см)
31.05.2016
Ответить
Сануля
Мужу только рабочая зона так не нравится, мы пробовали. И вытяжка тогда встроенная в шкаф получается? Посудомойка 45 для нас мало.У нас сейчас такая. Хотели 60.
И шкафов совсем мало. Под мойкой не считается - если диспоузер и мусорка, то все занято.
31.05.2016
Ответить
Сануля
Мы вот на эту ориентировались. Только с другими фасадами.
По ширине, у нас кухня получается, как стоит левый стул. Я его специально поставила, чтобы посмотреть расстояние между холодильником и шкафами.
31.05.2016
Ответить
selena1002
Добрый день!
По нормативам полагается не меньше 80 см для человека, несущего что-то в руках, например поднос. Поэтому 75 мало. Почему размер дан по диагонали?
Исходя из масштаба на Вашем плане, проход получается около 56 см, а это совсем мало...
И потом, для СВЧ, встраиваемой в колонну, обычно, полагается ниша глубиной не меньше 55 см.
И потом, для СВЧ, встраиваемой в колонну, обычно, полагается ниша глубиной не меньше 55 см.
31.05.2016
Ответить
Сануля
Там справа нет навесных шкафов. Получается, только попа должна проходить. Двери ведь тоже есть 70 см?
Вы измеряете от навесного шкафа. А он даже выше мужненой головы получается, не говоря уже про меня.
Вот ниже стерла его.
Это икеевский планировщик. Там есть шкаф на 40 см глубиной.
31.05.2016
Ответить
selena1002
Да, Вам нужно воспользоваться планировкой Жанны.)) А планировщик здесь ни при чем, я имею ввиду технические условия встройки. А модули всякие бывают))
31.05.2016
Ответить
Сануля
Прямо вот "нужно"? :)
Икеа предлагает микроволновки, встраиваемые в 40 см шкаф.
а по поводу планировщика вообще ваша мысль не понятна, извините.
31.05.2016
Ответить
selena1002
Ну ладно, "хорошо бы", так пойдет?)) Про СВЧ Икея информации не имею, к сожалению. Знаю, что у СВЧ для верхних шкафов параметры для встройки позволяют не оставлять сзади них пустое пространство. А СВЧ для колонн должны иметь свободный "хвост", чтобы тепло отходило.
31.05.2016
Ответить
Сануля
Пойдет.:)
У нас на работе стоит такая новая кухня Икеа. Я и хочу поставить верхний шкаф на нижний, между столешница. Нижний тоже глубиной 40. Получится мини-колонна. Только вот стоит ли вообще её ставить, или что-то решать по-другому, пока не знаю. Наверно, вообще её уберу, оставлю только холодильник.
Спасибо за мнение. Я буду думать, конечно.
31.05.2016
Ответить
Виктория (дизайнер)
а что, если конфигурацию кухни поменять? Сделать ее П-образной. В стене между кухней и столовой оставить раздаточное окошко (чтобы посуду передовать).
Это как вариант, надо покрутить/повертеть. Может и не получится так
31.05.2016
Ответить
Sonk
тесновато. У вас 750 мм до шкафчика № 21, и это нормально. Но до ближайшего шкафчика №19 гораздо меньше, наверное см 60, и выглядит довольно тесно. Вообще, я что-то не вижу шкафа №19 на 3д визуализации, только на схеме...
В порядке идеи, развернуть шкаф с микроволновкой спиной к холодильнику, тогда будет попросторней.
31.05.2016
Ответить
Сануля
№19 -это навесной шкаф. Они под потолком будут, высота у них 40 см - они совсем не чувствуются и не давят. а на полу только хородильник и тумба с микроволновкой, глубиной 40 см. на визуализации видно. а на схеме вид сверху. там и стрелочка от шкафа не верхнего, если посмотрите.
развернуть тоже думали. Хотели посмотреть уже на этапе установки, как удобнее будет.
31.05.2016
Ответить
Sonk
аа, понятно. в общем, я бы тумбу с микроволновкой развернула на 90 градусов, и сделала шириной с холодильник, чтобы гармонично смотрелось. По бокам микроволновки видимо придется поставить фальшпанели, но это недорого, там площадь-то маленькая. Еще попробовала бы сделать этот шкафчик и высотой с холодильник: он вроде бы неглубокий совсем, а места для хранения лишними не бывают. Ну и в порыве перфекционизма, верхнюю панель продлила бы до стены, чтобы холодильник получился как бы "встроенным". Это уже необязательно, просто я у себя этого не сделала, и пожалела, выглядело бы более завершенно и аккуратно.
31.05.2016
Ответить
Сануля
Да, спасибо большое. Про повернуть мы думали. Холодильник тоже будем делать"встроенным" с помощью фальшпанелей и верхнего ящика. Видела в Икее, смотрится очень хорошо. По поводу сделать высокий шкафчик, побоялась, что будет совсем уж тяжело. Мне бы понять, оставить только холодильник или все-таки и микроволновку оставить.
Спасибо большое, что не прошли мимо. :)
31.05.2016
Ответить
Sonk
если по паспорту микроволновки такой неглубокий шкафчик разрешен, то можно оставить конечно.
31.05.2016
Ответить
Оставшиеся комментарии доступны после регистрации
Зарегистрируйтесь и получите полный доступ ко всем функциям сайта.