Помогите советом: Спальня-гостиная
Вопросы и ответыЗдравствуйте! Однокомнатная квартира черновая улучшенная для молодой девушки (возможны гости-родственники на несколько дней - дополнительные спальные места).
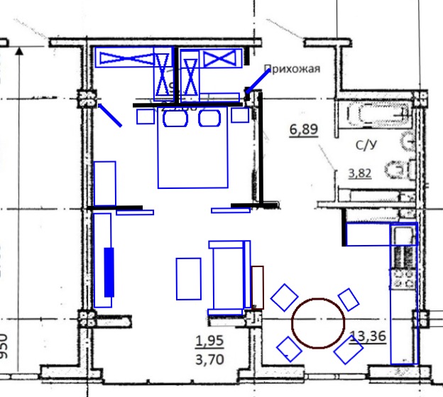
В живую квартиру еще не видели, размеры ниши, выступов приблизительные.
Предполагается поставить в гостиную кровать (шириной 150 см) с удобным матрацем, чтобы обойтись без ежевечернего раскладывания дивана. Диван тоже планируется и небольшая рабочая зона для работы за компьютером.
Варианты:
1. Поставить кровать ближе к окну, в нише - гардеробная.
2. В нише разместить кровать и шкаф, который будет разделен на части, доступ к которым будет из комнаты и прихожей.
Что посоветуете? Какие отзывы по размещению кровати в нише? План квартиры в Подкат

Анатолий Николаевич
Кровать размещайте так,чтобы ночью проникал свет луны,когда на небе луна.Если сигнал с улицы не будет поступать,то ни здоровья,ни удачи не будет.
21.06.2016
Ответить
Виктория (дизайнер)
Комната большая: поместиться и кровать и гардероб и гостиная зона.
Я бы дверной проем уменьшила, к глухой стене сделала спальную зону, а остальное под гостиную.
разделение этих зон может быть разнообразное: раздвижные перегородки, полустенки, несплошные перегородки или просто красивый портал + шторы
разделение этих зон может быть разнообразное: раздвижные перегородки, полустенки, несплошные перегородки или просто красивый портал + шторы
20.06.2016
Ответить
Виктория (дизайнер)
Ну это так, навскидку. Чтобы все грамотно расположить надо посидеть, подумать, повертеть.
20.06.2016
Ответить
Мила
Перенести дверь в комнату максимально к двери кухни. Таким образом немного продлится коридор, не будет глухого угла (безполезного) между кухней и комнатой, а самое главное увеличится ниша на те самые см, что позволит поставить кровать не вдоль стены, а так, что можно будет к кровати подходить с двух сторон (можно тумбочки с каждой стороны поставить. Рядом сделать шкаф-купе. Спальное место будет как бы отделено от общей комнаты. Получается: тумбочка (50см), кровать (150см), тумбочка (50см) . Остается 3900-2500=1400см. Можно шкаф-купе сделать дверьми в сторону кровати (1400см в глубинну и почти 2000см в ширину шкафа) или двери шкафа в сторону комнаты, тогда 1400см в ширину и почти 2000см в глубину (практически гардеробная.
20.06.2016
Ответить
Jeniya
Шкаф вдоль кровати, имеете ввиду? Можно перенести и уменьшить дверной проем в гостиную? Двери в кухне и гостиной хотелось бы иметь... Раздвижные получится сделать?
20.06.2016
Ответить
Jeniya
Спасибо, Мила. Окна выходят на юго-восток. Как лучше ориентировать изголовье кровати? Хотя здесь сильно не разбежишься, наверное.И вообще, стоит ли этому придавать большое значение?
20.06.2016
Ответить
Мила
Нет, не уменьшить, а перенести дверь почти вплотную к двери кухни. Дверь обычную, раздвижные ненадежные и не солидные. Кровать поставить изголовьем к стене в торце ниши (напротив окна)
20.06.2016
Ответить