Расстановка мебели в гостиной
Интерьерное решение гостинойс кухней разобралась. на повестке дня гостиная. дано:проходная комната (3 выхода)28 квадратов, где должны разместиться угловой диван, телевизор, место для хранения книг( не обязательно большое), журнальный столик, кресло -качалка и еще кресло(?) или диванчик. я вроде расставила, но по мне довольно заурядно)))

из мебели есть только кресло-качалка. камин можно немного сдвинуть вдоль стены.
буду рада любым советам и предложениям.
Виктория (дизайнер)
в такой шикарной комнате мебель ставить по стеночке - совсем не вариант. Выложите план - покажу идею, описать не смогу
14.07.2016
Ответить
Елена
у вас немколько вариантов. вижу 2 сейчас. диван большой расположен возле правой стены, нарротив два кресла.
и аторой вариант - кгловой диван по верхней стене с заворотом по леаую руку ( окно), в противоположном углу кресло.
тока тв как то не очень размещается. нужно додумывать.
но ваш вариант он неверный.
15.07.2016
Ответить
Юлия
В первом варианте диван там же? А кресла возле камина по левой стене? Второй не очень понимаю как, потому, что по верхней стене панорамные окна и выход на терассу.
15.07.2016
Ответить
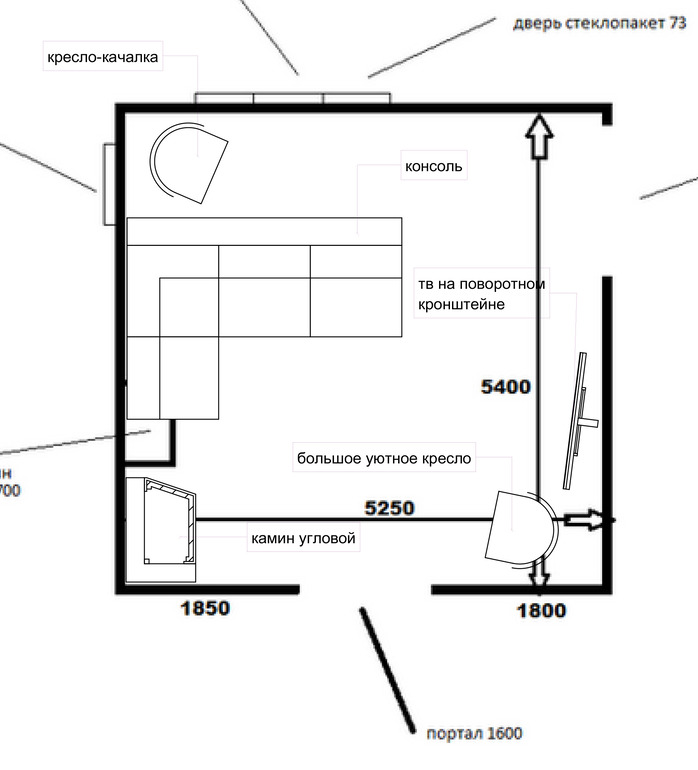
Виктория (дизайнер)
вот такой вариант - косоль за диван - это одновременно и жур.столик и книжная полка. Диван 3 метра - большой. Кресло возле ТВ - какое нибудь супер удобное, типа такого
вот такой вариант - косоль за диван - это одновременно и жур.столик и книжная полка. Диван 3 метра - большой. Кресло возле ТВ - какое нибудь супер удобное, типа такого
20.07.2016
Ответить
Юлия
спасибо большое! очень уютная и эргономичная расстановка. сама уже не рада, что столько дверей в одном помещении)) я, кстати, тоже уже начала примерять угловой камин, но до такого конечно не додумалась.
20.07.2016
Ответить