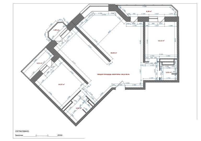
помогите выбрать планировку
Перепланировки стен. Согласование перепланировки квартир и нежилых помещений.особенно волнует узел коридор-гостиная-правый санузел
на расстановку мебели не смотрим, она предварительная

Анатолий Николаевич
Во втором варианте поменяйте дверь в санузел местами из зала-кухни в прихожую и все встанет.Да и кухня станет как-то побольше.
А нет возможности ту гостевую спальню,что ходить из кухни, сделать основной и к ней присоединить санузел этот спорный.
Если у Вас квартира в которой вы не жили,то могу предложить свои знания по энергетике жилья,чтобы так все выставить в пространстве,чтобы после вселения дела не стали сворачиваться,что в процентах девяносто.Просто,сюда заходят те,кто еще не пожил два-три года новом жилье.Потом они уже не заходят.Этот сайт для хвастанья новоселев,но когда начинают жить в новом жилье,то большинство уже не хочет сюда заглядывать.
19.08.2016
Ответить
Елена
1 вариант по-моему идеальный натему роридор-гостинная и правый санузел. да и другие части не вызвали никакого отторжения, все гуд.
18.08.2016
Ответить
Fomi_Anna
1 вариант, он гармоничнее. Хотя по большому счёту мне лично в 2-м не нравится только дверь в туалет на глазах у всех присутствующих в гостиной и кухне. Проход в комнату через балкон... Это жесть... хотя такая тайная комната получается... Правда сверху и снизу будут кухни скорее всего, шумно...
17.08.2016
Ответить
Anna Nicole
По мне, так даже сомневаться не приходится, первый вариант лучше. Вход в санузел из кухни-гостиной - это просто ужас!
17.08.2016
Ответить
Margo
Я за второй , в нем грязная зона прихожей хоть как то изолированна , а на первом проходная. И стиралка нормально встала
17.08.2016
Ответить
Светлана
а кухонный гарнитур нельзя вдоль эркерного окна пустить? а на его место диван и проход в комнату. У вас же вход в правую комнату через балкон?
Санузел на первом фото лучше. Оставьте место в прихожей, зачем Вам прихожая в сан.узле?
17.08.2016
Ответить
Светлана
какой-то бред )))) проем даже в несущих стенах можно делать по согласованию... многие делают без...
17.08.2016
Ответить
Юлия
Светлана, у меня и так много нарушений )) проем там никак не возможен не только из за того что стена монолит, а хотя бы потому что воду и канализацию нужно вести к стояку..
17.08.2016
Ответить