На распутье. Нужна ли такая перепланировка?
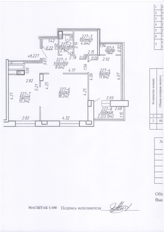
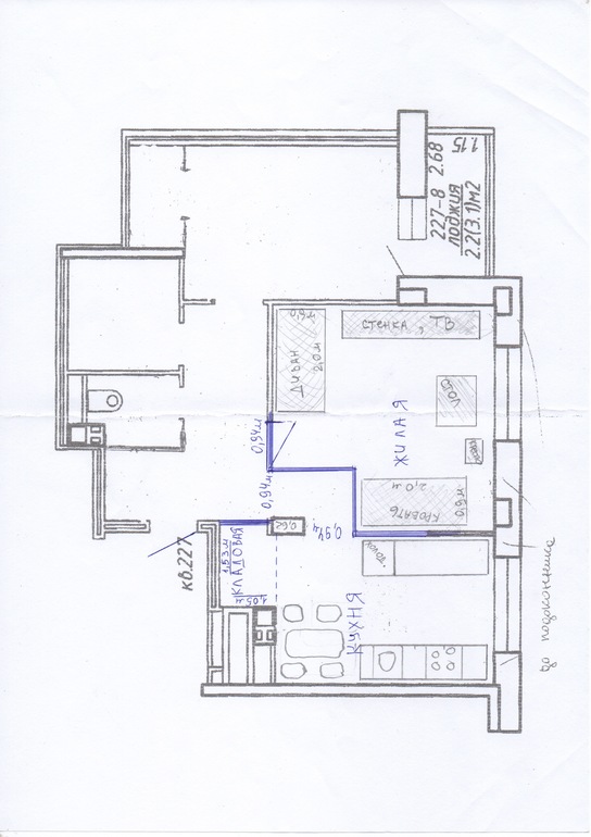
Перепланировки стен. Согласование перепланировки квартир и нежилых помещений.Доброго дня всем! Давно читаю блог и, так сказать, напитываюсь информацией. Предстоит делать отделку в новостройке. Но вот застряла прям с первых шагов. Помогите, пожалуйста, советом. Есть двушка и семья из 4 человек. Каждому хотелось бы отвести уголок, да и вещей будет много. Мне кажется, что можно для этой цели задействовать кухню, выгородив там место под кладовку, или рабочий стол (на схеме видно, где). Но для этого потребуется пожертвовать немного комнатой (хотя, мне кажется, там образуются два удобных уголка, где можно поставить диван и кресло с журнальным столиком и интимно посидеть). Что уважаемое сообщество скажет? Может я что-то упускаю из вида. Со стороны будет виднее. Заранее спасибо за любые мнения.

Евгения Акимова ПРО Дизайнер
я бы еще сильнее увеличила кухню. так чтобы получилась полноценная кухня-гостиная - место сбора и отдыха всей семьи, плюс гостей.
06.08.2016
Ответить
Ромина мама
Евгения, спасибо. Предполагается, что в этой комнате будут спальные места для 2 человек. Поэтому и выгораживается угол на кухне, чтобы можно было уединиться вечерком, если кто-то уже лег отдыхать в гостиной.
06.08.2016
Ответить
Евгения Акимова ПРО Дизайнер
в гостиной будет спальня для 2 взрослых, правильно?
06.08.2016
Ответить
Евгения Акимова ПРО Дизайнер
это детская что ли будет? Вы нарисуйте не только сдвиг стены, а как именно и где будет стоять мебель. так гораздо правильней. и сразу все встанет на свои места.
06.08.2016
Ответить
Евгения Акимова ПРО Дизайнер
если масштаб верный и кухня-гостиная не нужна, и за столом редко сидят 4 человек, то наверно, нормально. хотя я бы поставила стол у окна
06.08.2016
Ответить
Ромина мама
Евгения, спасибо. Попробую переставить мебель на кухне. А вообще такой вариант имеет право на жизнь, как вам кажется?
07.08.2016
Ответить
Евгения Акимова ПРО Дизайнер
если он полностью отвечает потребностям ВАШЕЙ семьи, то конечно
07.08.2016
Ответить
Ромина мама
Это весьма и весьма приблизительная растановка мебели. Думаю, что кухня все-таки будет Г-образная, а стол уйдет под окно.
11.08.2016
Ответить