Подскажите, как перепланировать двушку!!
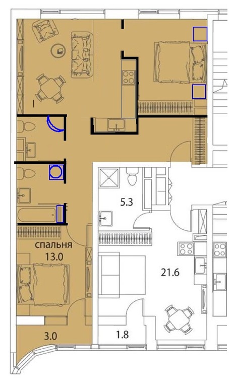
Вопросы и ответыОбязательно нужно место отдыха с диваном, желательно не маленьким, спальня и Детская. Что можно сделать при такой планировке? Помогите, пожаалуйста!!!! 
Ксения
Если только объединять кухню и гостиную и делать кровать за декоративной перегородкой .. Т.е. Без выделения спальни в отдельную комнату
18.08.2016
Ответить
ribka777
Спасибо за идею! Думаю устроит, только вытяжку как-то надо будет протянуть...
18.08.2016
Ответить
Татьяна Специалист по недвижимости
вот что-то такое в голову пришло, кухню можно перенести в коридор, а на месте кухни гостиную организовать
18.08.2016
Ответить
ribka777
Спасибо!! А как в коридор кухню? На нарисованном варианте телевизор некуда( может в коридоре дверь слева сделать, а кухню углом?
18.08.2016
Ответить
Татьяна Специалист по недвижимости
а после того как вы так сделаете вопрос с телевизором как будете решать? вы видимо не очень внимательно прочитали мой предыдущий комментарий
18.08.2016
Ответить
Татьяна Специалист по недвижимости
да, в угол.
или как вам посоветовали перенести кухню на место только не спальни, а гостиной, это конечно не узаконить, но при правильном подходе проблем не будет и стены можно оставить на месте
18.08.2016
Ответить
Жаворонкова Анна
диван развернуть лицом к кухне и сделать стену за ним... в итоге получится кухня-гостиная, в оставшейся комнате от гостиной делать детскую...
18.08.2016
Ответить
zorina
Я бы подвинула немного стену гостинной (если можно,конечно), а стену кухни и коридора вообще сломала бы. Получилось бы большое такое пространство. Коридор от кухни условно отделила бы диваном, поставив его спинкой к двери. У нас сейчас в квартире одной так. Нормально, никого не смущает заходить сразу на кухню)))
18.08.2016
Ответить
zorina
А саму кухню сделать поменьше. Я имею ввиду мебель. Короче, я за гостиную в кухне. Это классическая двухбедрумная квартира получается. У нас вообще вся жизнь в таких совмещенных кухнях столовых гостинных. Так привыкли, что отдельная комната для дивана уже дикостью кажется
18.08.2016
Ответить
ribka777
Так я тоже не против кухни-столовой, по-другому не получится, но вопрос как разместить все, чтобы и диван был с телевизором на кухне.
18.08.2016
Ответить
Евгения Акимова ПРО Дизайнер
так за вас никто не решит
бти - это бюро технической инвентаризаии
18.08.2016
Ответить
Евгения Акимова ПРО Дизайнер
они когда квартиру принимают, выдают такой план с размерами по их замерам
вот про него говорят - план бти
18.08.2016
Ответить
Мульта
У нас почти такая же планировка, как ни крутила - ерунда выходит. Решила в спальне детскую делать, а мы с мужем в гостиную
18.08.2016
Ответить
ribka777
Спите на диване? Нам не вариант, обязательно кровать и диван для гостей в другой комнате
18.08.2016
Ответить
Мульта
Так поставьте кровать)) ещё раз - эта планировка никак не перекраивается (я 5 лет думаю). Единственное как вариант - кухню переносить в гостиную, а на кухне делать детскую. И все, увы
18.08.2016
Ответить
Irish
Вы хотите и спальню и детскую изолированными?
Стены у вас по факту переносить нельзя, т.к. они чередуются с мокрыми зонами - туалетом-ванной и кухней.
18.08.2016
Ответить
Irish
Дело не в стенках, есть определенные правила расположения мокрых зон. Нам, например, сразу сказали даже не пытаться передвинуть стенку кухни на ... 20 см! Нельзя распологать кухню над жилым помещением соседей снизу. Тоже самое с туалетом-ванной. Вам просто это не согласуют. А если обнаружат - вернуть как было за ваш счет
18.08.2016
Ответить
ribka777
А смысл тогда свободной планировки? Я так понимаю,что именно воду нельзя переносить за пределы кухни, а если на присоединённой территории будет стоять диван, разве нельзя?
18.08.2016
Ответить
Irish
вот именно также возмущался у нас сосед по дому, когда ему рассказывали про то, что несущие столбы нельзя трогать)))
Вы можете стену не строить, не вопрос, построить лишь часть стены, легко. Но сделать водопроводный выход на территории, помеченной как жилая комната, уже нельзя, например.
18.08.2016
Ответить
Оставшиеся комментарии доступны после регистрации
Зарегистрируйтесь и получите полный доступ ко всем функциям сайта.