Семейная идиллия
Авторские проекты дизайнеров.(Посты не по теме будут удаляться!)Добрый день, дорогие читатели!

Мне посчастливилось подготовить дизайн-проект для большой, прекрасной семьи! Поэтому, хочу поделиться с Вами результатами удачно сданного дизайн-проекта.
Ссылка на объявление: https://bazar.babyblog.ru/item/320717
При первой встречи у Заказчиков было много пожеланий ,семья большая: мама, папа и трое прекрасных детишек и очень часто бывают гости. Но многие пожелания поменялась в процессе работы над проектом! 3D эскизы очень помогли увидеть и четко определиться со своими желаниями и требованиям, чему я очень рада!
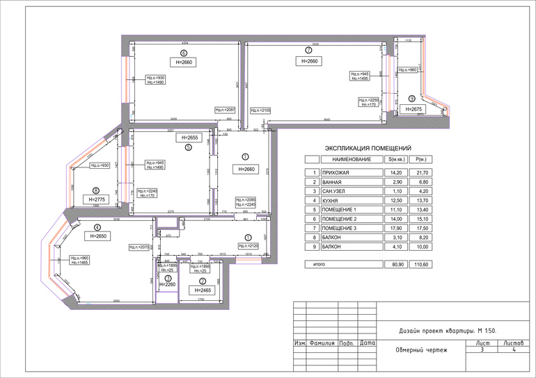
Как и всегда, рабочий процесс начался со встречи на объекте, обсуждений технического задания и обмеров помещений.

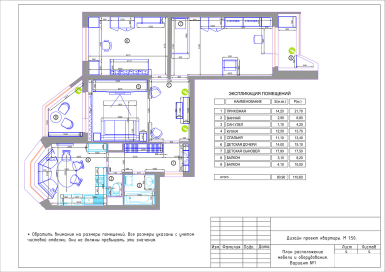
В голове сформировалось несколько прекрасных идей и вариантов, поэтому я сразу приступила к подготовке планировочных решений. После долгих обсуждений, мы «собрали» тот самый идеальный вариант, который во всем устроил каждого члена семьи.

Началась работа. Самая время затратная и интересная работа-эскизы!
У нас получилось большое общее пространство, которое необходимо было объединить, но при этом разбить на функциональные зоны. С помощью цвета и декоративных элементов нам это удалось:

Детские получились немного сказочные, но ведь хочется для каждого создать свою историю! А когда они разнополые, очень важно выделить для каждого свой личный уголок. Это получилось добиться с помощью раздельных комнат. О каждой расскажу немного подробнее.
Старшая дочка увлекается музыкой и танцами и ее главное пожелание было использовать розовый цвет и что-то сказочное! Объединив все увлечения и пожелания, сложилось прекрасное решение:

Вторая комната предназначена для двух мальчиков. И родители не хотели что-то новое и интересное. Поэтому, я предложила превратить комнату в джунгли, с собственным домиком на дереве.

Детские на столько пришлись по вкусу, что детские были утверждены с первого раза, что бывает крайне редко.
Спальня родителей будет служить одновременно и гостиной. Балкон, в данном варианте, послужил зоной relax, где можно посидеть вечером с чашечкой чая и почитать книжку.

Самым сложным помещением оказалась ванная и сан.узел…Огромное время ушло на подбор и выбор плитки. Было предложено и рассмотрено более 20 вариантов плитки. Но в итоге, получилось найти подходящий по цвету, цене и дизайну модель.

На мой взгляд, получился очень уютным и семейным! Есть много место, где можно провести время всей большой семье. Послушать прекрасную игру на фортепьяно. Посмотреть выступление юной балерины.
В свою очередь, хочу напомнить, что каждый дизайн-проект разрабатывается индивидуально под каждого Заказчика. И если создан такой проект, значит кому-то это нравится, и он готов жить в таком решении!
Если у Вас возникли вопросы обращайтесь!
С радостью Вам помогу. Хорошего дня!