Перепланировка
Вопросы и ответыДобрый день)))
Недавно я писала, что хотим поменять местами кухню со спальней.
Но передумали, т.к. трубу отопления у нас прорвало уже во второй раз((( и мы теперь боимся переносить мокрую зону.
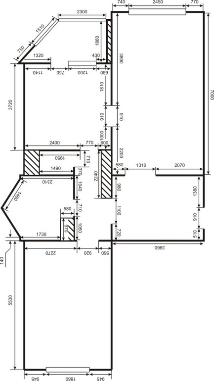
В связи с этим у меня опять вопрос как распланировать зал, чтобы разделить его на скальную (без окон) и гостиную.
Кровать у меня очень большая 210*190см, ее надо как то уместить.
Рассматриваем варианты с переносом дверных проемов.

Мне нравятся такие варианты.


Наталья Жукова
Мы в нашей квартире в Питере тоже много чего поменяли, когда перепланировку делали. Согласовывали перепланировку через Проектное бюро "Коле" . Сотрудники подготовили проектную документацию, перепланировку узаконили. Теперь в квартире все так, как мы и хотели))
15.03.2017
Ответить
Dysena
3 вариант кардинальный, имею ввиду объединение лоджии с кухней, в этом случае в части оставшейся жилой комнате будет достаточно светло, а спальня будет с окном.
И дружеский совет, если у Вас квартира не на 1-ом этаже,не переносите никуда мокрые точки, МЖИ это никогда не узаконит, а если кто-то из "доброжелателей" напишет на Вас жалобу, Вам придется все возвращать в исходное состояние.
3 вариант кардинальный, имею ввиду объединение лоджии с кухней, в этом случае в части оставшейся жилой комнате будет достаточно светло, а спальня будет с окном.
И дружеский совет, если у Вас квартира не на 1-ом этаже,не переносите никуда мокрые точки, МЖИ это никогда не узаконит, а если кто-то из "доброжелателей" напишет на Вас жалобу, Вам придется все возвращать в исходное состояние.
18.10.2016
Ответить
Фаина
У нас заложен проход на кухню, спальня у окна, а "гостиная" сообщается с кухней
17.10.2016
Ответить
Евгения Акимова ПРО Дизайнер
Елена? Мы с Вами начинали работать по этому проекту, а потом вроде Вы с кем-то еще работали. Так и не пришли к консенсусу?
17.10.2016
Ответить
Оксана (дизайнер, инста: @persona_story)
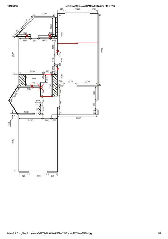
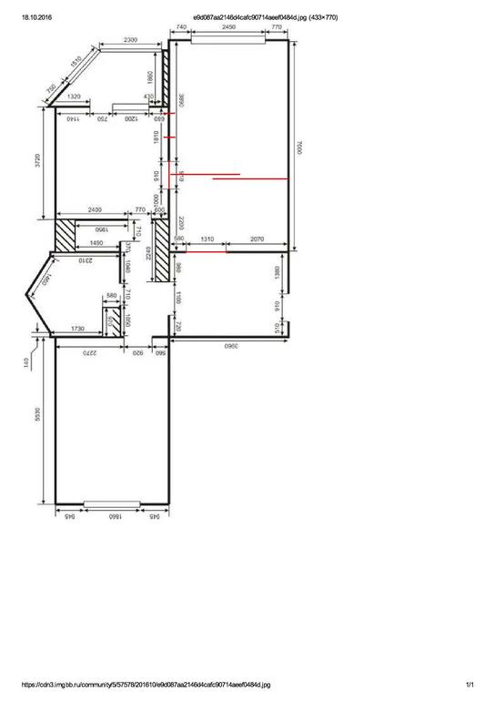
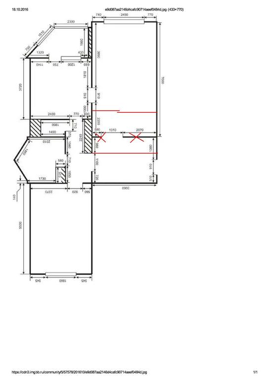
Заложить вход из прихожей. Чтобы встала кровать - чуть перенести проем на кухне. А дальше - Вы сами нашли решение с разделением комнаты на две зоны. Либо можно пойти дальше: снести часть стены на кухне (у окна) и там поставить обеденный стол. Но это уже надо смотреть планировочное решение и эргономику. Мокрую зону никуда не советую переносить: протечка - вопрос времени, да и насосы под полом и поднятие уровня пола: зачем это надо? Хороший план квартиры. Это какой ЖК?
17.10.2016
Ответить
Елена
Вы можете сделать спальню с окном и отделить ее полноценной стеной от гостиной. А между гостиной и кухней сломать оставшуюся стену. Дверь из прихожей заложить и сделать там гардеробную или поставить большой шкаф. К стене, смежной с прихожей, поставить диван, а напротив (на стену спальни) повесить ТВ
17.10.2016
Ответить
Тата
закройте вход в зал из прихожки, оставьте из кухни, у вас как раз спальня получится
17.10.2016
Ответить
Анхен
да, это один из вариантов.
Но может кто-то еще что-то интересное предложит.
Я еще думаю разделить за на пополам и из кухни сделать еще один вход, но уже в зал.
17.10.2016
Ответить
Валентина Гусакова
Скажите, а вы где-то оформляли документы, чтобы узаконить перепланировку квартиры? У нас тоже появилась идея поменять местами кухню и спальню, но говорят, что требуется получить разрешение. Я узнавала, что можно в этом центре согласования даже разработать проект новой планировки, интересно только сколько займет времени, чтобы получить эти документы?
13.03.2017
Ответить