Проект: "Простые истины"
Авторские проекты дизайнеров.(Посты не по теме будут удаляться!)Всем привет.
Ко мне часто обращаются не только за полным дизайн-проектом, но и за проектами отдельных помещений. Это нормально, я не блатной дизайнер, которому не по рангу сделать только детскую или только кухню.
Сегодня покажу проект в котором необходимо было создать дизайн коридора, спальни и детской. Такая задача, иной раз, бывает посложнее целого проекта, так как добавляются много дополнительных факторов, которые нужно учесть. Концепция уже готовых помещений, стиль, цветовая гамма.
Фото уже готовых помещений (кухня и с/у) показать не могу, т.к. авторство не мое, а разрешения мне заказчики не давали.
Квартира для семьи с двумя сыновьями-дошкольниками. В коридоре нужно было предусмотреть много мест для хранения. Детскую спланировали таким образом, чтобы хватило места для сна, учебы, игр, вещевого шкафа, и даже для небольшого турника. Спальня с большой кроватью, рабочим местом, стенкой для ТВ и большим вещевым шкафом.
Почему проект называется "Простые истины"? Здесь очень спокойный дизайн. Дизайн для жизни, удобства. Использованы приглушенные, спокойные цвета. Преобладают простые формы и прямые линии. Он не дорог в исполнении.
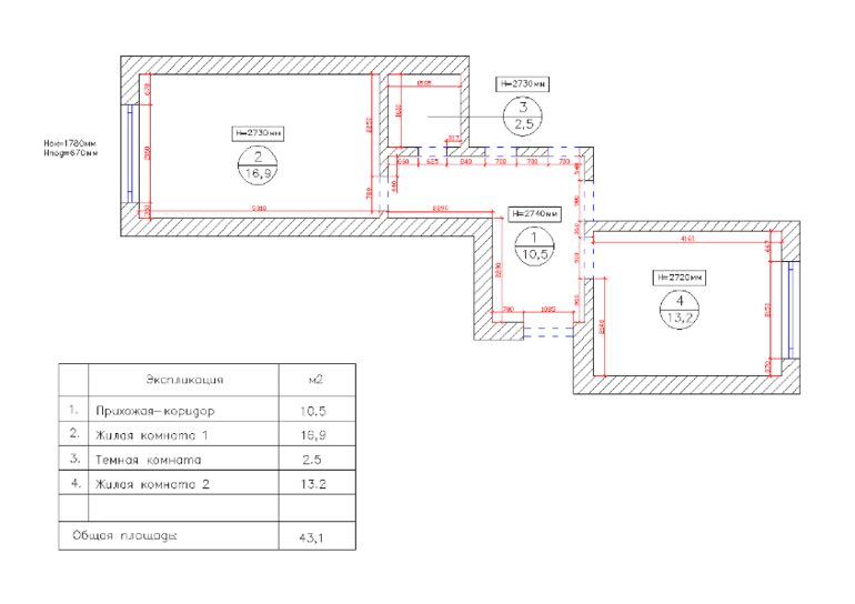
Общая площадь проектируемого пространства - 43,1м2.
1. Обмерочный чертеж

2. План расстановки мебели.

3. Коридор.


4. Спальня.


5. Детская


Буду рада комментариям, а также письмам в личку, на почту и звонкам.
Цена на полный дизайн-проект:
- до 60м2 - 1900руб./м2
- от 60 до 110м2 - 1700руб./м2
от 110м2 - 1500руб./м2
Моя почта: Naamah1987@yandex.ru
Мой телефон: 8-905-767-13-32