Муки выбора: просто спальня или спальня-гостиная?
Интерьерное решение спальниИмеется вот такая комната, которая образовалась в процессе присоединения к спальне кладовки.

В принципе, я гостей не принимаю особо много и часто. Так подружки иногда забегут, посидим на кухне))
Но когда я поставила кровать в образовавшуюся нишу, то получила свободное пространство, хоть танцуй. И мне это нравиться. Тем более, что в прихожей есть 2 шкафа-купе, общей длиной 2,8м, и особого смысла для гардеробной нет. Хватит и маленького шкафа.
Поэтому никак не могу определиться с планировкой комнаты.
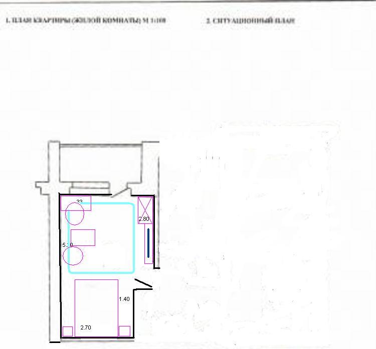
Изначально думала так:

Потом решила сделать спальную зону в нише, а на оставшейся площади гостиную зону, примерно так:

Что думаете девочки? Может есть идеи с этой комнатой?
Ляля
ниша зонирование при помощи шторы и комода
гостиная зона вид из ниши
для полной картинкикухня вся квартира выполненна в едином стиле и единой цветовой гамме
ниша зонирование при помощи шторы и комода
гостиная зона вид из ниши
для полной картинкикухня вся квартира выполненна в едином стиле и единой цветовой гамме
15.12.2016
Ответить
Ирина
Я за второй вариант.
У нас спальня гостиная.
И как мне не хватает такой ниши.
15.12.2016
Ответить
Виктория
Я за первый вариант. Места для хранения всегда не хвататет
Но это при условии, что это не основная комната
15.12.2016
Ответить
Аня
В такой комнате грех не сделать и спальню, и гостиную, ну правда, чего тут думать? :-)
15.12.2016
Ответить
Анатолий Николаевич
Спальная зона в нише сразу говорит о том,что верхняя энергетика столпа положения кровати никогда не будет положительно стыковаться с энергетикой входного потока к окно.Это говорит о том,что той везучести и здоровья,которая у Вас была в этом жилье,если Вы в нем до этого уже жили,уже не будет.Подобное много раз наблюдал за свою многолетнюю практику.
Если что,то можете почитать мой дневник.
15.12.2016
Ответить
Ольга
2 вариант лучше,если Вы уверены что мест для хранения достаточно.Напротив тв поставила небольшой диван.
15.12.2016
Ответить

