Возможно ли узаконить такую планировку?
Перепланировки стен. Согласование перепланировки квартир и нежилых помещений.Первоначальная планировка такая. Несущие стены между кухней 4 и комнатой 2 (с проемом), и между комнатами 2 и 3. Санузлы со стенами, остальных стен нет. Между кухней 4 и лоджией стена не несущая.
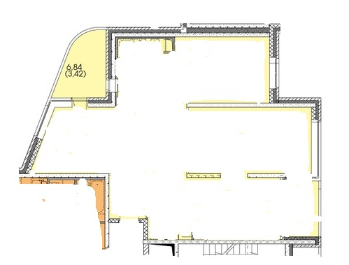
Получается примерно следующее, если убрать все не несущие стены:

Сходили посмотрели, что делает сосед снизу, у них ремонт в полном разгаре. Натворили они конечно мрак - снесли кусок несущей стены, разделяющей комнаты 2 и 3 (примерно 80 см), пробили стену и сделали выход на балкон в том месте, где расположен большой санузел (сейчас там небольшое окно 60 см). Перенесли верхний санузел правее в сторону спальни. Лоджию одну присоединили, сделали там детскую комнату, а кухню сделали внутри без окна. Вот их схема:


Конечно мы не собираемся трогать несущие стены, как сделали они. Но какие-то идеи почерпнули у них, у тоже хотели бы сдвинуть верхний санузел в сторону спальни 3, а на месте санузла сделать кухонную зону. Так вот реально ли узаконить перенос сан.узла, если под нами на 2 этаже тоже будет сан.узел (но будет ли он узаканивать свои перепланировки мы не в курсе, т.к. общались только с бригадой), на первом этаже нежилые помещения. В итоге хотим 4 спальни. На схеме пока только наши фантазии, ждем от дизайнера еще варианты.

Или еще вариант созрел с меньшим количеством перепланировок:

gusolo
У нас 112 кв. 3 ка, на свой страх и риск сделала вместо санузла кухню- гостинную, а где кухня туалет и кабинет

, несущие стены не трогала.У нас 17 этажей монолитный, мы на 14, запахов нет вообще. Получилось 3 комнаты и кухня-гостинная 40кв.


, несущие стены не трогала.У нас 17 этажей монолитный, мы на 14, запахов нет вообще. Получилось 3 комнаты и кухня-гостинная 40кв.
01.01.2017
Ответить
Stranica
1-й вариант лучше чем второй, особенно учитывая то что во втором варианте надо будет тащить трубы в середину комнаты и при этом учитывать наклон или ставить насос чтоб вода нормально уходила , а насосы забиваются часто , еще знаю что перенос мокрых зон тяжело узаконить , а вот лоджии мы узаконили , одна сделана как рабочее место за дверями в пол , а внашу спальню без дверей , у меня есть в дневнике про ремонт наш , у нас тоже была перепланировка но небольшая , мы соединяли однушку и двушку в итоге в однокомнатной вместо кухни сделали спальню , но гостевой у нас нет , есть 4 спальни и кухня + гардеробная большая
27.12.2016
Ответить
Irylen
Последнее время вижу часто желание людей сделать детскую комнату под соседской кухней. Ну хотите вы по утрам слышать бряканье ложек, тарелок, а ночью шум посудомойки, ну и наслаждайтесь этим сами, почему ваши родные дети должны от этого страдать? Только не нужно писать: это только в планах, мы еще ничего не сделали! Вы на чертеже написали, значит думали в эту сторону, так что я имею право повозмущаться ;)
27.12.2016
Ответить
Светлана Т.
Можете, но толку?))))
Если бы я делала там детскую комнату, то поселила бы туда дочь-подростка. А может себе оставим, назначение комнат да и проект в целом еще не утвержден. Ну и дополнительную звукоизоляцию можно сделать. А еще не забывайте, что дом - монолит с толстыми перекрытиями. Это ж не панельный дом, где все передается по тонким облегченным перекрытиям. Плюс если наверху у соседей кухня, то они обязаны сделать гидроизоляцию, а это дополнительный слой звукозащиты. Проблемы вообще не вижу. Это вообще самое меньшее, что меня заботит. Я думаю, что моя старшая дочь предпочтет свою персональную комнату под чьей-то кухней, чем соседство с младшей сестрой, уровень шума от которой гораздо выше шума от кухни)))))))
27.12.2016
Ответить
Ольга
То, что темно-серым - несущие элементы стены. В помещении 4 наружная стена (Ее кусок) - несущая. Между 2 и 4 судя по плану, несущий кусочек (пилон) тоже левый. Не вся стена. Мокрые зоны над спальней нельзя делать. Только если вы на третьем этаже и сосед все согласует. И короб на нижнем с/у трогать нельзя
27.12.2016
Ответить
Светлана Т.
Наоборот несущие обозначены серым в крапинку. Стены между комнатами все несущие. Стена лоджии на кухне - из пеноблоков с обшивкой.
27.12.2016
Ответить
Sveta
Света, присоединюсь к ниженаписавшим по поводу соседа. Сносить несущие стены опасно. Как сейчас не знаю, раньше можно было согласовать проем в несущей стене не более 80 см с расчетом и усилением. Делать из санузла кухню не стоит, запахи туалета в кухне не самое приятное. Двигать санузлы тоже не желательно, во-первых вентиляция, во-вторых трубы тащить недешево и потом могут возникнуть проблемы. Лучше сделать проект, хотя бы эскизный, поверь, это окупится. Нормальный спец подскажет, как с наименьшими затратами и переделками добиться наилучшего результата.
27.12.2016
Ответить
Светлана
Свет, Ваш сосед сделал полную лажу и я бы на твоём месте на него настучала. Если мокрые зоны он ещё может со скрипом согласовать, то разбор несущей стены он не согласует никогда. Значит скорее всего он вообще ничего согласовывать не планирует. А значит и ты перенос мокрых зон никогда не согласуешь. Присоединение балкона можно согласовать, если сделать стеклянную дверь в пол ( мы так делали).
Имхо недостатки второго варианта -выход из туалета в гостиную, придётся выходить "с улыбкой";)плюс запахи да и просто не особо приятно, плюс реально ни одного нормального сан.узла.
В первом варианте все получше имхо, но вы его никогда не согласуете.
Ну и плюс добрый совет - видела мультик про семь шапок из одной овчины;) имхо лучше меньше, да лучше. Из небольшой трёхкомнатной хорошую пятикомнатную не сделать, оптимальный вариант три спальни и кухня -гостиная - кому то придётся жить вдвоём;)
27.12.2016
Ответить
Светлана Т.
Про соседа подумаю)))
Ты знаешь, санузел 4,5 метра на мой взгляд вполне нормальный) у меня сейчас туалет 1 кв.м и ванная комната 2,5 кв.метра, где стоит ванная, раковина, стиральная машина и даже корзина с бельем)) тем более угловую ванну-джакуззи я ставить не планирую)
Пока младшие маленькие, я конечно могу их впихнуть в одну комнату. Но надолго ли? на 3-4 года самое большое, потом в идеале развести, т.к. дети разнополые. Кристине точно нужна отдельная комната, а не совместная с шумной и активной Алиной. Ну и что я потом буду делать? отдавать детям свою спальню а сама спать в гостиной?)
Жду вариантов от дизайнера, может что-то оптимальное для нас придумает))
27.12.2016
Ответить
Светлана
Свет, я сама с такими же санузлами 30 лет прожила;) и теперь я наслаждаюсь 6 ти и 4,5 метровыми;) правда оставь санузлы в покое, ты быстро заценишь их размер;) Кристине однозначно свою комнату, она уже подросток и с трехлетками не кайфово, а маленьких в одну пока, лет 5-6 до подросткового возраста вполне можно и вдвоём пожить. А потом кристину в отдельную хату ( уверена, она к 18 ти с радостью от вас свалит) младших разделить или может расширитесь к тому времени. Себе однозначно делать спальню, в конце концов Вы на эту хату пахали, так что заслужили вполне;)))
27.12.2016
Ответить
Kelly2309
Свет, ну что это за новомодное развести детей разного пола? Дети они и есть дети. Вместе веселее, тем более у тебя разница минимальная. Я с братом в одной комнате до свадьбы (моей) жила. И дети мои сейчас живут в одной комнате. И если б было место на еще одну комнату, то сделали бы кабинет мужу, а не вторую детскую.
28.12.2016
Ответить
Светлана Т.
Я все жизнь одна в комнате жила и рада этому была)) Но пока решили детей вместе, а позже решим. Кабинет-гостевую спальню предусмотрим.
28.12.2016
Ответить
Kelly2309
Вот тоже вчера подумала про 7 шапок, но не стала писать.
Не надо мельчить. В большой квартире клетушки по 12 метров и 8 метровая кухня это жесть. 3 спальни плюс кухня-гостиная. Мелкие прекрасно поживут вместе. Кристина вырастет, комнату освободит, тогда их и расселишь.
28.12.2016
Ответить
Ольга
Мокрую зону можно уменьшить, но не увеличить или перенести. Недавно делали ремонт в новой квартире, все это проходили. Лоджии присоединили, одну со стеклянной дверью сделали, вторую без...все согласовали
27.12.2016
Ответить
Катерина
Cвета, точно нельзя переносить мокрые зоны. Смотри, у соседа вашего может получится узаконить перенос, потому что под ним нежилое помещение, есть оговорка насчет этого в правилах. А может ничего не получится. У вас меньше шансов узаконить. Не знаю, будет ли аргументом перенос зон жилого помещения под вами (у соседа) - может пройти, может не пройти. А так правила достаточно жесткие насчет переноса мокрых зон.
Поэтому лучше узнавай у специалистов. Я к сожалению не по этой части.
27.12.2016
Ответить
Ярославна Галивец дизайнер интерьера
Пишите заявление на соседа! А сами глупостей не делайте! У вас прекрасная квартира, с отличным потенциалом, твори не хочу!
Законодательство (слава богу) все сильнее болты закручивают, а почему, как думаете? Потому что в домах, где 10-15 лет назад наделали незаконных планировок, балконы отваливаются, трещины в конструкциях в ладонь и этажи друг в друга складываются! Так что все это не шуточки!
27.12.2016
Ответить
Машере
Ваш сосед не сможет узаконить подобную планировку, и думаю не станет. Соответственно и вам не советую. У вас отличная квартира,не нужно выдумывать. Можно присоединить лоджию,но придется ставить двери со стеклом. А после проверки снять
26.12.2016
Ответить
Оставшиеся комментарии доступны после регистрации
Зарегистрируйтесь и получите полный доступ ко всем функциям сайта.