Высокая кухня
Интерьерное решение кухниЧасто вижу вопросы в сообществе об увеличении высоты кухонных шкафов.
Правильно! Чего месту пропадать?! И заставлять сверху выставкой посуды и коробочек.
Мы решили использовать высоту потолков в нашей квартире - по полной программе. Раз уж в ширину кв.м. маловато, будем расти в высоту.

Выбор стиля кухни много времени не занял. Вся квартира сделана в светлых тонах, современный стиль хайтек/минимализм/полный микс. 


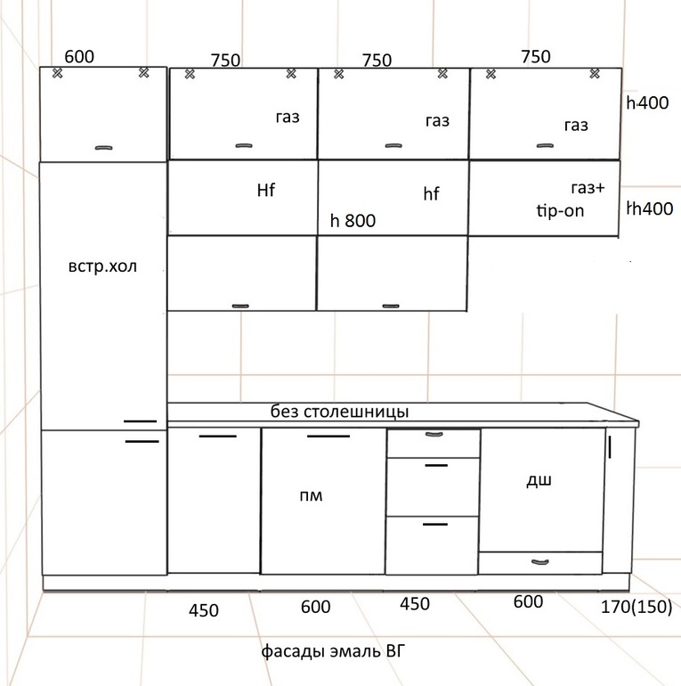
Проект кухни придумали самостоятельно
последнего не нашла. Изменения от этой версии раковина 500, ящики 400:

Высота потолка 2,96 после натягивания полотна. Для вытяжки заранее построен короб из ГК.
Материал белая эмаль (это моя вторая кухня в этом материале, довольна на 100%. Только ранее была с фрезеровкой и стеклами, вот этого решили больше не повторять - мыть труднее).
Просчитав в нескольких именитых и не очень компаниях, обратились к Ангелине с ББ. И она предложила нам самый оптимальный вариант по цене и качеству.
Собирал кухню муж самостоятельно.
Кухня фабрики ДЕЛЬТА.
Есть небольшие замечания, но за цену почти в 100 тр дешевле конкурентов - можно простить. Кромки меланиновые, а не 2 мм с фактурой - этот косяк фабрика по - словам Ангелины уже исправила. И теперь делает каркасы с хорошей кромкой. И на паре каркасов были сколы от нарезки. Мы собирали кухню через 6 месяцев после покупки. поэтому и этот вопрос можно было своевременно решить. С фасадами - все ок.
Дозаказали сейчас еще фасад - бутылочницу. Мы докупали ее сами позднее. Не знали заранее из-за батареи какая поместится по размеру.
Купили каркас в мебельном ателье ЧАЙКА. Механизм простой в интернете фирмы боярд. А фасад на это дело опять заказать у фабрики дельта через Ангелину.
2 верхних ящика HF фирмы BLUM. Это не с чем несравнимое удовольствие пользоваться ими. Остальные ящики просто на подъемниках с тип-оном. В первом ящике мы доделали сами третью полку над механизмами.

Столешницу сами покупали в МАЭРСС http://9986634.ru/shop/4122_«СТОЛЕШНИЦЫ»
Конкретно эта ДСП производителя АРПА. Не самая бюжетная. Не царапается. В эксплуатации за 7 месяцев показала себя хорошо. Она фактурная. Грязь не забивается.

РАКОВИНА
Нержавейка SEAMAN. Конечно несколько незначительных царапин за это время на дне появилось . Но мыть ее намного приятнее светлой под камень, как на прошлой кухне. Расположена сразу за холодильником. Локтями об него не бьемся. Брызги на стенку холодильника иногда летят - после процесса мытья посуды (так есть ПММ это не часто) протираю раковину и стенку.
Кран ВАССЕР КРАФТ с двойным изливом. И для фильтрованной воды тоже. Эстетическое удовольствие. Не люблю эти мини доп крантики рядом.

ТЕХНИКА
Еще раз могу написать хвалебные отзывы БОШ (и их холдингу), ни в одной технике они не подвели нас ни разу.
Вытяжка экперимент - кортинг. По сравнению с прошлой гаренье симплисити 1 шумная, да и мощность втягивания ниже.
Плита Купергсберг. Искали эксклюзивное расположение колонок. 2 средние у задней стенки (да, 2 кастрюли рядом встают. Но тянуться до них не очень удобно.). Плита подкупила своим интересным дизайном и не высокой ценой. МИНУСЫ: свистит большая колонка, зажигание очень нежное, порой с 5-го раза включает, пластик с ручек облазит, круглые накрывашки на конфорках какими-то мини пятнами пошли. Но жить можно - готовит, красивая и ладно.
Но в следующий раз без экспериментов - БОШ и ко.
Микроволновка стоит на подоконнике. Другого места ей не нашлось. Но меня она уже перестала со временем раздражать:)) духовка - микроволновка не рассматривали. Муж не доверяет системам 2 в 1
Розетку заменим на серую.
ОБЕДЕННАЯ ГРУППА
стол временный. Со времен моего студенчества. Первая самостоятельная покупка в икеа:))) Какой новый купить пока не поймем:(( ТУТ МОЖНО И ПОСОВЕТОВАТЬ:))) Нужен на 4 персоны + раздвигается для гостей.
стулья по проекту покупались в детскую. Но не подошли по высоте. Поэтому дополнились двумя цвета морской волны (цветовые акценты) и поселились тут надолго:))
Стулья белые покупались на Бауманской в Дизайн хаус http://dsklad.ru/eames?rs=direct3_search_1337916423_стул%20eames&yclid=10149052004174805
Они фактурные, не гладкие. Очень легко прилипает грязь. Ген уборка в ванной с содой раз в месяц точно. А то перед людьми не удобно:))
Морская волна без подлокотников в артплее ДИПХАУС http://deephouse.pro/contacts/
Гладкие. Легко вытираются влажной тряпочной.
НО и те, и те, очень электризуются. Может есть какая пшыкалка для мебели из пластика??
СТЕНЫ
у обеденной зоны белый декоративный кирпич КАСАВАГА
http://evega.ru/shop/proizvoditeli/casavaga-kasavaga
не крашенный, не лаченый. Не дань моде, а идеальная практичность. Об эту стену у нас все вечно трутся стульями. И ей хоть бы хны.
Обои AS CREATION ОЧЕНЬ не удачные. На 10 рулонов полнейший разнотон. Номера все досконально сверяли. Их хоть тронь - снимается верхний слой. Ни одно пятно с них не убирается:((( А мы ими и коридор и детскую :((( Это печаль:((
ПОЛ
Осознанное решение одинаковый пол во всей квартире. Кухня не исключение. Это дерево. Всех волнует рабочая зона - там у меня все чисто и сухо. А вот после обеда младшего ребенка треш под столом. Сразу пылесос и мини тряпочка в помощь. Но так надо делать и если у вас плитка. Осталось почему-то пятно от боржоми из ингалятора:(( Вот оно моментально въелось в дерево.

