Помогите, пожалуйста! Перепланировка!
Перепланировки стен. Согласование перепланировки квартир и нежилых помещений.Дорогие девочки и профессиональные дизайнеры, очень прошу совета по перепланировке!
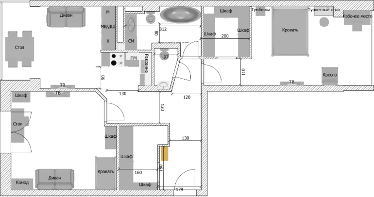
Имеется двухкомнатная квартира в новостройке, межкомнатных стен нет, дом кирпично-монолитный, на лоджиях установлено панорамное остекление. В плане от Застройщика предусмотрены кухня, гостиная и спальня. В квартире будет проживать молодая семейная пара с ребенком. В результате перепланировки необходимо разместить кухню-гостиную, детскую, взрослую спальню с гардеробной на месте спальни по плану застройщика, ванную комнату с унитазом, отдельный туалет с раковиной, гардеробную при входе.
Основная идея перепланировки состоит в увеличении площади кухни для размещения в ней кухни-гостиной. Вариант переноса кухни-гостиной на место гостиной и организации в бывшей кухне детской или взрослой спальни (кабинета) не рассматриваем. Делить большую комнату (гостиную) на две комнаты - детскую и гостиную не хотим, гостиная необходима с окном и гардеробная обязательна.
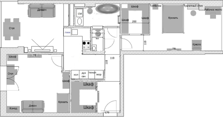
В кухне-гостиной необходимо разместить кухонный гарнитур, стол, диван, ТВ. После обдумывания и прорисовки многочисленных вариантов начертила такое планировочное решение. Нравится, что рабочая поверхность кухни в стороне и для гостиной-столовой остается достаточно места. Нравится, что зона прихожей с гардеробной не будет проходной. Немного смущает организация входа в ванную и туалет. Может быть можно как-то более удачно спланировать эти помещения? Или есть идеи как лучше организовать кухню-гостиную? Посоветуйте, пожалуйста, буду очень благодарна!!!
И прошу в целом оценить планировку, потому что таких примеров в интернете не нашла, а все мои попытки обсудить планировку с дизайнерами ни новыми идеями, ни конструктивной критикой не закончились. Постоянно читаю сообщество и уверена, что самые неравнодушные люди собрались именно здесь!!! Очень надеюсь на вашу помощь и заранее Спасибо!

Не стала рисовать спальную.
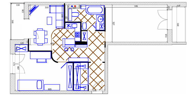
Очень здорово)) Остекление меняем на теплое + электрические конвекторы по контуру. Такой вариант туалета мне очень нравился, но боялась сужать коридор до 110, теперь не страшно)) Все советы по делу, а главное, Вы сразу прочувствовали направление и планировка сложилась, спасибо Вам огромное!!!