Уютный Дизайн интерьера и Ремонт квартиры в Классике, Сколково 230м2.
Авторские проекты дизайнеров.(Посты не по теме будут удаляться!)
При работе с этим проектом заказчик попросил уделить особое внимание его коллекции картин.
В ремонте этой квартиры использованы натуральные отделочные материалы, деревянные окна и паркетная доска с полезным слоем древесины 8 мм. На стенах моющаяся краска Dulux.
Вы можете посмотреть Видео-отчет с объекта, а так же подробно рассмотреть интерьер на фотографиях ниже на этой странице!
Гостиная




Кухня






Просторная кухня с островной барной зоной позволяет приготовить любое блюдо. Но заказчик больше всего любит борщ. Высота дверей в этом проекте ремонта составляет 240 см. Это роскошно выглядит и подчеркивает высокие потолки и обилие воздуха в интерьере.
Спальня



Уютная спальня имеет собвстенный санузел и гардеробную комнату, а так же выход на террассу-балкон. Это очень удобно.
Библиотека

Прихожая


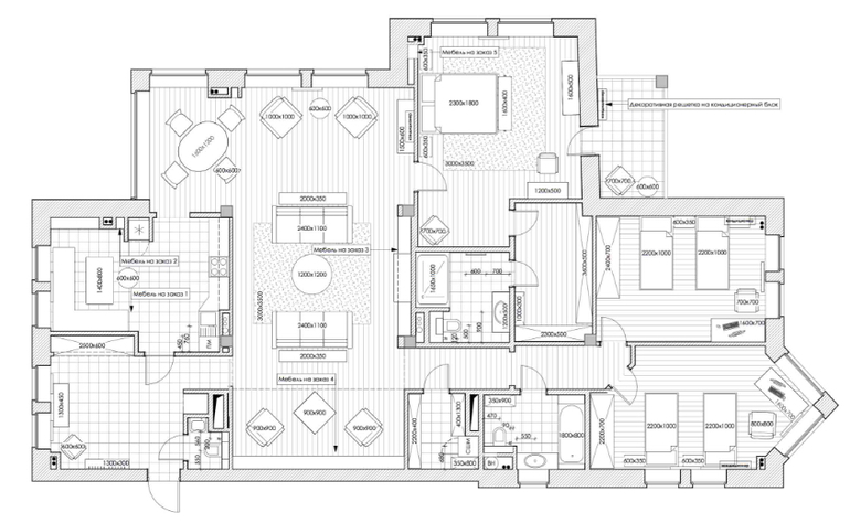
Планировка

Хотите такой же уютный ремонт? - это можно сделать здесь :)
Сайт: remont-megapolis.ru
Инстаграм: instagram.com/remont.megapolis
По промокоду: "БэбиБлог" - скидка!
Покажете Ваш домашний, более уютный интерьер? :)