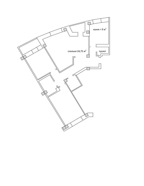
Помогите расширить кухню, уменьшив спальню!
Перепланировки стен. Согласование перепланировки квартир и нежилых помещений.
Cascade
Девочки, спасибо всем большое за помощь. Selena 1002, мы остановились на Вашем варианте. Но, если еще будут идеи и желание нам помочь
, то я буду только рада.
21.03.2017
Ответить
Виктория (дизайнер)
сложная у вас планировка, прям совсем нестандартная, да еще и газ. Тут, действительно, нужно с умом подходить, а не "на коленке", как выразилась Betsy.
Во-первых, кухню с газом законно нельзя объединить с жилой комнатой. Поэтому надо рассматривать варианты раздвижных перегородок
Если готовы пойти в обход законодательства, тогда вариантов становится больше
посмотрите мои услуги по разработке планировочных решений. В вашем случае грамотная планировка необходима.
Если готовы пойти в обход законодательства, тогда вариантов становится больше
посмотрите мои услуги по разработке планировочных решений. В вашем случае грамотная планировка необходима.
21.03.2017
Ответить
Betsy
здесь нужно хорошо все обдумывать, а не на коленке, поэтому обращайтесь к дизайнеру вот его сайт, там много фото идей и планов по разным комнатам и квартирам, портфолио цены и много другой инфо
21.03.2017
Ответить
selena1002
Добрый день!
Можно еще и су немного увеличить. И, конечно, размеры бы не помешали))
21.03.2017
Ответить
Мария Ч
Я бы похвалила, только дверь в туалет напротив двери в комнату сделала б))) чтоб уж действительно изолированная зона получилась.
21.03.2017
Ответить
selena1002
Мария, добрый вечер!
Я обращалась к Ане, вообще-то)) И, если дверь в су в коридоре - это еще туда-сюда, то в обеденной зоне она совсем ни к чему)) я совершенно осознанно ее туда не поставила. И грязную обувь, руки, велики и пр. лучше мыть без захода "через Киев", а непосредственно вблизи источника воды. Это, во-первых. А во-вторых, если ее поставить, как Вы говорите, то все увеличение су сойдет на нет.
21.03.2017
Ответить
Мария Ч
Я поняла))) Поэтому и написала "бы")) Потому что ваш вариант мне очень нравится)))
21.03.2017
Ответить
Татьяна Специалист по недвижимости
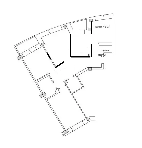
вы с какой целью хотите увеличить кухню? если нужна хорошая столовая зона, то например можно так
21.03.2017
Ответить
Татьяна Специалист по недвижимости
да нет, можно конечно еще что-нить придумать, главное понять цель и что хочется, ну и с размерами соотнести
21.03.2017
Ответить
Cascade
Здравствуйте. Да, виновата, никакой информации больше не написала. Татьяна, мы хотим эту комнату сделать детской для одного ребенка, а кухню превратить в кухню-гостиную. Но! У нас газ. В гостиной хотим сделать аквариум так, чтобы он закрывал вход в туалет. В прихожей хотелось бы сделать шкаф для верхней одежды. И еще на балконе ( который бы мы хотели соотнести к кухне-гостиной) установить камин. Вот такие у нас хотелки.
21.03.2017
Ответить
Анатолий Николаевич
Эта схемка менее губительна для энергетики спальни,так как форма максимально приближена к прямоугольнику,а это благоприятно для стабильной работы энергетик,определяющих нашу жизнь.
Занимаюсь инженерией энергетик в жилье и могу предложить свои услуги.Подробности в дневнике.
22.03.2017
Ответить
Татьяна Специалист по недвижимости
мне? спасибо не нужно, я свои прямоугольники уже выстроила )))
а почему бы вам не предложить вариант по теме поста? ну интересно же что специалист по энергетике предложит
22.03.2017
Ответить
Анатолий Николаевич
Что же Вы сегодня такая злая?Я не Вам предлагал свои услуги,а тому,кто разместил свой пост,так как именно ей и была нарисована схема в которой много "подводных камней".Но я увидел более-менее вариант и одобрил его,так как все остальное просто нельзя по причине невозможности в дальнейшем что-то поправить в энергетиках,когда клиент обнаружит,что прожил лет десять и все у него плохо.Вот,тогда и ищут меня,платят приличные деньги,чтобы исправлять все то,что им заранее нафигачил дизайнер,который еще кичился тем,что нет никаких энергетик.А люди потеряли десять лет своей жизни просто так.
А второй ваш вопрос,что я могу предложить:так предлагаю только после замеров оси компаса,а так,что пальцем в Небо.
22.03.2017
Ответить
Татьяна Специалист по недвижимости
Вы сегодня за мной следите? Вы ответили на мой комментарий ))) и к кому Вы обращались там не написано.
Поздравляю Вас! людям которым "нафигачил" дизайнер свойственно наступать на грабли, так что ничего удивительного
22.03.2017
Ответить
Анатолий Николаевич
Вам что,сегодня нужно выговориться?
Прям сквозит нервозность,а это сразу чувствуется.
Никто Вас ни в чем не обвиняет,просто Вы все относите на свой адрес,но это не так.
Недавно я смотрел подобное жилье с непрямоугольной формой плана и сразу встал вопрос что брать за центр для введения Гуа.И здесь увидел подобное.
22.03.2017
Ответить
Татьяна Специалист по недвижимости
мои потребности к вам какое отношение имеют? это вы привлекли мое внимание своим комментом.
еще бы вы меня в чем-то обвинили )))
извините, вы не могли бы начать общаться с автором, предлагая свои услуги, минуя мой коммент, приглашения просто приходят.
спасибо
22.03.2017
Ответить
Анатолий Николаевич
Будьте проще.
К Вам нормально отношусь и ничего такого плохого не думал.
Удачи!
23.03.2017
Ответить
Татьяна Специалист по недвижимости
мне все равно как вы ко мне относитесь.
советы тоже не нужны.
и вам не хворать!
23.03.2017
Ответить
