Построили красивый дом продолжение (добавила новую планировку)
Постройка дома, этапы.Продолжение стройки. Первые этапы в этом посте
Проект, фото и рассказ о строительстве красивого дома



















Очень интересный проект дома "Эдинбург" закончили в нем проведение коммуникаций и черновые отделочные работы, выкладываю подробные фото того что получается
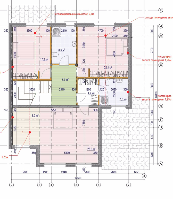
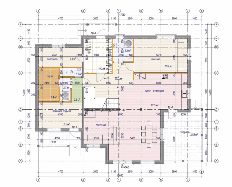
Планировка


так как внутри дома одна несущая стена, перегородки в итоге немного сместили по просьбе заказчицы.


бильярдная и комната отдыха



вид на лестницу



фасад


Дом построен из бетонного блока с утеплителем 150 мм фасадный пенополистерол. Отделка гибкая фактурная штукатурка церезит. Колеровали по запросу дизайнера.
Камень на цоколь дизайнер подбирал.
На доме еще нет наличников, немного не законченный вид.Они будут темно коричневыми из дерева или пластика.




Есть видео дома, внутри и снаружи, если кому интересно - напишите, пришлю ссылки в личку. Заказчица просила в открытый доступ его не выкладывать.
Сейчас проектируем этот же проект но с другой планировкой

Таша
а проект переделывали? т.к. картинка очень отличается от реального фото и по кол-ву окон и даже по высоте первого и второго этажей
01.10.2018
Ответить
Ольга. Строю дома www.kamen-dom.ru
Небольшие изменения были, а как Вы высоту отпределили))) тут же она не указана.
Аааа поняла, 3Д картинка, она не от этой планировки а от базовой. Ее каждый клиент под себя переделывает.
01.10.2018
Ответить
Ксюня
Ольга, здравствуйте. Заинтересовал этот проект. Можно тоже ссылку на видео прислать. Спасибо
01.04.2017
Ответить
Rinika
Какая своеобразная планировка ...
При такой большой площади фундамента под "гостевую спальню" отвести 20 метров на 1 этаже, а под собственные спальни - 13-16 метров на втором?
31.03.2017
Ответить
Ольга. Строю дома www.kamen-dom.ru
Гостевые спальни на втором этаже. Хозяйская на первом
01.04.2017
Ответить
Rinika
А на схеме "гостевой" как раз спальня на 1 этаже подписана, вот я и удивилась такому мазохизму закзчиков :)
01.04.2017
Ответить
Ольга. Строю дома www.kamen-dom.ru
Это архитектор по привычке подписал, в этом проекте заказчики просили их расселить на 1 этаже, а всех "гостей и детей" на верх)))
01.04.2017
Ответить
Rinika
А откуда у архитекторов такая привычка взялась, с чем связано это навязчивое стремление спальни на 2 этаже устраивать? Ведь постоянная беготня вверх-вниз по лестницам разве что подростков и беззаботную молодежь не напрягает, остальных же как минимум утомляет/раздражает, а то и конкретную опасность несет (когда в доме маленькие дети, например) или вовсе недоступной роскошью становится (преклонный возраст, больные ноги/спина и т.п.).
01.04.2017
Ответить
Ира
Красивый! У нас с мужем, как раз, в мечтах дом. Изучаем этот вопрос).
Оля, сколько вышел этот дом? Можно в личку.
Если не возражаете, я Вам вопросы позадаю
31.03.2017
Ответить
Ольга. Строю дома www.kamen-dom.ru
В том виде что на фото он вышел до 7 млн. руб. вместе с коммуникациями и черновой отделкой. Оборудование для коммуникаций покупали заказчики.
Конечно задавайте. Лучше на почту olubimova@bk.ru
31.03.2017
Ответить
Сальма♥МЕБЕЛЬ♥Орматек♥38Попуг
а почему не сделали все фасады декоративным камнем (или как это правильно называется?) как на макете было?
сильно дороже?
31.03.2017
Ответить
Ольга. Строю дома www.kamen-dom.ru
Наоборот дешевле натуральным камнем а не клинкером. Так заказчица захотела.
На мой вкус, камнем красивее получается
31.03.2017
Ответить
Сальма♥МЕБЕЛЬ♥Орматек♥38Попуг
о да! и мне больше камнем нра - богаче выглядит
потому и спросила
31.03.2017
Ответить
Ольга. Строю дома www.kamen-dom.ru
Этот дом очень большой, фото не передает масштаб, я думаю что заказчица побоялась внешнего "перегруза".
31.03.2017
Ответить
Лена
Я все пока любуюсь! Красиво и просторно! Не дождусь когда же мы приступим к стройке!
31.03.2017
Ответить