Перепланировка.
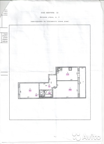
Перепланировки стен. Согласование перепланировки квартир и нежилых помещений.Девочки,кто разбирается .возможно ли из двушки сделать трешку?54 кв м квартира.распашонка

selena1002
Юлия, добрый вечер!
Квартиру-распашонку всегда трудно делить на большее количество комнат из-за того, что она сделана на две стороны от стояка для су. Поэтому делить можно только площади кухни и комнаты, примыкающей к ней. И окна всегда можно добавить)) А лоджию Вы не хотите задействовать?
21.04.2017
Ответить
Ольга
Виктория, в прихожей вешалка-панель с крючками (для используемой верхней одежды). Напротив этой вешалки широкий проем (есть место обойти/развернуться/нагнуться). Верхняя одежда не по сезону в шкафах, которые в комнате. Квартира-54 м2!!! Автор не озвучила конкретных пожеланий о местах хранения и пр. Вопрос только о возможности из 2ки сделать 3ку...Мое предложение таково...Очень хочется посмотреть и Ваше видение (тем более Вы дизайнер, а я нет).
19.04.2017
Ответить
Виктория (дизайнер)
Я знаю, что квартира 54 метра))) Мои предложения будут, когда у автора будет план читабельный.
А автору я ответила на его вопрос.
19.04.2017
Ответить
Елена Тарасова (дизайн, 3D)
Можно сделав комнаты по окнам и общую кухню- гостиную без окон, альтернативное освещение.
19.04.2017
Ответить
Елена Тарасова (дизайн, 3D)
При зонировании придется спать на диване, а так вы получите изолированные три полноценные комнаты, но выбор за вами.
19.04.2017
Ответить
Виктория (дизайнер)
вы бы чертеж в хорошем качестве выложили бы. А то так глаза ломать.
Можно сделать трешку, если вам необходимы отдельные комнаты. Но одна комната будет без окна.
Или кухню увеличить немного и поставить диванчик.
Я делала подобный проект: семья с разнополыми детьми подростками - их надо было расселить. Родителям досталась спальня без окон. Комнаты конечно, маленькие, но зато у всех свое место. Помогаю людям "впихнуть невпихуемое" (примеры можно посмотреть по ссылке)
http://fanblack89.wixsite.com/planirovka
У всех свои потребности.
18.04.2017
Ответить
Виктория (дизайнер)
Тогда ответ на ваш вопрос: можно из двушки сделать трёшку, но со своими НО
19.04.2017
Ответить
Викторина 8-905-766-57-10 www.architectors.net
Юлия! помогу найти для вас решение!
Сделаем дизайн-проект за 750 р за м2 под ключ!)
- планировка
- 3d визуализации
-чертежи для строителей
- таблицы с мебелью и светильниками и материалами с указанием цены и количеством и адресами магазинов .
Подбор происходит исходя из ваших пожеланий по цене и внешнему виду.
Инстаграм : architectors_net
сайт architectors net
договор
Допуск СРО 10 лет!
Если наши цены не устраивают, посоветую своих коллег, которые точно Вам подойдут)
18.04.2017
Ответить
Ольга
Трешка вряд ли, а вот соединить кухню и большую комнату, и отделить спальную зону, думаю, можно.
18.04.2017
Ответить
Татьяна Специалист по недвижимости
у вас окон для полноценной трешки не хватает, да и кроить особо нечего, 54 м2 это двушка то небольшая, а уж трешка вообще ущербная. Лучше зонировать бОльшую комнату
18.04.2017
Ответить
