встал вопрос сколько выбрать квадратов? Помогите, как на ваш взгляд))
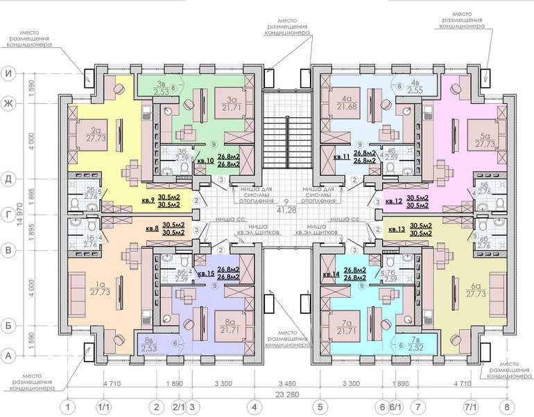
Вопросы и ответыДевочки добрый день)) Запустили у нас в городе программу для молодых семей, ЖНК в общем. Значит будут квартиры-студии по 30,5 и 26,8 м2. Во вторник идем подписывать договор и нужно выбрать квадратуру. Вот план 
Елен@
Полистайте группу в ВК тык. Есть неплохие варианты расстановки мебели в маленьких студиях.
23.04.2017
Ответить
Елен@
Долго сидела думала. Все же склоняюсь к 26м., хоть на плане она и выглядит более заставленной. Если в 30м посередине 2-х спальную кровать нарисовать, получится то же самое. В 30м длинный коридор малофункционален, и с окна ни то-ни се. В 26 закуток с окном можно полностью занять кроватью (такая своеобразная спальня, состоящая из одной кровати) а в "гостинной" еще диванчик поместится, и еще два окна останутся. А 30м кровать в любом случаем на виду будет, и зону кухни нормально не отделить.Я однозначно за 26!
23.04.2017
Ответить
Inna
может 30 и просторнее, но она же темная, окон нет почти. а вот 26 - светлая, три окна, что позволяет зонировать и даже с перегородками
23.04.2017
Ответить
Светлана
надо выбирать, что душе ближе! мне тоже про распшонку все твердят, она лучше! а вот линейку и не проветришь - но душа лежит именно к линейке, ее и выбрали! она реально уютней) а уют решает многое!!!
22.04.2017
Ответить
Elena
Визуально 26,8 выглядит более уютно. В 30-ти метровой не нравится вытянутый кухонный гарнитур вдоль стены, будет ощущение, что спишь на кухне. Только если искать решение, чтобы немного перекрыть кухню от взгляда, может построить стенку-столб, разделяющую пространство.
21.04.2017
Ответить
Светлана Пичугина (дизайнер интерьеров)
Только 30,5 м! Даже не думайте! 26 - просто крошка! Кухни фактически нет. В с.у не развернуться, к раковине нужно боком мимо унитаза протискиваться...
В 30 м кухонный столик можно вместо компьютерного поставить. А шкаф около кровати вместо одной из тумбочек. С любой планировкой можно поработать, а размер никак не изменить.
В 26 м на картинке вроде все есть, но вы обратите внимание, что абсолютно все проходы в квартире такие, что нужно боком проходить. Если кто-то сидит за крошечным кухонным столом, то ни готовить, ни пройти на кухню уже невозможно! Ни квартира а мебельный склад, где можно только боком протискиваться между мебелью.
Если бы у Вас была возможность посмотреть эти квартиры, Вы бы ни минуты не сомневались.
21.04.2017
Ответить
Оксана (дизайнер, инста: @persona_story)
Место для холодильника можно найти. Но меня удивило то, что в планировке "30,5" совсем нет гардеробного шкафа...... Мне планировка "26,8" нравится. А , вообще, конечно, надо будет использовать каждый сантиметр.
20.04.2017
Ответить
aleno4ka080404
пепц..какие крохотные квартирки(малосемейки их вроде бы раньше называли), да еще и так далеко(((( Может быть цены адекватные предлагают?
Однозначно ту, которая побольше. Хоть и на чуть-чуть, но больше все равно. Пока построят, вы еще и второго ребенка успеете родить
21.04.2017
Ответить
aleno4ka080404
Это только мое мнение. Расскажу по чему. Кума купила квартиру на Каштановой. Долго выбирали, планировка не плохая. Косяк с транспортом. У них семье 1 машина, на которой естественно муж ездит. Кума в декрете. Детки-погодки. ( 1,6 и 3 месяца). С ее слов: маршрутка ходит очень редко и плохо, с детьми не успеть никуда. Везде приходится на такси. деньги не малые. Погулять толком не где, хотя и город под носом. С коляской далеко не уйдешь, т.к. дальше стройки и частный сектор
02.05.2017
Ответить
Irisha
Понятно, ну нам проще у нас две машины и родители у нас как раз здесь в частном секторе живут на юго-западе).
15.05.2017
Ответить
Лика
Однозначно ту,что больше!и даже с ней можно поиграть-зону кухни вынести в этот длинный коридор, а комнату даже разделить на две зоны-и детскую и спальню или спальню и гостиную, хорошо окна позволяют)
20.04.2017
Ответить
Оставшиеся комментарии доступны после регистрации
Зарегистрируйтесь и получите полный доступ ко всем функциям сайта.